Mehrgenerationenhaus in Sigmaringen-Gutenstein
• Ihr Traumhaus im Donautal • modernisiert, vielseitig und sofort bezugsfertig
• 2021 umfangreich modernisiert
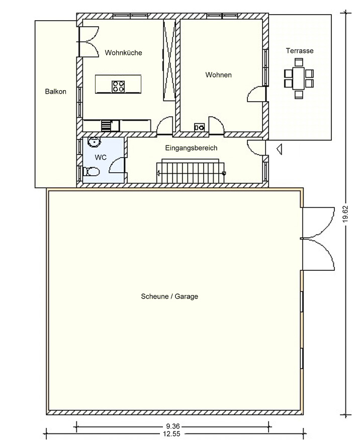
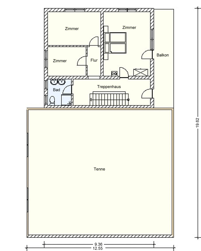
• Hauptwohnung ca. 180 m² Wohnfläche 4 Zimmer,
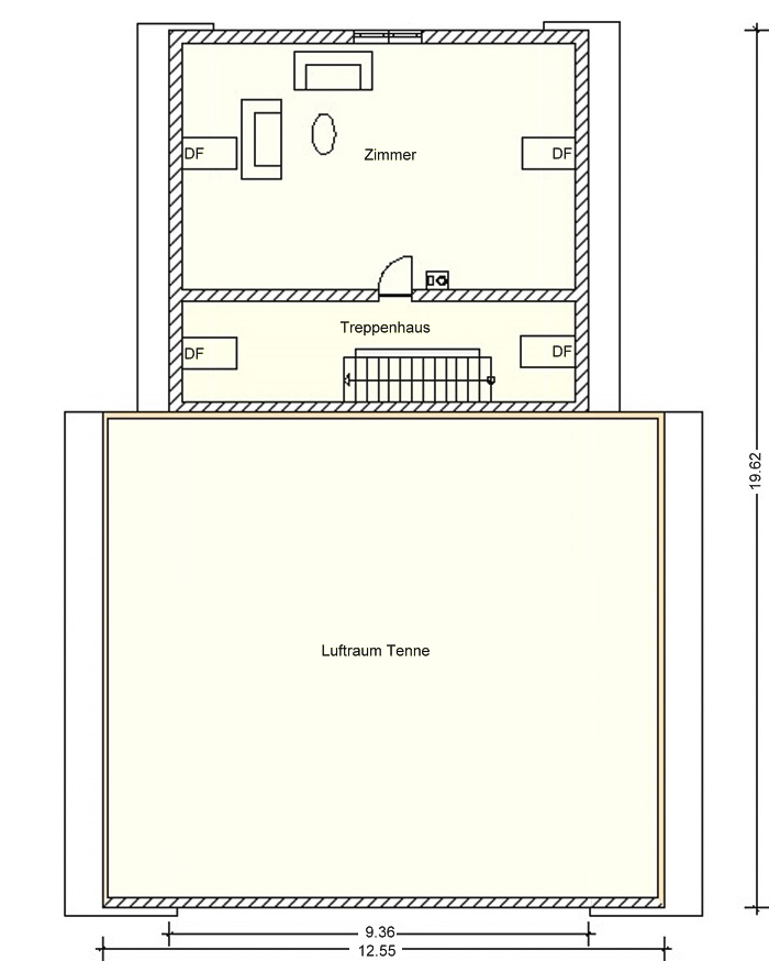
• großes Studio-Zimmer im DG
• Wohnküche mit Einbauküche,
• Bad, 2 WC, 2 Balkone, Terrasse
• 1. Einliegerwohnung ca. 69 m² Wohnfläche
• 2 Zimmer, Einbauküche, Bad, WC, Terrasse
• 2. Einliegerwohnung ca. 68 m² Wohnfläche
• 2 Zimmer, Einbauküche, Bad, WC, Terrasse
• Solar fürs Brauchwasser, Enthärtungsanlage
Bei dieser außergewöhnlichen Immobilie handelt es sich um ein Einfamilienhaus mit zwei separaten Einliegerwohnungen. Das Anwesen vereint modernes Wohnen, vielseitige Nutzungsmöglichkeiten und eine traumhafte Lage in einzigartiger Weise. Das Anwesen befindet sich in einem äußerst gepflegten Zustand, im Jahr 2021 wurde das Haus umfassend modernisiert. Die beiden Wohnungen wurden bisher erfolgreich als Ferienwohnungen genutzt. Das Haus liegt in sehr ruhiger Umgebung direkt am Ortsrand und eröffnet einen traumhaften Blick in die idyllische Landschaft des Donautals.
- Ruhige und sonnige Ortsrandlage direkt am Donauradweg, ca. 1.549 m² Grundstück
- Einfamilienhaus mit ca. 180 m² 2 Einliegerwohnungen mit je ca. 68 m² große ehemalige Scheune mit Platz für 4 PKW, Fahrräder und vieles mehr Wohnfläche
- V, 67,4 kWh, Pellets, Kl. B, Baujahr 1978
Lage
Gutenstein, ein idyllischer Ortsteil von Sigmaringen im Landkreis Sigmaringen, liegt malerisch in einer Donauschleife im Naturpark Obere Donau und ist geprägt von bewaldeten Höhen, markanten Felsformationen und der einzigartigen Landschaft der Schwäbischen Alb. Die ruhige Lage der Immobilie am Ortsrand verbindet naturnahes Wohnen mit guter Erreichbarkeit: Über die Bahnstation Gutenstein an der Donautalbahn besteht eine direkte Anbindung Richtung Sigmaringen und Ulm sowie nach Tuttlingen und Donaueschingen, zusätzlich verkehren Buslinien in die umliegenden Ortschaften. Im Ort selbst gibt es einen Kindergarten, Gästehäuser, Zeltplatz und verschiedene Freizeitangebote. Wanderer und Radfahrer profitieren von Premiumwegen wie der Bettelküchenfährte oder dem Donaufelsengarten sowie dem internationalen Donauradweg, der jährlich tausende Besucher anzieht. Besonderheiten wie die Burgruine „Gebrochen Gutenstein“, Grillplätze, Bootsverleih und die eindrucksvolle Donaulandschaft schaffen hohen Freizeitwert. Einkaufsmöglichkeiten, Schulen, ärztliche Versorgung und weitere Infrastruktur sind in wenigen Minuten im nahegelegenen Sigmaringen erreichbar, sodass sich die Lage perfekt für Naturliebhaber eignet, die gleichzeitig nicht auf eine gute Anbindung und Versorgung verzichten möchten.
Grundrisse
Objektanfrage
Nebenkosten : Nachweis-/Erfolgshonorar 3,57 %, Grunderwerbsteuer 5 %, Notar ca. 2,5 - 3 %
Sämtliche Angebotsangaben sind nach bestem Wissen und Gewissen erstellt, und sollen Ihnen allgemeine Informationen ermöglichen. Da sie jedoch auf Informationen Dritter beruhen, kann von der BIV GmbH keine Gewähr für die Richtigkeit übernommen werden. Unsere Angebote sind freibleibend, der Zwischenverkauf bleibt uns vorbehalten.
