Neubau Eigentumswohnung in Langenenslingen
Attraktiv wohnen im Neubau Erdgeschosswohnung mit Gartenanteil
Der Neubau liegt nahe dem Ortszentrum von Langenenslingen mit fantastischem Blick in die Natur. Sämtliche Erledigungen des täglichen Bedarfs können Sie ganz bequem zu Fuß oder mit dem Fahrrad erreichen.
Die Erdgeschoss-Wohnung ist mit einem Wohn-/ Ess-/ Küchenbereich ausgestattet. Hinzu kommt ein großzügiges Schlafzimmer, ein Bad mit bodenebener Dusche, ein WC mit Waschtisch, ein Hauswirtschaftsraum sowie ein zusätzlicher separater Abstellraum. Die Wohnung hat ihre eigene Terrasse mit dem dazugehörenden Gartenanteil. Änderungs- und Sonderwünsche hinsichtlich der Grundrissgestaltung sind nach statischer und bautechnischer Prüfung, selbstverständlich möglich.
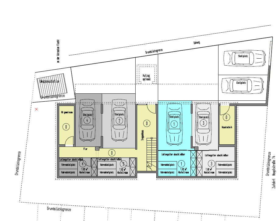
Das Untergeschoss bildet zugleich die überdachten Kfz-Stellplätze, sowie einen abschließbaren Abstellraum oder einer Fahrradgarage.
- Ruhige und zentrale Lage mit ca. 400 m² Grundstück
- 2,5 Zimmer, Küche, Bad, Terrasse mit Gartenanteil, Abstellraum
- ca. 65 m² Wohnfläche Fertigstellung ca. Ende 2023 Gas-Brennwert Heizung Stellplatz zzgl.
Lage
Langenenslingen ist eine Gemeinde im Landkreis Biberach und liegt am Fuße der Schwäbischen Alb. Zahlreiche Spazier-, Wander- und Radwege finden Sie direkt vor Ort. Das Objekt befindet sich in sonniger und ruhiger Ortslage. Kindergarten, Tagesstätte für Kleinkinder, Grundschule, Arzt, Zahnarzt und Geschäfte für den täglichen Einkauf finden Sie vor Ort und sind bequem zu Fuß erreichbar. Die Gemeinde verfügt über ein vielseitiges Vereinsleben, durch das Gewerbegebiet eine stattliche Anzahl an Arbeitsplätzen und eine gute Verkehrsanbindung über Riedlingen nach Biberach/Ulm und nach Sigmaringen.
Grundrisse
Objektanfrage
Nebenkosten : Nachweis-/Erfolgshonorar Provisionsfrei, Grunderwerbsteuer 5 %, Notar ca. 2,5 - 3 %
Sämtliche Angebotsangaben sind nach bestem Wissen und Gewissen erstellt, und sollen Ihnen allgemeine Informationen ermöglichen. Da sie jedoch auf Informationen Dritter beruhen, kann von der BIV GmbH keine Gewähr für die Richtigkeit übernommen werden. Unsere Angebote sind freibleibend, der Zwischenverkauf bleibt uns vorbehalten.
