Neubau Eigentumswohnung in Langenenslingen
Attraktiv wohnen im Neubau Obergeschosswohnung mit Südbalkon
Der Neubau liegt nahe dem Ortszentrum von Langenenslingen mit fantastischem Blick in die Natur. Sämtliche Erledigungen des täglichen Bedarfs können Sie ganz bequem zu Fuß oder mit dem Fahrrad erreichen.
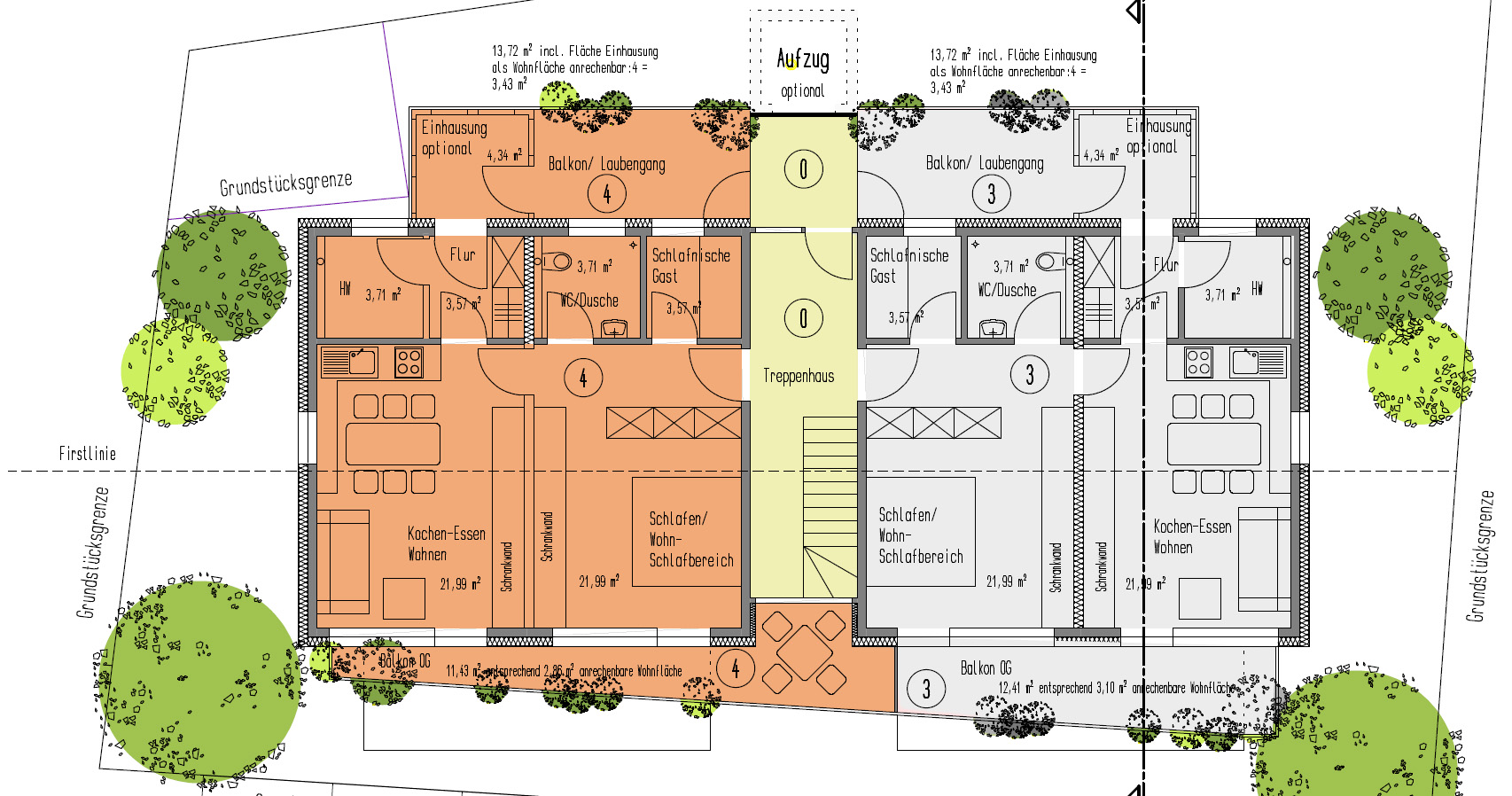
Die Wohnung im Obergeschoss ist mit einem Wohn-/Ess-/ Küchenbereich ausgestattet. Hinzu kommt ein großzügiges Schlafzimmer, ein Bad mit bodenebener Dusche, ein WC mit Waschtisch, ein Hauswirtschaftsraum sowie ein zusätzlicher separaten Abstellraum. Im Gegensatz zum Erdgeschoss bestechen die Wohnungen im Obergeschoss mit einem 12,5 m² großen Süd-Balkon. Auch der Laubengang eignet sich als Balkonfläche. Die komfortable Raumhöhe, sowie die Raumaufteilung, lassen keine Wünsche offen. Änderungs- und Sonderwünsche hinsichtlich der Grundrissgestaltung sind nach statischer und bautechnischer Prüfung, selbstverständlich möglich.
Das Untergeschoss bildet zugleich die überdachten Kfz-Stellplätze, sowie einen abschließbaren Abstellraum oder einer Fahrradgarage.
- Ruhige und zentrale Lage mit ca. 400 m² Grundstück
- 2,5 Zimmer, Küche, Bad, Balkon, Abstellraum
- ca. 65 m² Wohnfläche Fertigstellung ca. 2023 Gas-Brennwert Heizung Stellplatz zzgl.
Lage
Langenenslingen ist eine Gemeinde im Landkreis Biberach und liegt am Fuße der Schwäbischen Alb. Zahlreiche Spazier-, Wander- und Radwege finden Sie direkt vor Ort. Das Objekt befindet sich in sonniger und ruhiger Ortslage. Kindergarten, Tagesstätte für Kleinkinder, Grundschule, Arzt, Zahnarzt und Geschäfte für den täglichen Einkauf finden Sie vor Ort und sind bequem zu Fuß erreichbar. Die Gemeinde verfügt über ein vielseitiges Vereinsleben, durch das Gewerbegebiet eine stattliche Anzahl an Arbeitsplätzen und eine gute Verkehrsanbindung über Riedlingen nach Biberach/Ulm und nach Sigmaringen.
Grundrisse
Objektanfrage
Nebenkosten : Nachweis-/Erfolgshonorar provisionsfrei, Grunderwerbsteuer 5 %, Notarkosten – ca. 1,2–1,5 %, Grundbuchkosten – ca. 1,0–1,5 %
Sämtliche Angebotsangaben sind nach bestem Wissen und Gewissen erstellt, und sollen Ihnen allgemeine Informationen ermöglichen. Da sie jedoch auf Informationen Dritter beruhen, kann von der BIV GmbH keine Gewähr für die Richtigkeit übernommen werden. Unsere Angebote sind freibleibend, der Zwischenverkauf bleibt uns vorbehalten.
