Einfamilienhaus in Altheim-Waldhausen
Hier genießen Sie Natur und Ruhe pur • Platz für Hobby, Lager und mehr
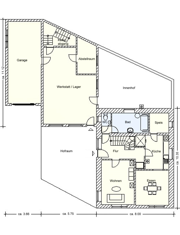
Dieses charmante Wohnhaus wurde über die Jahre hinweg immer wieder modernisiert und bietet mit ca. 115 m² Wohnfläche eine gute Basis für Ihre individuellen Wünsche. Die Elektrik sowie die Fenster wurden bereits erneuert. Bei der finanziellen Planung sollten Sie den Einbau einer Zentralheizung sowie die Modernisierung von Bad und Küche gleich mit einbeziehen, um den Wohnkomfort weiter zu steigern. Ein besonderes Highlight ist die großzügige Dachterrasse mit der urigen Laube. Hier genießen Sie einen herrlichen Blick in die Natur und können selbst an kühleren Sommertagen gemütliche Stunden verbringen oder Feste mit Familie und Freunden feiern. Für Hobbyhandwerker bietet die Werkstatt mit angrenzender Garage ideale Bedingungen um handwerkliche Projekte zu verwirklichen und sogar Kleintiere wie Hasen oder Hühner finden im Innenhof ein geschütztes Plätzchen. Die naturnahe Lage des Hauses rundet das Gesamtpaket ab. Nur wenige Schritte entfernt laden weitläufige Wiesen und Felder zu ausgedehnten Spaziergängen und Radtouren ein.
- Ruhige Lage am Ortsrand, ca. 432 m² Grundstück
- Ca. 115 m² Wohnfläche, 5 Zimmer, Küche, Speis, Bad, 2 WC, Holzherd, große Dachterrasse mit Laube
- Garage, Werkstatt, ehemaliger Hühnerstall B, 433 kWh, Öl/Hz, Klasse H, Baujahr 1919
Lage
Waldhausen ist ein Ortsteil der Gemeinde Altheim im Landkreis Biberach in Baden-Württemberg und ist nach wie vor ländlich geprägt. Der Ortskern hat sich in den vergangenen Jahren enorm weiterentwickelt. Viele ältere Wohnhäuser und Stallungen wurden einer Sanierung zugeführt oder sind neuen Wohnhäusern gewichen. Junge Familien konnten sich dadurch am Ort ansiedeln. Im Neubaugebiet Bühläcker verfügt Waldhausen darüber hinaus über voll erschlossene Baugrundstücke im Westen von Waldhausen. Die Grundstücke liegen in schöner und ruhiger Aussichtslage über die Gesamtgemeinde und das Donautal. Einzelne Gewerbebetriebe haben Ihren Standort in Waldhausen und bieten Arbeitsplätze. Durch den Hofladen Münch ist eine Grundversorgung an regionalen Lebensmitteln vorhanden. Mit dem Schützenverein Altheim-Waldhausen verfügt Waldhausen über ein über die regionalen Grenzen hinaus erfolgreicher Repräsentant. Der Narrenverein Heckaschlupfer e. V. pflegt den Brauchtum und bereichert den gemeinschaftlichen Zusammenhalt. Die Gemeinde verfügt über eine gut ausgebaute öffentliche Infrastruktur mit Kindergarten und Grundschule. Darüber hinaus hat die Gemeinde ein gut ausgebautes Radwegenetz und ist durch die sehenswerte Geh- und Radwegbrücke (Karl-Wolf-Steg) über die Donau an den Donauradwanderweg angebunden. Mehrere Wanderwege runden das touristische Angebot ab.
Ihre unverbindliche Immobilien-Suche
Nebenkosten : Nachweis-/Erfolgshonorar 3,57 %, Grunderwerbsteuer 5 %, Notarkosten – ca. 1,2–1,5 %, Grundbuchkosten – ca. 1,0–1,5 %
Sämtliche Angebotsangaben sind nach bestem Wissen und Gewissen erstellt, und sollen Ihnen allgemeine Informationen ermöglichen. Da sie jedoch auf Informationen Dritter beruhen, kann von der BIV GmbH keine Gewähr für die Richtigkeit übernommen werden. Unsere Angebote sind freibleibend, der Zwischenverkauf bleibt uns vorbehalten.
