Wohnhaus mit Gewerbehalle direkt an der B 32 in Scheer
Wohnen und Arbeiten in perfekter Harmonie großzügiges Gewerbeanwesen und exklusiver Wohnkomfort
Dieses außergewöhnliche Anwesen vereint Gewerbe und Wohnen auf durchdachte Weise und eignet sich für Unternehmer, die Wohnen und Arbeiten miteinander verbinden möchten. Der gewerbliche Teil mit einer Nutzfläche von über 960 m² umfasst zwei geräumige Hallen, ein Büro, Aufenthaltsräume, Werkstatt und ein Lager mit Laderampe. Die flexible Raumgestaltung eröffnet eine Vielzahl an Nutzungsmöglichkeiten. Ob Ausstellungsfläche, Lager, Produktion oder eine Kombination aus allem. Ein echtes Highlight ist der parkähnlich angelegte Garten, eine grüne Oase der Ruhe. Das Wohngebäude selbst überzeugt durch seine gehobene Ausstattung, Großzügigkeit und Barrierefreiheit. Das EG begeistert mit rund 158 m² - komfortabel, lichtdurchflutet und hochwertig ausgestattet. Zusätzlich steht im DG ein Gästebereich mit Bad zur Verfügung. Edle Granitböden, hochwertige Glastüren, maßgefertigte Einbaumöbel und zahlreiche praktische Details unterstreichen den besonderen Charakter des Hauses. Ein Objekt, das Lebensqualität und unternehmerische Freiheit gekonnt miteinander verbindet.
- Zentrale Geschäftslage, B 32 führt direkt am Objekt vorbei, ca. 4.369 m² Grundstück
- Hallen Baujahr 1987/1996 mit ca. 960 m² Nutzfläche zahlreiche Parkplätze, Gastank mit 2000 Liter
- Wohnhaus Baujahr 2010 Erdgeschoss ca. 158 m² auf einer Ebene Dachgeschoss ca. 33 m² Wohnfläche PV-Anlage, Erdwärme, Carport, Garage Kaufpreis ohne Inventar und Statuen V, 16,82 kWh, E, A+, Baujahr 2010
Lage
Scheer ist eine charmante Kleinstadt im Landkreis Sigmaringen in Baden-Württemberg, idyllisch an der Donau gelegen und eingebettet zwischen der Schwäbischen Alb und dem Naturpark Obere Donau. Die naturnahe Lage vereint Lebensqualität mit wirtschaftlicher Vernunft und macht Scheer zu einem attraktiven Standort für Gewerbe mit gleichzeitigem Wohnbedarf. Die Gemeinde zählt rund 2.500 Einwohner und bietet eine gut ausgebaute Infrastruktur mit Kindergarten, Grundschule, Einkaufsmöglichkeiten, ärztlicher Versorgung sowie einer zuverlässigen Anbindung an umliegende Städte wie Sigmaringen, Mengen und Bad Saulgau. Verkehrstechnisch ist Scheer durch die Bundesstraße B?32 hervorragend angebunden, was sowohl Kunden- als auch Lieferverkehr erleichtert. Die nächstgelegenen Bahnanschlüsse befinden sich in Sigmaringen und Mengen. Auch größere Wirtschaftszentren wie Ulm, Friedrichshafen oder Stuttgart liegen in gut erreichbarer Entfernung – sowohl über die Straße als auch per Bahn oder Luftverkehr. Der Flughafen Friedrichshafen ist ca. 45 Minuten entfernt, Stuttgart rund 85?km. Für logistikintensive Betriebe ist zudem das Güterverkehrszentrum Ulm von strategischer Bedeutung. Der Gewerbestandort Scheer verfügt über attraktive Gewerbegebiete mit günstigen Hebesätzen für Gewerbesteuer und einer aktiven mittelständischen Wirtschaftsstruktur. Unternehmen aus Bereichen wie Kunststofftechnik, Fassadenbau, Lebensmittelverarbeitung oder dem Handwerk sind hier ansässig – ein solides Netzwerk für Kooperation und Synergien. Besonders interessant ist die Kombination aus Gewerbeimmobilie und Wohneinheit: Sie bietet nicht nur kurze Wege, sondern ermöglicht eine klare Trennung von Arbeit und Privatleben bei gleichbleibender Standortqualität. Scheer punktet nicht zuletzt mit seiner Lage am beliebten Donauradweg, was auch im Bereich Gastronomie, Tourismus oder Dienstleistungen zusätzliche Potenziale eröffnet. Die Umgebung ist familienfreundlich, ruhig und dennoch verkehrsgünstig – ein Standort, der Arbeit und Leben auf harmonische Weise verbindet. Ideal also für Selbstständige, Freiberufler oder kleine Unternehmen, die Wohnen und Arbeiten unter einem Dach effizient gestalten möchten.
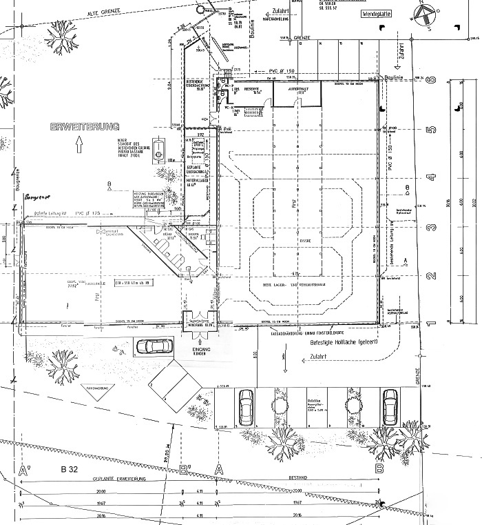
Grundrisse
Objektanfrage
Nebenkosten : Nachweis-/Erfolgshonorar 3,57 %, Grunderwerbsteuer 5 %, Notarkosten – ca. 1,2–1,5 %, Grundbuchkosten – ca. 1,0–1,5 %
Sämtliche Angebotsangaben sind nach bestem Wissen und Gewissen erstellt, und sollen Ihnen allgemeine Informationen ermöglichen. Da sie jedoch auf Informationen Dritter beruhen, kann von der BIV GmbH keine Gewähr für die Richtigkeit übernommen werden. Unsere Angebote sind freibleibend, der Zwischenverkauf bleibt uns vorbehalten.
