Einfamilienhaus in Zwiefalten-Gossenzugen
Wohnen wo andere Urlaub machen Schmuckstück mit Charakter und einzigartigem Ausblick
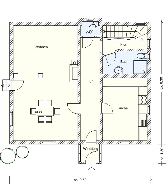
Direkt am grünen Ortsrand, erwartet Sie ein charmantes Haus mit Geschichte und einem unvergleichlichen Blick in die umliegende Natur. Die traditionelle Holzschindelfassade, stilvolle Rundbogenfenster und die charakteristischen roten Klappläden verleihen dem Haus seine unverwechselbare Ausstrahlung. Im Inneren empfängt Sie zeitgemäßer Komfort. Der großzügige, lichtdurchflutete Wohn- und Essbereich mit edlem Parkettboden und einem gemütlichen Kachelofen sowie die hochwertige Einbauküche lassen keine Wünsche offen. Auf Wunsch kann sie, ebenso wie weitere Möbelstücke, übernommen werden. Ein Bad und ein sep. Gäste-WC runden das Raumangebot im EG ab. Das DG hält drei Schlafzimmer und eine offene Wohndiele für Sie bereit, ideal als Rückzugsort für Familie und Gäste. Das große Nebengebäude bietet reichlich Platz für Fahrzeuge, Werkstatt oder Lagerflächen. Als besonderes Highlight warten hier ein charmantes Sommerwohnzimmer mit Blick ins Grüne sowie ein uriger Weinkeller auf Sie.
- Ruhige und sonnige Aussichtslage direkt am Ortsrand ca. 714 m² Grundstück
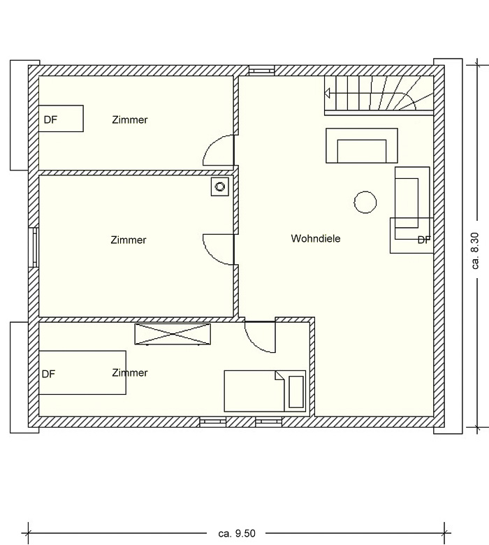
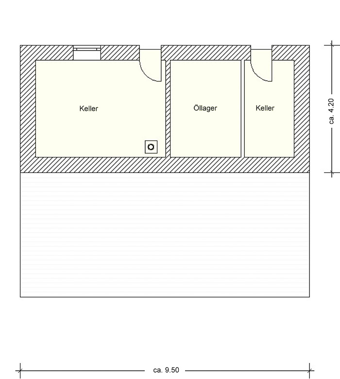
- ca. 105 m² Wohnfläche, 5 Zimmer, Küche, Bad, 2 WC. teilunterkellert
- Kachelofen mit Holz und Ölversorgung großes Nebengebäude/Garage B, 285,22 kWh, Kl. H, Holz/Öl Baujahr 1901
Lage
Gossenzugen ist ein charmantes, naturnahes Dorf im Landkreis Reutlingen und gehört zur Gemeinde Zwiefalten auf der Schwäbischen Alb. Die Umgebung gehört zum Biosphärengebiet Schwäbische Alb und bietet eine einzigartige Naturkulisse mit Wiesen, Auen und markanten Felsformationen. Der Ort besticht durch seine ruhige Lage im idyllischen Glastal, direkt an der Zwiefalter Aach, und bietet eine hohe Lebensqualität für naturverbundene Menschen. Mit rund 120 Einwohnern überzeugt Gossenzugen durch seinen dörflichen Charakter und die unmittelbare Nähe zu Wanderwegen, Radstrecken und kulturhistorischen Sehenswürdigkeiten. Die nahe gelegene Gemeinde Zwiefalten ist schnell erreichbar und stellt die vollständige Grundversorgung sicher – inklusive Einkaufsmöglichkeiten, ärztlicher Versorgung, Schulen und Nahverkehrsanschluss. Die Immobilie befindet sich am Ortsrand mit einem großzügigen Gartengrundstück und mit atemberaubenden Aussichten.
Ihre unverbindliche Immobilien-Suche
Nebenkosten : Nachweis-/Erfolgshonorar 3,57 %, Grunderwerbsteuer 5 %, Notarkosten – ca. 1,2–1,5 %, Grundbuchkosten – ca. 1,0–1,5 %
Sämtliche Angebotsangaben sind nach bestem Wissen und Gewissen erstellt, und sollen Ihnen allgemeine Informationen ermöglichen. Da sie jedoch auf Informationen Dritter beruhen, kann von der BIV GmbH keine Gewähr für die Richtigkeit übernommen werden. Unsere Angebote sind freibleibend, der Zwischenverkauf bleibt uns vorbehalten.
