Bungalow in Hayingen
Wohnen auf einer Ebene • Bungalow mit Weitblick und großem Garten
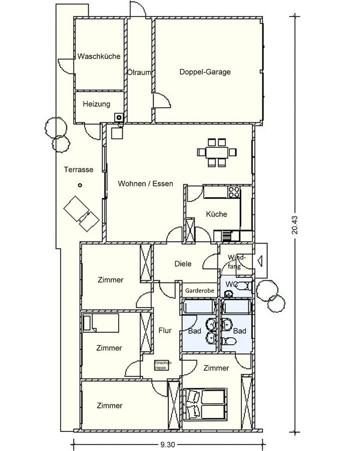
In ruhiger Toplage im Luftkurort Hayingen erwartet Sie dieser charmante Bungalow mit traumhaftem Blick über die idyllische Stadt und die umliegende Natur. Wohnen auf einer Ebene wird hier großgeschrieben: Das großzügige, offene Wohn- und Esszimmer mit gemütlichem Kaminofen und Panoramafenster schafft eine behagliche Atmosphäre mit schönem Ausblick. Die überdachte Terrasse lädt zu entspannten Stunden im Freien ein, während der große Garten mit rund 1.200 m² Grundstücksfläche viel Platz für individuelle Wünsche bietet. Eine praktische Doppelgarage sorgt für ausreichend Stellfläche für zwei Autos, und der angrenzende große Schuppen eröffnet zusätzliche Nutzungsmöglichkeiten. Einbauschränke in den Zimmern sparen Platz und bieten viel Stauraum. Das Dachgeschoss bietet weiteres Ausbaupotenzial, zum Beispiel durch den Einbau von Dachgauben.
Mit wenigen Schritten erreichen Sie die Natur – ideal für Spaziergänge und Erholung direkt vor der Haustür.
- ruhiges und sonniges Wohngebiet mit ca. 1200 m² Grundstück
- ca. 115 m² Wohnfläche, 5 Zimmer, Küche, 2 Bäder, 2 WC, Garderobe, Terrasse
- Schuppen, Doppelgarage, Kaminofen - B, 300,4 kWh, Klasse H, Öl-ZH, Baujahr 1973
Lage
Der wunderschöne Luftkurort Hayingen liegt auf der Albhochfläche der Schwäbischen Alb im Kreis Reutlingen. Die kleine Stadt inmitten des Geoparks und am südlichen Tor des Biosphärengebiets Schwäbische Alb ist ein Begriff für einmalige Natur, unvergessliche Erlebnisse und freundliche Menschen. Die Immobilie befindet sich in einem ruhigen und sonnigen Wohngebiet in Toplage. Hayingen und die Schwäbische Alb warten mit einem vielfältigen Sport- und Freizeitangebot auf. Ob Wandern, Radfahren, Wintersport oder interessante Ausflugsziele, all dies und vieles mehr finden Sie in nächster Nähe.
Ihre unverbindliche Immobilien-Suche
Nebenkosten : Nachweis-/Erfolgshonorar 3,57 %, Grunderwerbsteuer 5 %, Notarkosten – ca. 1,2–1,5 %, Grundbuchkosten – ca. 1,0–1,5 %
Sämtliche Angebotsangaben sind nach bestem Wissen und Gewissen erstellt, und sollen Ihnen allgemeine Informationen ermöglichen. Da sie jedoch auf Informationen Dritter beruhen, kann von der BIV GmbH keine Gewähr für die Richtigkeit übernommen werden. Unsere Angebote sind freibleibend, der Zwischenverkauf bleibt uns vorbehalten.
