Einfamilienhaus in Überlingen
Seeblick vor der Haustür • Ein Haus mit Potenzial und Raum für Ideen
In traumhafter Lage im Wohngebiet von Überlingen bietet dieses großzügige Einfamilienhaus einen herrlichen Blick auf den Bodensee – ein Anblick, den man jeden Tag genießen kann. Das Haus besticht durch viel Platz für die ganze Familie und eine durchdachte Raumaufteilung, die mit ein paar Umbaumaßnahmen sogar die Nutzung als Zweifamilienhaus ermöglichen könnte. Im Untergeschoss befinden sich ein Bad und ein zusätzliches Zimmer, während im Dachgeschoss ein weiteres Zimmer bereits ausgebaut wurde und weiteres Potenzial für Ausbau oder Gestaltung bietet. Eine sonnige Terrasse, ein gepflegter Garten, ein Balkon sowie eine Garage runden das Angebot ab und machen das Haus komplett. Hier findet man alles, was man zum komfortablen Wohnen braucht, und gleichzeitig viel Raum, um eigene Ideen zu verwirklichen. Mit ein wenig Renovierung können Sie sich hier Ihr persönliches Traumhaus in einer der begehrtesten Lagen von Überlingen schaffen – dort, wo andere Urlaub machen.
- Ruhige Wohnlage mit herrlichem Seeblick mit ca. 795 m² Grundstück
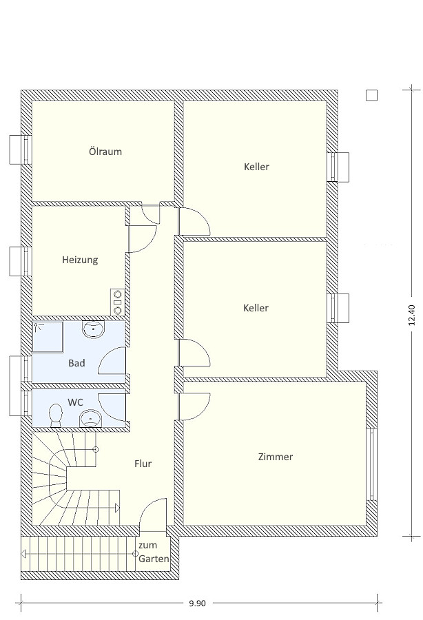
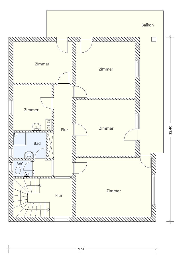
- ca. 240 m² Wohnfläche,10 Zimmer, Küche, Vorratsraum, 3 Bäder, 3 WC
- 2 Kellerräume, DG mit Ausbaupotenzial, Garage - B, 310,7 kWh, Öl-ZH, Kl. H, Baujahr 1965
Lage
Überlingen ist eine mittelgroße Stadt mit ca. 24.700 Einwohnern am nördlichen Bodenseeufer. Sie ist nach der Kreisstadt Friedrichshafen die zweitgrößte Stadt im Bodenseekreis. Die frühere Reichsstadt war von 1939 bis 1972 Kreisstadt des damaligen Landkreises Überlingen. Seit dem 1. Januar 1993 ist Überlingen Große Kreisstadt. Die Immobilie liegt in einer ruhigen und sonnigen Wohnlage und bietet einen herrlichen Seeblick. Hier finden Sie einfach alles, ob Arbeitsplätze, Kultur, Freizeitveranstaltungen, Vereine, Schulen, Ärzte, Einkauf und nicht zuletzt die traumhafte Wohnlage direkt am Bodensee.
Grundrisse
Objektanfrage
Nebenkosten : Nachweis-/Erfolgshonorar 3,57 %, Grunderwerbsteuer 5 %, Notarkosten – ca. 1,2–1,5 %, Grundbuchkosten – ca. 1,0–1,5 %
Sämtliche Angebotsangaben sind nach bestem Wissen und Gewissen erstellt, und sollen Ihnen allgemeine Informationen ermöglichen. Da sie jedoch auf Informationen Dritter beruhen, kann von der BIV GmbH keine Gewähr für die Richtigkeit übernommen werden. Unsere Angebote sind freibleibend, der Zwischenverkauf bleibt uns vorbehalten.
