1-2 Familienhaus in Unlingen
Absolut ruhige Randlage großes Grundstück und mit vielen Möglichkeiten
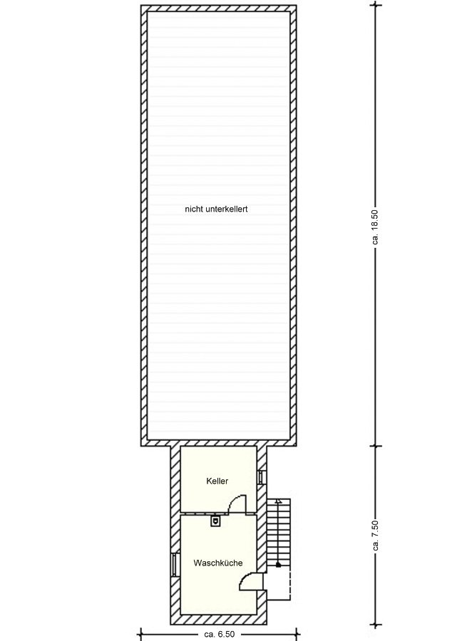
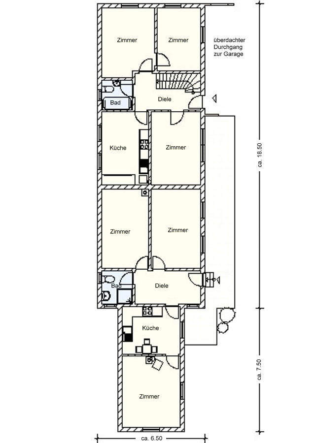
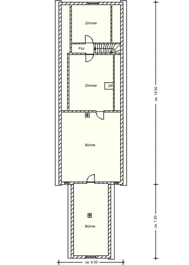
Dieses besondere Anwesen besticht durch seine idyllische und etwas versteckte Lage direkt am Ortsrand. Das großzügige Wohnhaus bietet eine Vielfalt an Nutzungsmöglichkeiten. Aktuell besteht die Immobilie aus zwei sep. Wohneinheiten, die sich bei Bedarf problemlos zu einem großen Ganzen verbinden lassen. Im DG wurden bereits ein Teil ausgebaut, zusätzlich steht hier noch eine großzügige Fläche zur Verfügung, die Sie ganz nach Ihren Bedürfnissen nutzen können. Der weitläufige Gartenbereich direkt vor dem Haus ist ein Paradies für Hobbygärtner und Familien mit Kindern, die hier jede Menge Platz zum Spielen und Entspannen finden. Ein absolutes Unikat stellt der beeindruckende Gewölbekeller unter dem Haus dar - der ehemalige Eiskeller einer Brauerei. Hier herrschen ideale Bedingungen für die Lagerung von Obst, Gemüse oder edlen Weinen.
- Ruhige Lage direkt am Ortsrand, ca. 1.107 m² Grundstück
- ca. 155 m² Wohnfläche, 8 Zimmer, 2 Küche, 2 Bäder, 2 WC
- Gewölbekeller, Garage, Abstellraum, Carport B, 580,13 kWh, Öl/E, Klasse H, Baujahr 1950
Lage
Die Immobilie befindet sich in ruhiger Ortsrandlage der oberschwäbischen Gemeinde Unlingen mit herrlichem Blick auf den Bussen, den „Heiligen Berg Oberschwabens“. Eingebettet in eine sanfte Hügellandschaft und angrenzend an ein weitläufiges Landschaftsschutzgebiet bietet der Standort viel Ruhe und Naturnähe. Unlingen selbst überzeugt durch eine sehr gute Infrastruktur: Vor Ort gibt es eine Grund-, Haupt- und Werkrealschule, mehrere Kindergärten sowie Einkaufsmöglichkeiten, medizinische Versorgung und ein reges Vereinsleben. Dank der 2017 eröffneten Ortsumfahrung ist die Gemeinde vom Durchgangsverkehr entlastet und bietet dadurch hohe Wohn- und Lebensqualität. Über die Bundesstraße 311 bestehen schnelle Verbindungen nach Riedlingen, Ehingen, Biberach oder Sigmaringen, während der nächstgelegene Bahnhof in Riedlingen per Bus erreichbar ist. Zusätzlich ist Unlingen hervorragend an das RadNETZ Baden-Württemberg angeschlossen und liegt direkt an beliebten Fernradwegen wie der Donau-Radroute. Kulturell und landschaftlich hat die Umgebung viel zu bieten: barocke Kirchen, historische Klostergebäude sowie zahlreiche Wander- und Radwege rund um den Bussen, der bei klarem Wetter atemberaubende Ausblicke bis zu den Alpen ermöglicht. Damit verbindet dieser Standort idyllisches Wohnen in naturnaher Lage mit einer verlässlichen Infrastruktur und einer ausgezeichneten Verkehrsanbindung.
Grundrisse
Objektanfrage
Nebenkosten : Nachweis-/Erfolgshonorar 3,57 %, Grunderwerbsteuer 5 %, Notarkosten – ca. 1,2–1,5 %, Grundbuchkosten – ca. 1,0–1,5 %
Sämtliche Angebotsangaben sind nach bestem Wissen und Gewissen erstellt, und sollen Ihnen allgemeine Informationen ermöglichen. Da sie jedoch auf Informationen Dritter beruhen, kann von der BIV GmbH keine Gewähr für die Richtigkeit übernommen werden. Unsere Angebote sind freibleibend, der Zwischenverkauf bleibt uns vorbehalten.
