Wohn- und Geschäftshaus in Engstingen-Großengstingen
Schrauben, schaffen, entspannen Wohnen und Arbeiten clever kombiniert
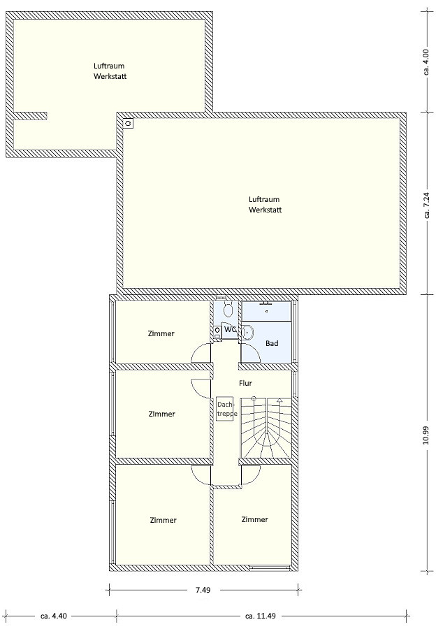
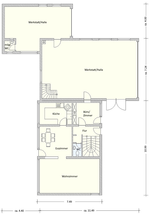
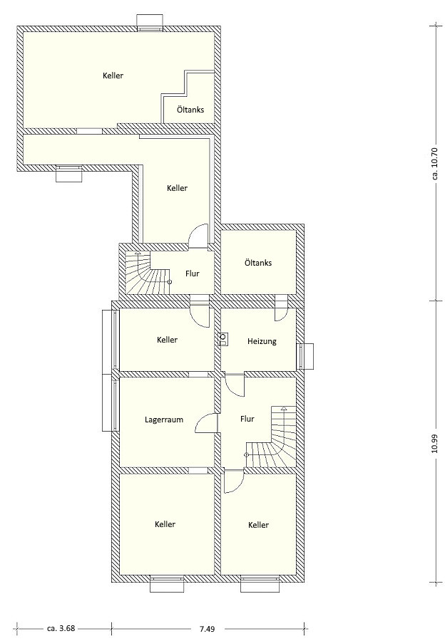
Dieses vielseitige Wohn- und Geschäftshaus bietet die perfekte Kombination aus Wohnen und Arbeiten – ideal für Schrauber und Handwerker. Die großzügige Werkstatt beeindruckt mit drei Hebebühnen und einer Hallenhöhe von bis zu vier Metern, sodass auch große Fahrzeuge problemlos Platz finden. Viel Nutzfläche und zusätzlicher Stauraum im Keller bieten ausreichend Raum für Material und Equipment. Ein praktischer, separater Büroraum mit eigenem Empfang ermöglicht professionellen Kundenkontakt. Der direkte Durchgang vom Wohnhaus zur Werkstatt sorgt für kurze Wege und optimale Abläufe. Das Wohnhaus bietet viel Platz für die Familie, individuelle Gestaltungsmöglichkeiten und zusätzliches Ausbaupotenzial im Dachgeschoss. Für erholsame Momente stehen ein isoliertes Gartenhaus und ein mitgepachteter Grünstreifen bereit. Die zentrale Lage in einem Ortsteil von Engstingen sowie zahlreiche Stellplätze runden dieses attraktive Gesamtpaket ab.
- Zentrale Lage mit guter Anbindung auf ca. 520 m² Grundstücksfläche
- ca. 217 m² Nutzfläche, 2 Werkstätten, 3 Hebebühnen, viel Stauraum im Keller
- ca. 128 m² Wohnfläche, 5,5 Zimmer, Küche mit EBK, Bad, WC, Büro, Gartenhaus - B, 235,95 kWh, Klasse G , Öl-ZH, Baujahr 1964
Lage
Engstingen ist eine Gemeinde mit ca, 5100 Einwohnern, am Nordrand der Schwäbischen Alb in der Nähe des Albtraufs im Tal der Ur-Lauter, etwa 15 km Luftlinie südlich der Kreisstadt Reutlingen. Das Wohn- und Geschäftshaus liegt in zentraler Lage mit guter Anbindung in Großengstingen. Kindergarten und Schulen sind vorhanden, ebenfalls die bekannte Waldorfschule. Die Umgebung von Engstingen lockt mit unzähligen Möglichkeiten zur Kultur- und Freizeitgestaltung wie Wanderwege, Skiloipen- und Lifte, Sehenswürdigkeiten, Aussichtspunkten, Schwimmbad usw. Gute Verkehrsanbindung nach Reutlingen / Stuttgart.
Ihre unverbindliche Immobilien-Suche
Nebenkosten : Nachweis-/Erfolgshonorar 3,57 %, Grunderwerbsteuer 5 %, Notarkosten – ca. 1,2–1,5 %, Grundbuchkosten – ca. 1,0–1,5 %
Sämtliche Angebotsangaben sind nach bestem Wissen und Gewissen erstellt, und sollen Ihnen allgemeine Informationen ermöglichen. Da sie jedoch auf Informationen Dritter beruhen, kann von der BIV GmbH keine Gewähr für die Richtigkeit übernommen werden. Unsere Angebote sind freibleibend, der Zwischenverkauf bleibt uns vorbehalten.
