Einfamilienhaus in Dürmentingen
Heimkommen und Wohlfühlen gemütliches Zuhause mit Platz für Ihre Ideen
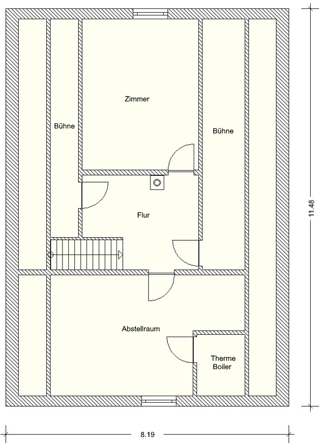
Dieses charmante Zuhause bietet den idealen Einstieg in die eigenen vier Wände. Es überzeugt mit einer guten Raumaufteilung und zeitgemäßen Komfort. Energetische Sanierungen, wie der Einbau einer Zentralheizung, der Austausch der Fenster sowie die Neueindeckung und Dämmung des Daches, sorgen für ein angenehmes Wohnklima. Im DG ist bereits ein Zimmer ausgebaut, das sich vielseitig nutzen lässt. Zudem besteht hier die Möglichkeit, weiteren Wohnraum zu schaffen und das Haus individuell nach Ihren eigenen Vorstellungen zu erweitern. Hinter dem Haus gibt es Platz um einen gemütlichen Freisitz oder Gartenbereich zu gestalten, ideal zum Entspannen im Grünen. Die ruhige Lage, nur wenige Schritte vom Ortsrand entfernt, bietet naturnahes Wohnen und gleichzeitig eine gute Anbindung. Riedlingen und Biberach sind mit dem Auto schnell und bequem erreichbar.
- Ruhige Wohnlage mit ca. 208 m² Grundstück, Hausumbau 1961
- 4 Zimmer, Küche, Bad, WC, weiterer DG-Ausbau möglich
- ca. 88 m² Wohnfläche, ZH-Baujahr 2004 B, 286,34 kWh, Gas/Hz, Klasse H, älteres Baujahr
Lage
Der schöne Ort Dürmentingen befindet sich im Landkreis Biberach, direkt beim berühmten Hausberg Oberschwabens, dem Bussen. Das Objekt liegt in ruhiger und sonniger Ortslage mit einem schönen Garten- grundstück. Ein Kindergarten sowie die Grundschule sind direkt vor Ort. Ein sehr gut ausgebautes Netz von Wanderwegen ermöglicht ein bequemes Wandern und Radfahren in Wald und Flur wie auch zum Nahe gelegenen Ferdersee der Thermalbadstadt Bad Buchau. Günstige Verkehrslage nach Riedlingen / Bad Buchau und Biberach.
Ihre unverbindliche Immobilien-Suche
Nebenkosten : Nachweis-/Erfolgshonorar 3,57 %, Grunderwerbsteuer 5 %, Notarkosten – ca. 1,2–1,5 %, Grundbuchkosten – ca. 1,0–1,5 %
Sämtliche Angebotsangaben sind nach bestem Wissen und Gewissen erstellt, und sollen Ihnen allgemeine Informationen ermöglichen. Da sie jedoch auf Informationen Dritter beruhen, kann von der BIV GmbH keine Gewähr für die Richtigkeit übernommen werden. Unsere Angebote sind freibleibend, der Zwischenverkauf bleibt uns vorbehalten.
