Einfamilienhaus (DHH) in Sigmaringen
Ihr Traum vom Eigenheim wird wahr familienfreundliches Zuhause mit großem Garten
Diese charmante Doppelhaushälfte vereint familienfreundliches Wohnen, eine ruhige Lage und ein großzügiges Grundstück zu einem echten Wohlfühlpaket. Der geschützte Garten hinter dem Haus ist ein Paradies für Kinder, hier können sie unbeschwert spielen und toben, während Sie die Ruhe und Privatsphäre genießen. Mit rund 120 m² Wohnfläche bietet das Haus ideale Bedingungen für Familien. Durchdachte Details wie der sep. Gartenzugang vom Keller und die Garage machen den Alltag besonders komfortabel. Das Haus bietet Ihnen die Chance, es ganz nach Ihren Vorstellungen zu modernisieren und so ein Zuhause für die Zukunft zu gestalten, das keine Wünsche offenlässt. Die Lage überzeugt auf ganzer Linie. In einem ruhigen Wohngebiet gelegen, erreichen Sie die Innenstadt von Sigmaringen bequem zu Fuß. Gleichzeitig beginnen Spaziergänge und Radtouren in die grüne Natur direkt vor Ihrer Haustür.
- Ruhige und sonnige Lage mit ca. 427 m² Grundstück
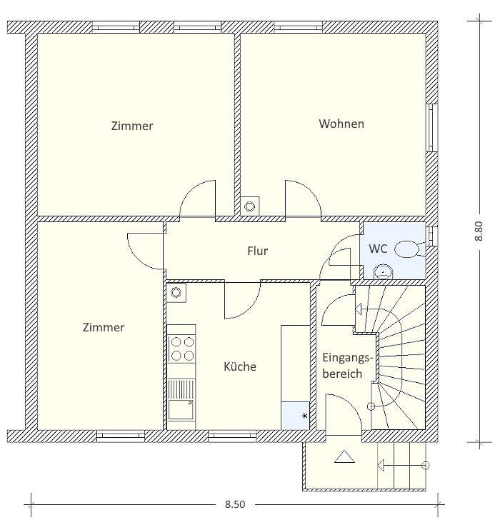
- ca. 118 m² Wohnfläche, 6 Zimmer, Küche, Bad, 2 WC, Freisitz, Garage
- B, 389,93 kWh, Gas, Kl. H, Baujahr 1952
Lage
Sigmaringen, inmitten einer der schönsten Regionen Baden-Württembergs gelegen, ist eine Stadt mit einer äußerst interessanten und bewegten Vergangenheit, wie z.B. das Schloss, als Wahrzeichen der Stadt. Sigmaringen liegt im Herzen des Naturparks Obere Donau, dem bekannten Wander- und Radelparadies. Ebenfalls bieten sich eine vielzahl an kulturellen Veranstaltungen und Events. Die Immobilie liegt in einem ruhigen Wohngebiet von Sigmaringen mit einem sonnigen und geschützen Gartengrundstück. Die Kreisstadt Sigmaringen ist über die Bundesstraßen B 32, B 313, B 469 an das regionale Verkehrsnetz sowie an das Schienennetz angebunden. Sigmaringen verfügt über eine qualitativ hochwertige Bildungsinfrastruktur mit großer regionaler Bedeutung wie z.B. Gymnasium, Berufsfachschulen und Hochschulen.
Ihre unverbindliche Immobilien-Suche
Nebenkosten : Nachweis-/Erfolgshonorar 3,57 %, Grunderwerbsteuer 5 %, Notarkosten – ca. 1,2–1,5 %, Grundbuchkosten – ca. 1,0–1,5 %
Sämtliche Angebotsangaben sind nach bestem Wissen und Gewissen erstellt, und sollen Ihnen allgemeine Informationen ermöglichen. Da sie jedoch auf Informationen Dritter beruhen, kann von der BIV GmbH keine Gewähr für die Richtigkeit übernommen werden. Unsere Angebote sind freibleibend, der Zwischenverkauf bleibt uns vorbehalten.
