Einfamilienhaus mit ELW in Scheer
Wohnen, wo die Natur beginnt • ideal für Familien, mehrere Generationen oder Mieteinnahmen
In ruhiger Lage am Ende einer Sackgasse begeistert dieses Domizil durch die Kombination aus großzügigem Raumangebot, gepflegtem Wohnkomfort und idyllischem Garten. Die frisch renovierte Einliegerwohnung überzeugt mit hochwertigen Vinylböden, einem neuen Bad, der modernen Einbauküche und dem direktem Zugang zur Terrasse, perfekt für Familienangehörige oder zur lukrativen Vermietung. Die Hauptwohnung besticht durch ihren lichtdurchfluteten Wohn- und Essbereich mit Balkon und direktem Zugang in den Garten. Zwei weitere Zimmer, ein umfangreich ausgestattetes Bad, ein Gäste-WC sowie die Küche vervollständigen das EG. Im DG eröffnen zwei große Zimmer, eine Küchenzeile und ein zusätzliches WC unzählige Nutzungsmöglichkeiten, ob für Gäste, Homeoffice oder als eigener Rückzugsort. Der liebevoll angelegte Garten bietet einen hohen Erholungswert. Obstbäume spenden im Sommer wohltuenden Schatten, ein idyllischer Laubenfreisitz mit Reben lädt zum Verweilen ein und das praktische Gartenhaus sorgt für zusätzlichen Stauraum.
- Sonnige Aussichtslage mit ca. 727 m² Grundstück, 2 Garagen, Balkon, Loggia, Terrasse, Gartenhaus
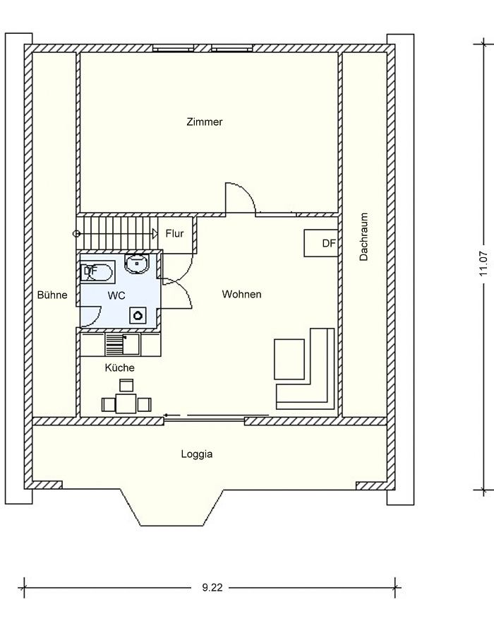
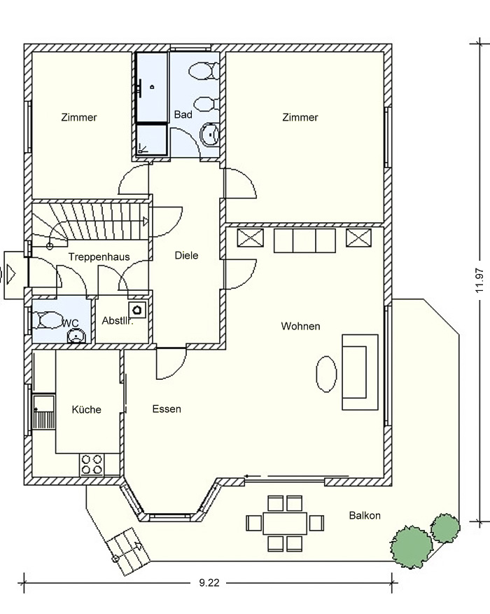
- EG und DG mit 5,5 Zimmer, Küche, Bad, 2 WC, Abstellraum UG mit 2 Zimmer, Küche, Bad, WC Zentralheizung Baujahr 2010
- Hauptwohnung ca. 148 m² Wohnfläche Einliegerwohnung ca. 56 m² Wohnfläche V, 67,63 kWh, Gas, Klasse B, Baujahr 1986
Lage
Die angebotene Immobilie befindet am Rande der Stadt Scheer im Landkreis Sigmaringen, Baden-Württemberg. Scheer liegt malerisch im Donautal und grenzt im Norden an den Naturpark Obere Donau. Die Stadt ist von sanften Hügeln und Wäldern umgeben und bietet eine hohe Lebensqualität inmitten der Natur. Mit knapp 2.500 Einwohnern zählt Scheer zu den kleineren Städten im Landkreis, was für eine familiäre Atmosphäre und eine gute Nachbarschaft spricht. Die Umgebung zeichnet sich durch eine gute Infrastruktur aus. In Scheer finden Sie alle Einrichtungen des täglichen Bedarfs, darunter Supermärkte, Banken und Apotheken. Für die medizinische Versorgung stehen Allgemeinmediziner sowie Fachärzte vor Ort zur Verfügung. Die nächstgelegene größere Stadt ist die Kreisstadt Sigmaringen, die in etwa 6 km Entfernung liegt und alle Einkaufsmöglichkeiten, Schulen und kulturelle Angebote bietet. Für Familien ist Scheer besonders attraktiv: Die Stadt verfügt über eine Grundschule, die fußläufig erreichbar ist, sowie über Kindergärten und Spielplätze. Ältere Schüler können die weiterführenden Schulen in Sigmaringen besuchen, die gut mit dem Bus erreichbar sind. Die Verkehrsanbindung ist ebenfalls vorteilhaft: Scheer ist über die Bundesstraße B32 an das überregionale Straßennetz angebunden. Der öffentliche Nahverkehr wird durch den Verkehrsverbund Neckar-Alb-Donau (NALDO) gewährleistet, sodass auch ohne eigenes Auto eine gute Mobilität gegeben ist . Die Immobilie selbst liegt am Ende einer Sackgasse, was für Ruhe und Privatsphäre sorgt. Trotz der ländlichen Idylle sind Sie direkt an der Bundesstraße B32, die Sie schnell nach Sigmaringen oder zu weiteren Zielen in der Region führt. Insgesamt bietet diese Lage eine perfekte Kombination aus naturnahem Wohnen, guter Anbindung und einer hohen Lebensqualität – ideal für Familien, Paare oder Ruhesuchende.
Grundrisse
Objektanfrage
Nebenkosten : Nachweis-/Erfolgshonorar 3,57 %, Grunderwerbsteuer 5 %, Notarkosten – ca. 1,2–1,5 %, Grundbuchkosten – ca. 1,0–1,5 %
Sämtliche Angebotsangaben sind nach bestem Wissen und Gewissen erstellt, und sollen Ihnen allgemeine Informationen ermöglichen. Da sie jedoch auf Informationen Dritter beruhen, kann von der BIV GmbH keine Gewähr für die Richtigkeit übernommen werden. Unsere Angebote sind freibleibend, der Zwischenverkauf bleibt uns vorbehalten.
