5,5 Zimmer Eigentumswohnung in Sigmaringen
Große Wohnung • eigene Terrasse in zentraler Stadtlage
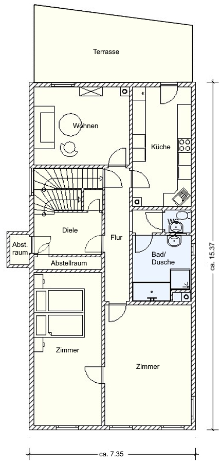
Mitten in der Fußgängerzone von Sigmaringen präsentiert sich diese großzügige Stadtwohnung und bietet mit ca. 160 m² vielfältige Nutzungsmöglichkeiten. Besonders hervorzuheben ist die flexible Aufteilung, denn die Immobilie kann sowohl als großzügige Einheit bewohnt als auch in zwei sep. Wohnungen genutzt werden. Das DG hat einen eigenen Zugang, sodass sich die Räumlichkeiten ideal für Familienmitglieder oder Gäste eignen. Im OG erwarten Sie drei geräumige Zimmer, ein Bad sowie eine moderne Einbauküche, von der aus man direkten Zugang zur großzügigen Terrasse hat. Das DG bietet zwei weitere helle Zimmer, ein Bad sowie eine kompakte Einbauküche und komplettiert damit das vielseitige Wohnangebot. In den letzten Jahren wurden umfangreiche Modernisierungen durchgeführt, die der Wohnung ein wertiges und gepflegtes Ambiente verleihen. Edle Parkettböden, helle Türen, Kunststofffenster und eine effiziente Gas-Therme schaffen ein ansprechendes Wohngefühl. In unmittelbarer Nähe befinden sich viele Einkaufsmöglichkeiten, Ärzte, Apotheken und gastronomische Angebote, und auch das idyllische Donauufer erreichen Sie in nur wenigen Schritten.
- Zentrale und autofreie Lage, ca. 162 m² Grundstück, großzügige Terrasse
- ca. 160 m² Wohnfläche, 5,5 Zimmer, 2 Küchen, 2 Bäder, 2 WC
- Zentralheizung Baujahr 2016 B, 235,29 kWh, Gas, Klasse G, Baujahr 1900/1976
Lage
Sigmaringen, inmitten einer der schönsten Regionen Baden-Württembergs gelegen, ist eine Stadt mit einer äußerst interessanten und bewegten Vergangenheit, wie z.B. das Schloss, als Wahrzeichen der Stadt. Sigmaringen liegt im Herzen des Naturparks Obere Donau, dem bekannten Wander- und Radelparadies. Ebenfalls bieten sich eine Vielzahl an kulturellen Veranstaltungen und Events. Die Immobilie befindet sich in zentraler Stadtlage - im Herzen von Sigmaringen. Einkäufe, gastronomische Angebote und Ärzte befinden sich direkt vor ihrer Haustür. Sigmaringen verfügt über eine qualitativ hochwertige Bildungsinfrastruktur mit großer regionaler Bedeutung wie z.B. Gymnasium, Berufsfachschulen und Hochschulen und ist an das regionale Verkehrsnetz sowie an das Schienennetz angebunden.
Grundrisse
Objektanfrage
Nebenkosten : Nachweis-/Erfolgshonorar 3,57 %, Grunderwerbsteuer 5 %, Notarkosten – ca. 1,2–1,5 %, Grundbuchkosten – ca. 1,0–1,5 %
Sämtliche Angebotsangaben sind nach bestem Wissen und Gewissen erstellt, und sollen Ihnen allgemeine Informationen ermöglichen. Da sie jedoch auf Informationen Dritter beruhen, kann von der BIV GmbH keine Gewähr für die Richtigkeit übernommen werden. Unsere Angebote sind freibleibend, der Zwischenverkauf bleibt uns vorbehalten.
