Einfamilienhaus in Kohlstetten
Niederenergiehaus • direkt am Ortsrand im Einklang mit der Natur, effizient und behaglich
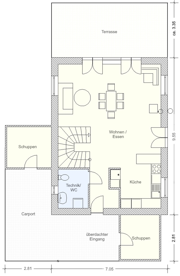
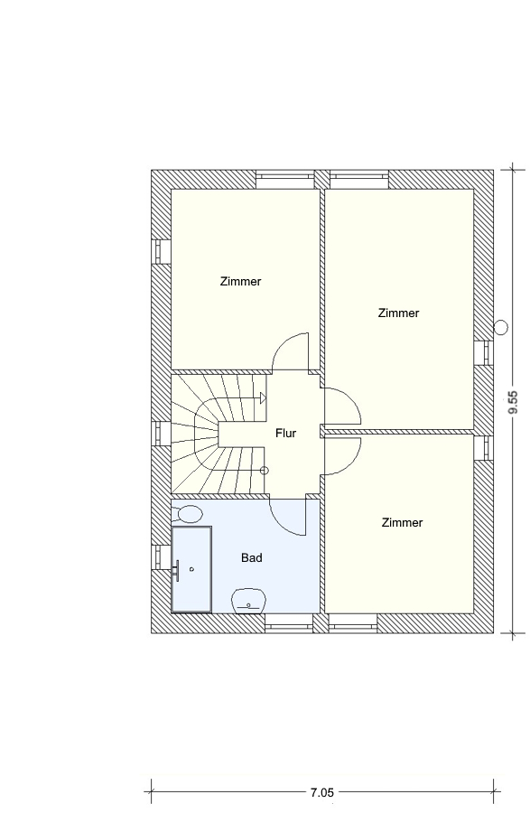
Dieses attraktive Domizil wurde in hochwertiger Holzständerbauweise errichtet und überzeugt mit einer effizienten Wärmerückgewinnungsanlage. An kühlen Tagen sorgt zusätzlich ein Kaminofen für eine gemütliche Atmosphäre. Im EG erwartet Sie ein großzügiger, lichtdurchfluteter Wohn- und Essbereich mit offener Küche, der viel Raum für gemeinsame Stunden bietet, ergänzt durch einen funktionalen Technikraum mit WC und Waschmaschinenanschluss. Das DG beherbergt drei weitere Zimmer sowie ein komfortables Bad und schafft damit ein ideales Raumangebot für Familien. Hochwertige Holzdielenböden und helle Holzdecken verleihen dem gesamten Haus einen natürlichen, warmen Charakter. Auf der sonnigen Terrasse genießen Sie entspannte Stunden mit Blick in die grüne Natur und den liebevoll angelegten Garten. Die ruhige Lage direkt am Ortsrand macht das Haus besonders attraktiv für Familien mit Kindern und Naturliebhaber, während die verkehrsgünstige Anbindung nach Engstingen und Münsingen die Einrichtungen des täglichen Bedarfs schnell erreichbar macht.
- Ruhige Lage am Ortsrand mit ca. 579 m² Grundstück, Carport, Stellplatz, 2 Schuppen, und große Terrasse
- ca. 110 m² Wohnfläche, 4,5 Zimmer, Küche mit Einbauküche, Bad, 2 WC
- PV, Kaminofen, Wärmerückgewinnung V, 47 kWh, E, Klasse A, Baujahr 2001
Lage
Kohlstetten ist ein idyllischer Ortsteil der Gemeinde Engstingen im Landkreis Reutlingen, eingebettet in die sanfte Hügellandschaft der Schwäbischen Alb. Der Ort besticht durch seine ländliche Ruhe, gleichzeitig aber auch durch eine gute Anbindung an das Verkehrsnetz: Über die Landesstraße 230 sind die Städte Reutlingen und Stuttgart schnell erreichbar, zudem bestehen Busverbindungen in die umliegenden Orte. Kohlstetten verfügt über eine solide Infrastruktur mit Glasfaser-Internet, Bildungseinrichtungen wie Kindergärten und Schulen sowie einer guten Versorgung durch Ärzte, Apotheken und Einkaufsmöglichkeiten in der näheren Umgebung. Freizeit- und Naturangebote sind vielfältig: Wander- und Radwege laden zu Erkundungstouren durch die reizvolle Landschaft der Schwäbischen Alb ein. Im Ortskern prägt die historische Marienkirche das Bild, und das aktive Vereinsleben sorgt für ein lebendiges Gemeinschaftsgefühl. Insgesamt verbindet Kohlstetten ländliche Idylle mit guter Erreichbarkeit, modernen Annehmlichkeiten und hoher Lebensqualität – ideal für Familien, Pendler und Naturliebhaber. Ein absolutes Plus ist die idyllische und ruhige Lage der Immobilie - direkt am Ortsrand!
Ihre unverbindliche Immobilien-Suche
Nebenkosten : Nachweis-/Erfolgshonorar 3,57 %, Grunderwerbsteuer 5 %, Notarkosten – ca. 1,2–1,5 %, Grundbuchkosten – ca. 1,0–1,5 %
Sämtliche Angebotsangaben sind nach bestem Wissen und Gewissen erstellt, und sollen Ihnen allgemeine Informationen ermöglichen. Da sie jedoch auf Informationen Dritter beruhen, kann von der BIV GmbH keine Gewähr für die Richtigkeit übernommen werden. Unsere Angebote sind freibleibend, der Zwischenverkauf bleibt uns vorbehalten.
