Einfamilienhaus in Zwiefalten-Gossenzugen
Charmantes Anwesen mitten im Grünen Ruhe pur mit viel Freiraum zum Wohnen und Wohlfühlen
Dieses einzigartige Anwesen verzaubert bereits auf den ersten Blick durch seine traumhafte Lage direkt am idyllischen Ortsrand und verbindet Wohnen im Grünen mit besonderen Möglichkeiten für die ganze Familie. Das moderne 1 Fam.-Haus mit rund 110 m², empfängt Sie im EG mit einem lichtdurchfluteten Wohn- und Essbereich samt offener Küche, einem zusätzlichen Zimmer, Gäste-WC sowie einer großen überdachten Terrasse, die zum gemütlichen Verweilen einlädt. Im DG erwarten Sie drei weitere Zimmer und ein Bad – ideal, um persönliche Rückzugsorte zu schaffen. Ein echtes Highlight ist das 2. Gebäude auf dem Grundstück. Ein charmantes Häuschen mit etwa 45 m² Wohnfläche, das sich perfekt für die Oma, als Ferienhaus oder zur Vermietung eignet und damit viele neue Perspektiven eröffnet. Das weitläufige Grundstück schenkt Kindern und Haustieren einen geschützten Raum zum Spielen und Toben, während der ehemalige Hundezwinger zusätzliche Möglichkeiten bietet, zum Beispiel zur Haltung von Hühnern - ein Stück ländliche Lebensqualität zum Anfassen.
- Ruhige und sonnige Lage am Ortsrand, ca. 1.600 m² Grundstück
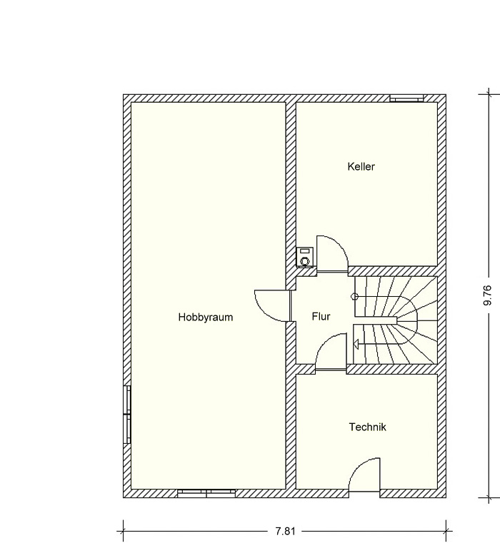
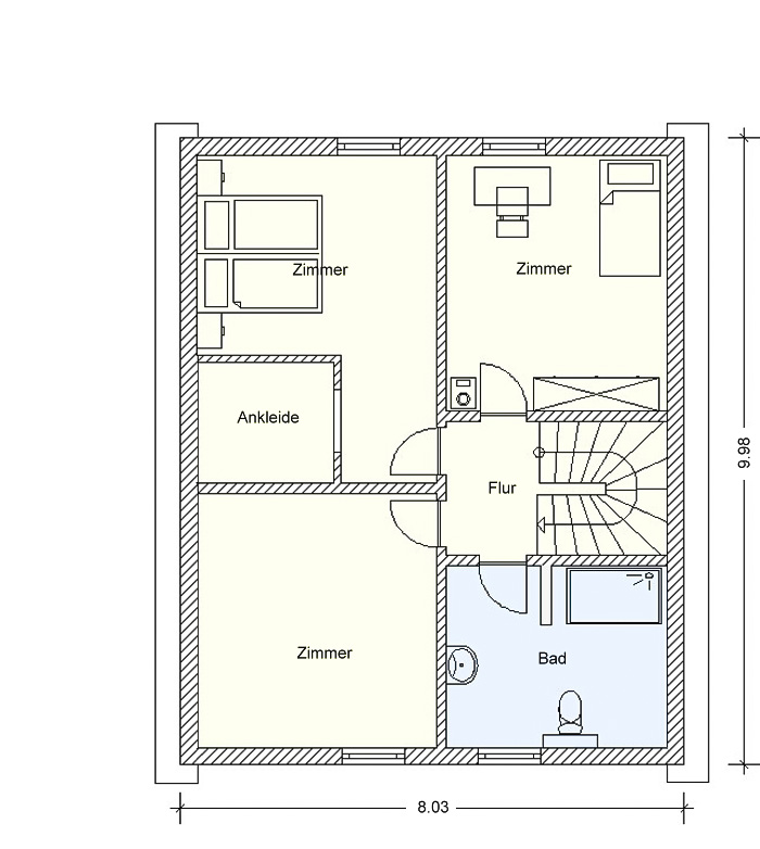
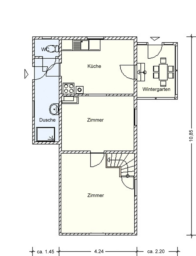
- 1 Famhaus ca. 110 m² Wohnfläche, 5,5 Zimmer, Einbauküche, Bad, 2 WC, überdachte Terrasse, Kaminofen, Garage 2. Haus, ca. 45 m² Wohnfläche, 2 Zimmer, Küche, Holzherd, Dusche, WC, Wintergarten, Freisitz
- ehemaliger Hundezwinger V, 31,10 kWh, Strom, Klasse A, Baujahr 2008
Lage
Zwiefalten ist eine Gemeinde im Landkreis Reutlingen etwa auf halber Strecke zwischen Stuttgart und dem Bodensee. Das Ortsbild wird durch die Gebäude der ehemaligen Abtei Zwiefalten (heute: Zentrum für Psychiatrie) dominiert, deren Klosterkirche eine der Hauptsehenswürdigkeiten der Oberschwäbischen Barockstraße ist. Zwiefalten ist mit 44,3 % seiner Gemarkung Teil des Biosphärengebiets Schwäbische Alb. Ein Teilort von Zwiefalten ist Gossenzugen, in malerischer Lage im Tal der Zwiefalter Aach. Hier liegt die Immobilie in idyllische Wohn- und Aussichtslage direkt am Ortsrand von Gossenzugen. Ein gut ausgebautes Wander- und Radnetz (der bekannte Zwiefalter Albradweg) begeistert nicht nur Freizeitsportler und im Sommer sorgt das Höhen-Freibad Zwiefalten für Abkühlung. Trotz seiner bescheidenen Größe, verfügt Zwiefalten über eine hervorragende Infrastruktur: ausreichend Einkaufsmöglichkeiten, Gaststätten, soziale und kulturelle Einrichtungen sowie Kindergarten und Schulen bis zur Mittleren Reife. Auch die verschiedenen Betriebe und eine gute Verbindung zur Kreisstadt Reutlingen machen die Gemeinde zu einem attraktiven Wohnort.
Grundrisse
Objektanfrage
Nebenkosten : Nachweis-/Erfolgshonorar 3,57 %, Grunderwerbsteuer 5 %, Notarkosten – ca. 1,2–1,5 %, Grundbuchkosten – ca. 1,0–1,5 %
Sämtliche Angebotsangaben sind nach bestem Wissen und Gewissen erstellt, und sollen Ihnen allgemeine Informationen ermöglichen. Da sie jedoch auf Informationen Dritter beruhen, kann von der BIV GmbH keine Gewähr für die Richtigkeit übernommen werden. Unsere Angebote sind freibleibend, der Zwischenverkauf bleibt uns vorbehalten.
