1-2 Familienhaus in Sonnenbühl-Willmandingen
Attraktives Domizil am Ortsrand, mit vielen Möglichkeiten für Familie, Arbeit und Freizeit
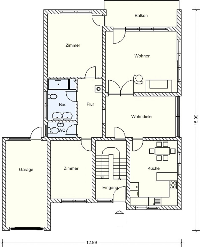
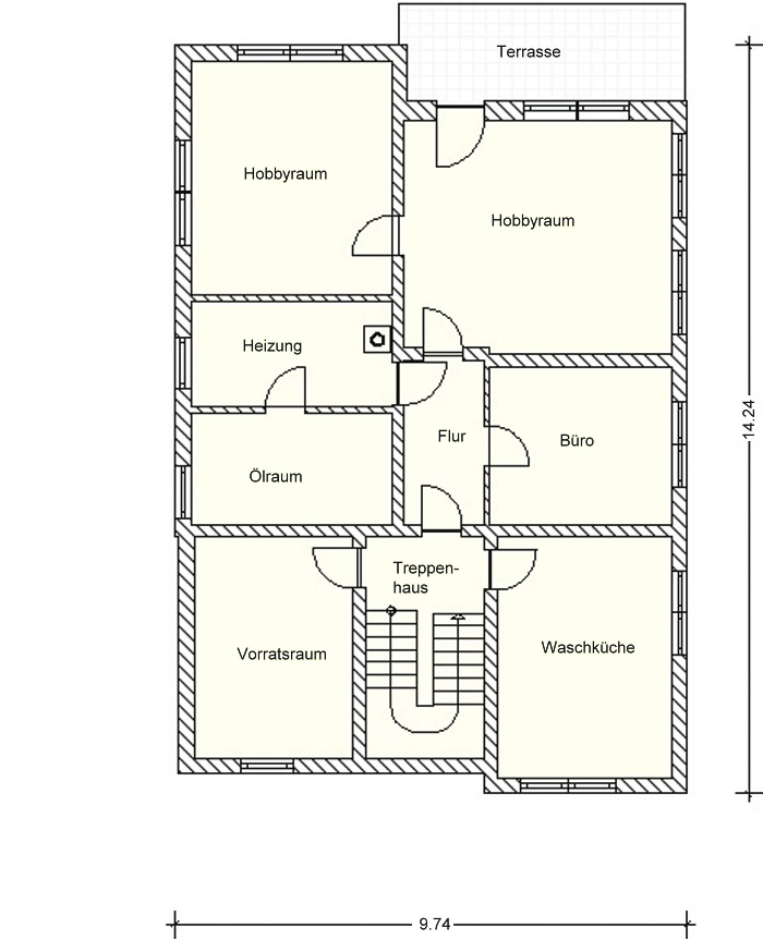
Dieses attraktive Wohnhaus überzeugt bereits auf den ersten Blick durch seine Lage direkt am Ortsrand sowie sein einladendes und gepflegtes Erscheinungsbild, das sich auch im Inneren fortsetzt. Umfangreiche Massivhölzer, große Fensterfronten, helle und großzügige Räume, pflegeleichte Kunststofffenster, moderne Heiztechnik sowie die ansprechenden Balkone unterstreichen die hohe Qualität und den überzeugenden Zustand des Hauses. Das EG begeistert mit ca. 95 m² Wohnfläche und vermittelt ein angenehmes und befreiendes Wohngefühl mit viel Raum zur individuellen Entfaltung. Im DG wurde bereits ein Teil ausgebaut, durch weiteren Ausbau kann hier eine Einliegerwohnung entstehen womit sich die Immobilie auch als Zweifamilienhaus nutzen lässt. Das UG mit sep. Eingang und rund 50 m² Nutzfläche und eröffnet durch seine außergewöhnliche Raumhöhe von 2,70 m vielfältige Optionen, ob als Büro-oder Hobbybereich oder für ein Kleingewerbe wie beispielsweise ein Nagelstudio, hier finden Sie optimale Voraussetzungen und variable Nutzungsmöglichkeiten.
- Sonnige Lage am Ortsrand, ca. 542 m² Grundstück mit Garage
- 4,5 Zimmer, Wohnküche, Bad, 2 WC, 2 Balkone, Terrasse
- ca. 125 m² Wohn-, ca. 53 m² Nutzfläche UG Öl-Zentralheizung Baujahr 2004 B, 216,26 kWh, Öl, Klasse G, Baujahr 1975
Lage
Sonnenbühl -Willmandingen liegt landschaftlich reizvoll auf der Hochfläche der Schwäbischen Alb im Landkreis Reutlingen. Der Ort ist geprägt von einer ruhigen, naturnahen Umgebung mit weiten Wiesen, Wäldern und einer gesunden Höhenluft – ideal für alle, die Wert auf Erholung, Ruhe und eine hohe Wohnqualität legen. Die Immobilie befindet sich am Ortsrand in besonders idyllischer Lage, sodass man die Vorzüge der Natur direkt vor der Haustüre genießen kann, gleichzeitig aber in wenigen Minuten im Ortskern ist. Willmandingen selbst bietet eine gute Grundversorgung durch kleine Geschäfte wie Bäckerei und Metzgerei, Gaststätte sowie Kindergarten und eine Grundschule. Weitere Einkaufsmöglichkeiten, Ärzte, Apotheken und weiterführende Schulen finden sich in den benachbarten Orten wie z.B. Engstingen oder Undingen. Die Verkehrsanbindung ist für die Höhenlage der Alb sehr gut: Über die B313 erreicht man schnell die Städte Reutlingen und Tübingen, ebenso besteht eine gute Verbindung Richtung Metzingen, Bad Urach und Stuttgart. Auch der öffentliche Nahverkehr ist über Buslinien in die umliegenden Orte angebunden. Neben der Infrastruktur überzeugt die Lage durch vielfältige Freizeit- und Erholungsmöglichkeiten. Sonnenbühl ist bekannt für die Bärenhöhle, die Sommerrodelbahn, das Traumland-Erlebnispark sowie zahlreiche Wander- und Radwege. Im Winter laden Loipen und Skilifte zum Wintersport ein. Die Region bietet damit das ganze Jahr über abwechslungsreiche Möglichkeiten für Familien, Naturliebhaber und Sportbegeisterte. Insgesamt verbindet die Lage in Sonnenbühl-Willmandingen eine ruhige, naturnahe Wohnqualität mit einer soliden Infrastruktur und einer guten Erreichbarkeit der umliegenden Städte.
Ihre unverbindliche Immobilien-Suche
Nebenkosten : Nachweis-/Erfolgshonorar 3,57 %, Grunderwerbsteuer 5 %, Notarkosten – ca. 1,2–1,5 %, Grundbuchkosten – ca. 1,0–1,5 %
Sämtliche Angebotsangaben sind nach bestem Wissen und Gewissen erstellt, und sollen Ihnen allgemeine Informationen ermöglichen. Da sie jedoch auf Informationen Dritter beruhen, kann von der BIV GmbH keine Gewähr für die Richtigkeit übernommen werden. Unsere Angebote sind freibleibend, der Zwischenverkauf bleibt uns vorbehalten.
