1-Zimmer Eigentumswohnung in Radolfzell
Charmante Wohnung in Seenähe, ideal als Kapitalanlage oder für den Eigenbedarf
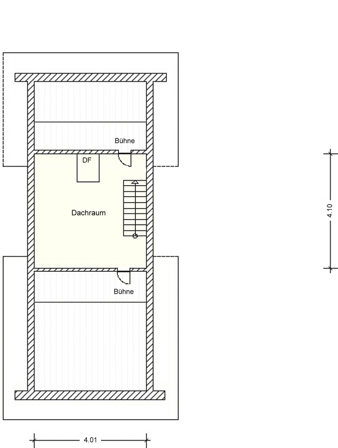
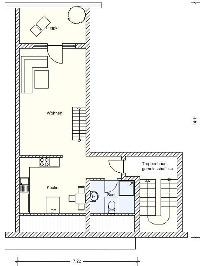
Die charmante Eigentumswohnung befindet sich in einem gepflegten Mehrfamilienhaus und erstreckt sich über zwei Ebenen, wodurch sie ein besonders großzügiges Wohngefühl vermittelt. Im Dachgeschoss erwartet Sie der lichtdurchflutete Wohnbereich mit offener, moderner Einbauküche sowie ein Badezimmer. Der ausgebaute Dachspitz ist über eine Treppe vom Wohnzimmer aus zu erreichen und eröffnet zusätzliche Nutzungsmöglichkeiten. Ein besonderes Highlight ist die Loggia, die zum Entspannen im Freien einlädt. Zur Wohnung gehören außerdem ein Kellerraum und ein Stellplatz direkt vor dem Haus, was für zusätzlichen Komfort sorgt. Mehrere Gemeinschaftsräume wie eine Waschküche, Trockenraum und ein Fahrradabstellraum stehen den Bewohnern ebenfalls zur Verfügung und runden das Angebot ideal ab. Die Lage überzeugt durch ihre Nähe zum Bodensee, den Sie in nur wenigen Minuten erreichen, sowie durch die gute Infrastruktur mit Einkaufsmöglichkeiten für den täglichen Bedarf direkt um die Ecke.
- Sonnige Lage in einem Wohngebiet
- 1 Zimmer, Küche mit Einbauküche, Bad, WC, Loggia, Kellerraum
- Stellplatz vor dem Haus ca. 46 m² Wohnfläche V, 105 kWh, Gas, Klasse D, Baujahr 1991
Lage
Die Eigentumswohnung liegt in Radolfzell am Bodensee, einer besonders begehrten Stadt am westlichen Ufer des Sees, die durch ihre einzigartige Kombination aus Natur, Kultur und Lebensqualität überzeugt. Die Lage am Bodensee verleiht der Immobilie ein außergewöhnliches Wohngefühl – hier verbinden sich das beruhigende Flair des Wassers mit einer ausgezeichneten städtischen Infrastruktur. Das Wohngebiet ist ruhig und gepflegt, zugleich sind das Stadtzentrum, der Bahnhof und zahlreiche Einkaufsmöglichkeiten in wenigen Minuten erreichbar. Schulen, Kindergärten, medizinische Versorgung und vielfältige Freizeitangebote befinden sich in unmittelbarer Nähe. Radolfzell bietet mit seiner Uferpromenade, dem beliebten Strandbad und dem Naturschutzgebiet Mettnau ideale Bedingungen für Erholung und Aktivitäten im Freien. Durch die gute Verkehrsanbindung nach Konstanz, Singen und in die Schweiz ist die Stadt auch für Pendler attraktiv. Diese Lage vereint das Beste aus zwei Welten – entspanntes Wohnen am See und die Nähe zu allen wichtigen Einrichtungen des täglichen Lebens.
Grundrisse
Objektanfrage
Nebenkosten : Nachweis-/Erfolgshonorar 3,57 %, Grunderwerbsteuer 5 %, Notarkosten – ca. 1,2–1,5 %, Grundbuchkosten – ca. 1,0–1,5 %
Sämtliche Angebotsangaben sind nach bestem Wissen und Gewissen erstellt, und sollen Ihnen allgemeine Informationen ermöglichen. Da sie jedoch auf Informationen Dritter beruhen, kann von der BIV GmbH keine Gewähr für die Richtigkeit übernommen werden. Unsere Angebote sind freibleibend, der Zwischenverkauf bleibt uns vorbehalten.
