Zweifamilienhaus in Winterlingen-Benzingen
Mehrgenerationen-Wohnen oder XXL-Familienglück mit geschütztem Garten • privater Wellnessbereich
Dieses charmante 2 Fam.-Haus vereint stilvolles Wohnen, großzügige Platzverhältnisse und vielfältige Nutzungsmöglichkeiten unter einem Dach. Ob Mehrgenerationenwohnen, zusätzliche Mieteinnahmen oder XXL-Wohnkomfort für die ganze Familie, hier eröffnen sich zahlreiche Optionen, Ihren individuellen Wohntraum zu verwirklichen. Beide Wohneinheiten bestechen durch einen einladenden Wohn- und Essbereich, der durch einen Kaminofen ergänzt wird und eine behagliche Atmosphäre schafft. Helle Laminatböden, moderne Einbauküchen, energiesparende Kunststofffenster sowie Holzdecken mit stilvollen Einbaustrahlern unterstreichen das gepflegte Ambiente. Für entspannte Stunden im Freien stehen sowohl eine überdachte Terrasse als auch eine große Loggia zur Verfügung. Ein besonderes Highlight ist der Wellnessbereich im UG. Sauna, Ruheraum und direkter Zugang zum Garten machen diesen Bereich zu einer privaten Wohlfühloase. Auch die ruhige Lage in einem gepflegten Wohngebiet, nur wenige Schritte vom Ortsrand entfernt möchten Sie bald nicht mehr missen.
- Ruhige und sonnige Lage im Ortsrand- bereich, ca. 713 m² Grundstück
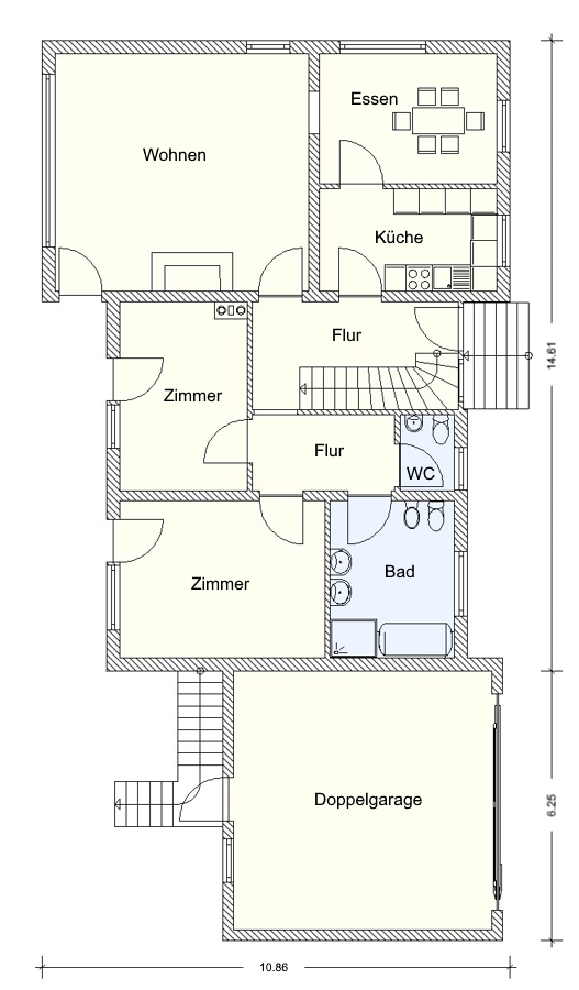
- EG ca. 108 m² Wohnfläche mit 3,5 Zimmer, Küche, Bad, 2 WC, Terrasse
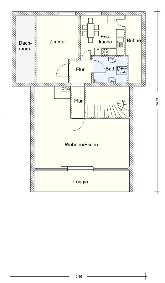
- DG ca. 75 m² Wohnfläche mit 2,5 Zimmer, Küche, Bad, WC, Loggia Garten- u. Gewächshaus, Doppelgarage 2 Kaminöfen, PV-Anlage, Sauna V, 155,51 kWh, Öl/Hz, Kl. E, Baujahr 1978
Lage
Die Immobilie befindet sich im Ortsteil Benzingen der Gemeinde Winterlingen im Zollernalbkreis in Baden-Württemberg. Winterlingen liegt landschaftlich reizvoll auf der Schwäbischen Alb, etwa zehn Kilometer südöstlich von Albstadt, und bietet eine ruhige, naturnahe Umgebung mit hohem Erholungswert. Die Immobilie im Ortsteil Benzingen zeichnet sich durch Ihre sonnige und gepflegte Wohnlage im Ortsrandbereich aus, die einen freien Blick ins Grüne und viel Ruhe bietet. In Winterlingen sind sämtliche Einrichtungen des täglichen Bedarfs vorhanden, darunter Einkaufsmöglichkeiten, Kindergärten, Schulen, Ärzte und Apotheken. Über die gut erreichbare Bundesstraße B463 besteht eine schnelle Verbindung zu den umliegenden Städten wie Albstadt und Sigmaringen. Die Gemeinde verfügt über ein reges Vereins- und Kulturleben, ein Natur- und Hallenbad sowie zahlreiche Freizeitmöglichkeiten inmitten der abwechslungsreichen Landschaft der Schwäbischen Alb. Weitläufige Wander- und Radwege, Wälder und Wiesen prägen die Umgebung und machen Winterlingen zu einem attraktiven Wohnort für Menschen, die Ruhe, Natur und eine intakte Dorfgemeinschaft schätzen.
Grundrisse
Objektanfrage
Nebenkosten : Nachweis-/Erfolgshonorar 3,57 %, Grunderwerbsteuer 5 %, Notarkosten – ca. 1,2–1,5 %, Grundbuchkosten – ca. 1,0–1,5 %
Sämtliche Angebotsangaben sind nach bestem Wissen und Gewissen erstellt, und sollen Ihnen allgemeine Informationen ermöglichen. Da sie jedoch auf Informationen Dritter beruhen, kann von der BIV GmbH keine Gewähr für die Richtigkeit übernommen werden. Unsere Angebote sind freibleibend, der Zwischenverkauf bleibt uns vorbehalten.
