Bungalow in Sonnenbühl-Undingen
Wohlfühlen auf einer Ebene • gemütlicher Bungalow in Sonnenbühl
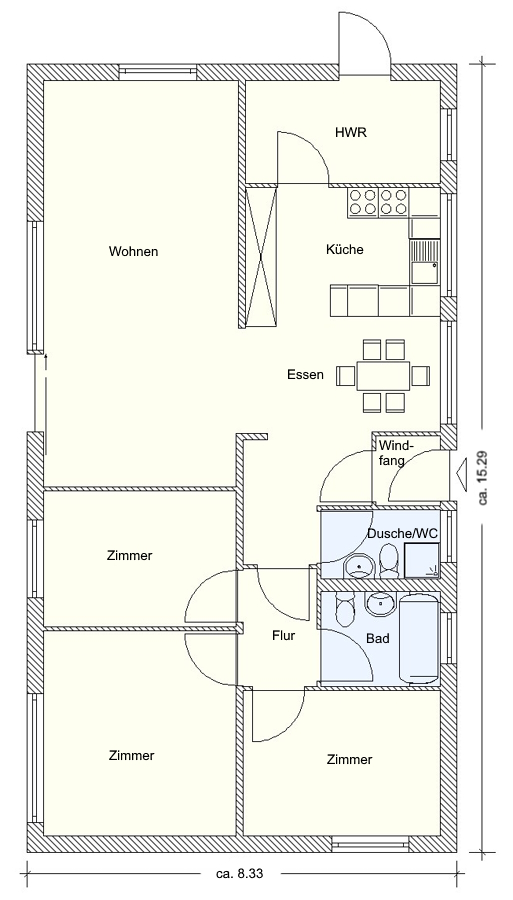
Dieser charmante Bungalow bietet ca. 108 m² Wohnfläche, die sich ganz bequem auf einer Ebene verteilen. Das großzügige Wohnzimmer mit bodentiefen Verglasungen ist das Herzstück des Hauses. Drei Schlaf- bzw. Kinderzimmer bieten Rückzugsmöglichkeiten für Groß und Klein und der offene Küchenbereich mit angrenzender Essecke lädt zum gemeinsamen Kochen, Genießen und Verweilen ein. Abgerundet wird das Raumangebot durch ein Bad, ein sep. WC sowie einen praktischen Hauswirtschaftsraum. Auch an Stauraum wurde gedacht. In der Doppelgarage findet nicht nur Ihre Autos Platz, sondern auch Fahrräder oder Hobbyutensilien. Sonnenbühl, idyllisch auf der Schwäbischen Alb gelegen, trägt den Sonnenschein bereits im Namen. Zahlreiche Freizeitangebote und die gute Anbindung in Richtung Reutlingen machen die Gemeinde zu einem idealen Lebensmittelpunkt für Familien und Naturliebhaber. Nach einer lohnenden Modernisierung gestalten Sie hier Ihr persönliches Wohlfühl-Zuhause und verwirklichen sich den Traum von den eigenen vier Wänden.
- Ruhige Lage in einem Wohngebiet, ca. 641 m² Grundstück, Doppelgarage, Gastank, ZH Baujahr 2004
- 4,5 Zimmer, offener Küchenbereich, Bad, WC
- ca. 108 m² Wohnfläche, geschützte Terrasse - B, 171,84 kWh, Gas, Kl. F, Baujahr 1986
Lage
Aus den Gemeinden Erpfingen, Genkingen, Undingen und Willmandingen zusammengeschlossen präsentiert sich Sonnenbühl auf der schwäbischen Alb, heute als lebendige Gemeinde mit guter Infrastruktur. Nicht nur als beliebtes Ferien- und Ausflugsziel hat sich Sonnenbühl einen Namen gemacht, sondern auch als attraktiver Wirtschaftsstandort. Die Immobilie liegt in ruhiger und sonniger Wohnlage eines Wohngebietes im Ortsrandbereich. Kindergarten und Grundschule ist vor Ort, ebenfalls Einkaufsmöglichkeiten und Postfiliale. Zur Kreisstadt Reutlingen sind es ca. 15-20 Autominuten. Natur- und Freizeiterlebnisse wie Wandern, Radfahren, Skilift und Loipe und zahlreiche Ausflugsmöglichkeiten liegen direkt vor Ihrer Haustüre.
Grundrisse
Objektanfrage
Nebenkosten : Nachweis-/Erfolgshonorar 3,57 %, Grunderwerbsteuer 5 %, Notarkosten – ca. 1,2–1,5 %, Grundbuchkosten – ca. 1,0–1,5 %
Sämtliche Angebotsangaben sind nach bestem Wissen und Gewissen erstellt, und sollen Ihnen allgemeine Informationen ermöglichen. Da sie jedoch auf Informationen Dritter beruhen, kann von der BIV GmbH keine Gewähr für die Richtigkeit übernommen werden. Unsere Angebote sind freibleibend, der Zwischenverkauf bleibt uns vorbehalten.
