Mehrfamilienhaus in Bingen
• Solide Investition mit Rendite • attraktives Mehrfamilienhaus – ein starkes Gesamtpaket
Dieses großzügige Mehrfamilienhaus mit insgesamt vier Wohneinheiten überzeugt durch seine durchdachte Aufteilung und den gepflegten Gesamtzustand. Zwei der Wohnungen bieten mit rund 135 m² und 155 m² besonders viel Platz und Komfort für Familien. Die beiden kleineren Einheiten sind ideal für Singles oder Paare. Das Objekt wurde im Laufe der Jahre kontinuierlich modernisiert. Der Großteil der Fenster wurde erneuert, sämtliche Wasserleitungen getauscht und auch das Dach umfassend saniert. Alle Wohnungen verfügen über moderne Einbauküchen sowie ansprechende Tageslichtbäder. Der weitläufige Garten ist von einer Hecke umgeben und lädt zum Verweilen ein. Ein Highlight ist die Wendeltreppe, die von der OG-Wohnung direkt in den Garten führt. Ob als Zuhause für mehrere Generationen, zur Eigennutzung mit lukrativen Mieteinnahmen oder als wertbeständige Kapitalanlage, diese Immobilie eröffnet vielfältige Möglichkeiten. Die ruhige Lage in einer kleinen Sackgasse und die Nähe zu Sigmaringen, verbindet naturnahes Wohnen mit bester Anbindung.
- Ruhige und sonnige Wohnlage, ca. 668 m² Grundstück
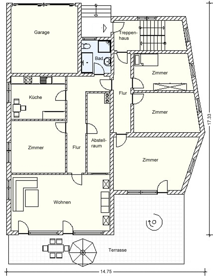
- EG-Wohnung mit ca. 135m² Wohnfläche 5 Zimmer, Küche, Bad, WC, Terrasse
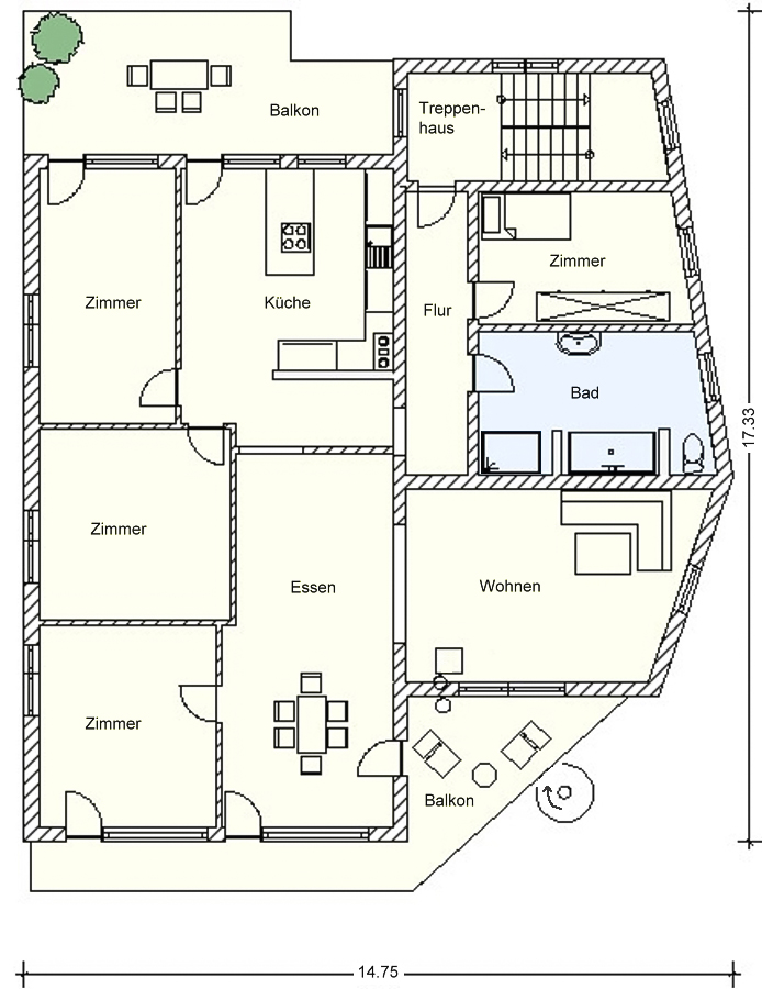
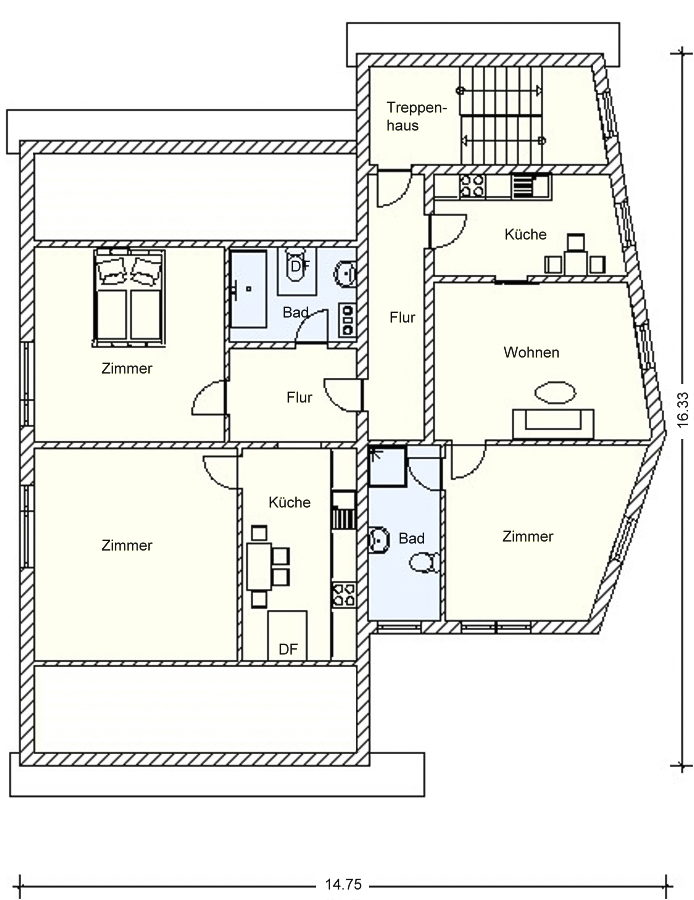
- OG ca. 155m², 5,5 Zi., Küche, Bad, WC DG 1 ca. 65 m², 2 Zimmer, Küche, Bad, WC DG 2 ca. 43 m², 2 Zimmer, Küche, Bad, WC Balkon, Doppelgarage, Kaminofen B, 128,28 kWh, Öl, Klasse E Baujahr 1966/1979/1995
Lage
Bingen im Landkreis Sigmaringen liegt im reizvollen Herzen Oberschwabens, eingebettet in eine idyllische Landschaft aus sanften Hügeln, Wäldern und Wiesen. Die Gemeinde mit ihren rund 2.700 Einwohnern bietet eine harmonische Verbindung von ländlicher Ruhe und zentraler Lage. Nur wenige Kilometer entfernt befindet sich die Kreisstadt Sigmaringen, die mit ihrem historischen Stadtbild und dem imposanten Hohenzollernschloss zahlreiche kulturelle und wirtschaftliche Angebote bereithält. Auch die Städte Mengen, Albstadt und Bad Saulgau sind gut erreichbar, wodurch Bingen optimal in das regionale Zentrum Oberschwabens eingebunden ist. Die Infrastruktur ist hervorragend ausgebaut: In Bingen selbst gibt es Einkaufsmöglichkeiten für den täglichen Bedarf, Kindergarten und Grundschule, ärztliche Versorgung sowie eine lebendige Vereins- und Dorfgemeinschaft. Weiterführende Schulen, größere Einkaufsmöglichkeiten, Ärztezentren und Behörden befinden sich im nahegelegenen Sigmaringen. Die Verkehrsanbindung ist sowohl für Berufspendler als auch für Freizeitaktivitäten ideal. Über die Bundesstraße B32 erreicht man schnell Sigmaringen, Mengen oder Ravensburg; die Anbindung an die B311 und B313 sorgt für eine gute Verbindung Richtung Ulm, Bodensee und Schwarzwald. Auch der öffentliche Nahverkehr ist durch Buslinien und den nahegelegenen Bahnhof Sigmaringen bestens gewährleistet. Für Freizeit und Erholung bietet die Region vielfältige Möglichkeiten: Zahlreiche Rad- und Wanderwege führen durch das romantische Donautal und die oberschwäbische Hügellandschaft. In der Umgebung laden Naturfreibäder, Reit- und Tennisanlagen, Golfplätze sowie Wintersportgebiete auf der Schwäbischen Alb zu abwechslungsreichen Aktivitäten ein. Zudem finden regelmäßig kulturelle Veranstaltungen, Feste und Märkte statt, die das Gemeinschaftsleben prägen und die hohe Lebensqualität unterstreichen.
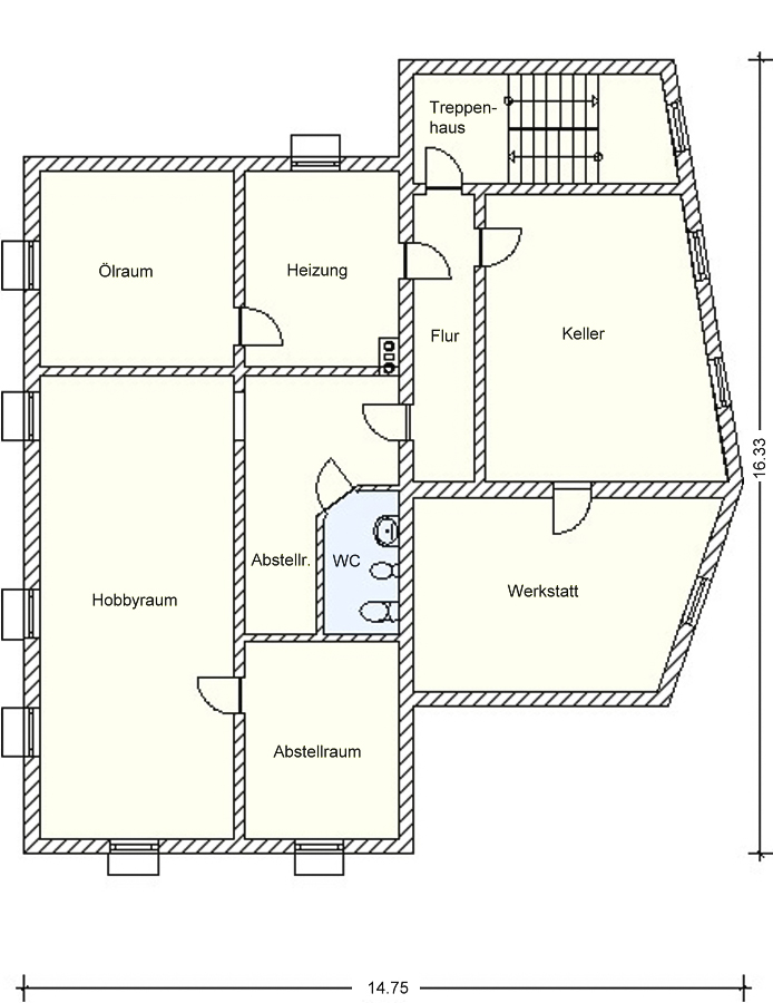
Grundrisse
Objektanfrage
Nebenkosten : Nachweis-/Erfolgshonorar 3,57 %, Grunderwerbsteuer 5 %, Notarkosten – ca. 1,2–1,5 %, Grundbuchkosten – ca. 1,0–1,5 %
Sämtliche Angebotsangaben sind nach bestem Wissen und Gewissen erstellt, und sollen Ihnen allgemeine Informationen ermöglichen. Da sie jedoch auf Informationen Dritter beruhen, kann von der BIV GmbH keine Gewähr für die Richtigkeit übernommen werden. Unsere Angebote sind freibleibend, der Zwischenverkauf bleibt uns vorbehalten.
