Mehrfamilienhaus in Bingen
Kernsaniertes Mehrfamilienhaus, starke Rendite oder Wohnen mit Mieteinnahmen
Dieses ehemalige Bauernhaus wurde in den letzten Jahren aufwendig kernsaniert und zu einem modernen Mehrfamilienhaus mit insgesamt vier Wohneinheiten umgebaut. Die Wohnungen verfügen über Größen zwischen ca. 55 m² und 80 m² und sind jeweils mit einer hochwertigen Einbauküche ausgestattet. Die barrierefreien Bäder überzeugen durch ihr ansprechendes Design und einen praktischen Waschmaschinen-anschluss. Direkt vor dem Haus stehen ausreichend Stellplätze zur Verfügung, während der geschützte Garten hinter dem Haus zum Entspannen einlädt. Energiesparende Kunststofffenster und eine effiziente Pelletheizung sorgen für niedrige Nebenkosten und eine umweltfreundliche Energiebilanz. Die Immobilie bietet somit nicht nur ein attraktives Zuhause für die Familie, sondern auch eine lohnende Kapitalanlage, eine Mietrendite von rund 7 % ist realisierbar. Durch die zentrale Lage und die gute Verkehrsanbindung, bietet das Haus eine attraktive Mischung aus ländlicher Lage und städtischer Nähe und stellt damit eine attraktive Investition in wertbeständiges Wohnen dar.
- Zentrale Lage mit ca. 587 m² Grundstück, Pellet-ZH Baujahr 2020, Garage, 2 Balkone
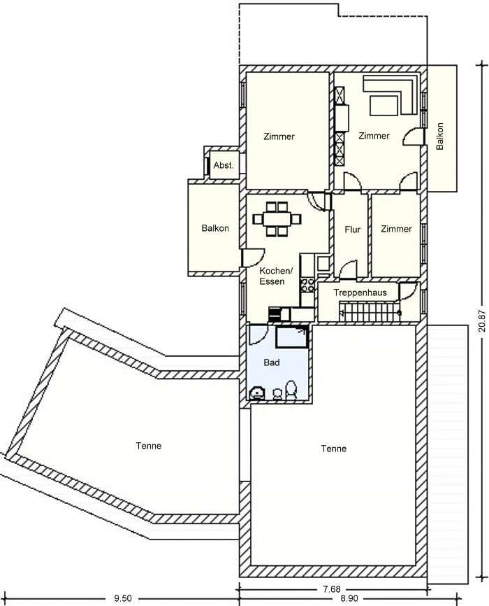
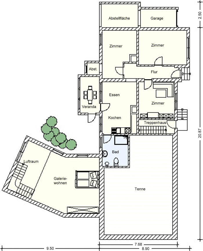
- Whg. 1 EG ca. 79 m², 2 Zi., Kü., Bad, WC Whg. 2 OG ca. 74 m², 3 Zi., Kü., Bad, WC
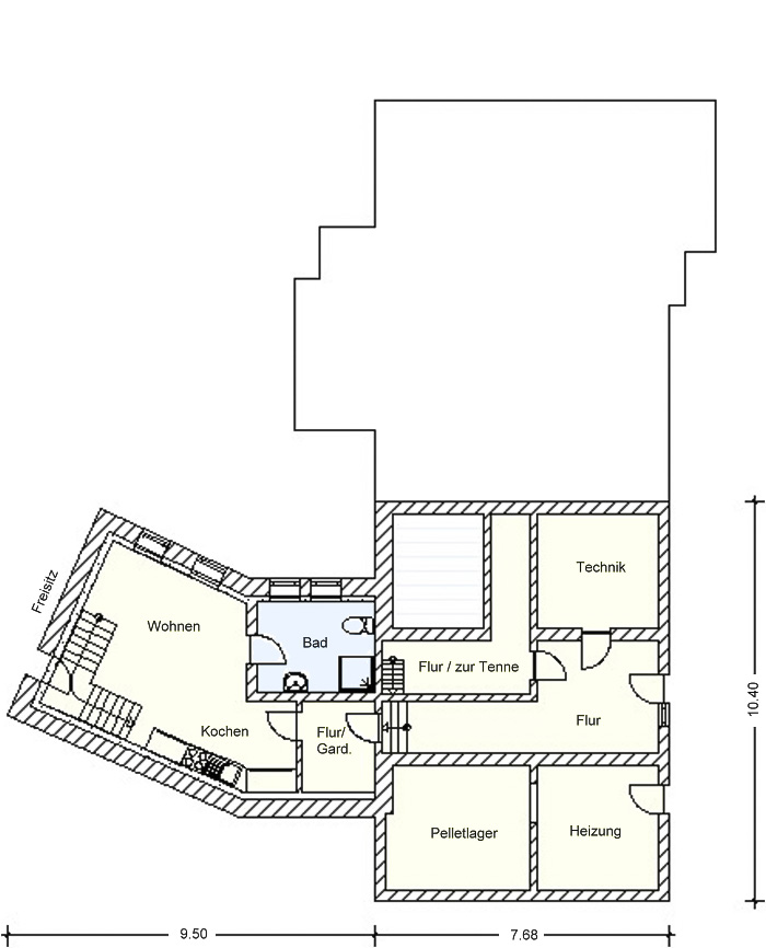
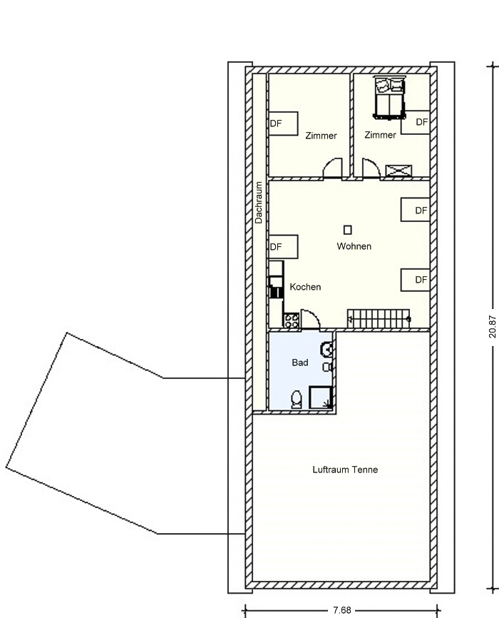
- Whg. 3 DG ca. 55 m², 3 Zi., Kü., Bad, WC Maisonette, ca. 57 m², 2 Zi., Kü., Bad, WC B, 140 kWh, Pellets, Klasse E, Baujahr 1900
Lage
Bingen im Landkreis Sigmaringen liegt im reizvollen Herzen Oberschwabens, eingebettet in eine idyllische Landschaft aus sanften Hügeln, Wäldern und Wiesen. Die Gemeinde mit ihren rund 2.700 Einwohnern bietet eine harmonische Verbindung von ländlicher Ruhe und zentraler Lage. Nur wenige Kilometer entfernt befindet sich die Kreisstadt Sigmaringen, die mit ihrem historischen Stadtbild und dem imposanten Hohenzollernschloss zahlreiche kulturelle und wirtschaftliche Angebote bereithält. Auch die Städte Mengen, Albstadt und Bad Saulgau sind gut erreichbar, wodurch Bingen optimal in das regionale Zentrum Oberschwabens eingebunden ist. Die Infrastruktur ist hervorragend ausgebaut: In Bingen selbst gibt es Einkaufsmöglichkeiten für den täglichen Bedarf, Kindergarten und Grundschule, ärztliche Versorgung sowie eine lebendige Vereins- und Dorfgemeinschaft. Weiterführende Schulen, größere Einkaufsmöglichkeiten, Ärztezentren und Behörden befinden sich im nahegelegenen Sigmaringen. Die Verkehrsanbindung ist sowohl für Berufspendler als auch für Freizeitaktivitäten ideal. Über die Bundesstraße B32 erreicht man schnell Sigmaringen, Mengen oder Ravensburg; die Anbindung an die B311 und B313 sorgt für eine gute Verbindung Richtung Ulm, Bodensee und Schwarzwald. Auch der öffentliche Nahverkehr ist durch Buslinien und den nahegelegenen Bahnhof Sigmaringen bestens gewährleistet. Für Freizeit und Erholung bietet die Region vielfältige Möglichkeiten: Zahlreiche Rad- und Wanderwege führen durch das romantische Donautal und die oberschwäbische Hügellandschaft. In der Umgebung laden Naturfreibäder, Reit- und Tennisanlagen, Golfplätze sowie Wintersportgebiete auf der Schwäbischen Alb zu abwechslungsreichen Aktivitäten ein. Zudem finden regelmäßig kulturelle Veranstaltungen, Feste und Märkte statt, die das Gemeinschaftsleben prägen und die hohe Lebensqualität unterstreichen.
Grundrisse
Objektanfrage
Nebenkosten : Nachweis-/Erfolgshonorar 3,57 %, Grunderwerbsteuer 5 %, Notarkosten – ca. 1,2–1,5 %, Grundbuchkosten – ca. 1,0–1,5 %
Sämtliche Angebotsangaben sind nach bestem Wissen und Gewissen erstellt, und sollen Ihnen allgemeine Informationen ermöglichen. Da sie jedoch auf Informationen Dritter beruhen, kann von der BIV GmbH keine Gewähr für die Richtigkeit übernommen werden. Unsere Angebote sind freibleibend, der Zwischenverkauf bleibt uns vorbehalten.
