Wohnhaus in Gammertingen
Großes Wohnhaus zum Wohlfühlen mit Garagen und kleinem Gewerbebereich
Dieses großzügige Wohnhaus überzeugt auf Anhieb mit seinen vielseitigen Nutzungsmöglichkeiten. Auf rund 200 m² im EG und DG bietet die Immobilie ein beeindruckendes Raumangebot mit zahlreichen Gestaltungsmöglichkeiten. Ob großzügiges Familienleben, Wohnen mit mehreren Generationen oder kreative Wohnkonzepte, hier ist alles möglich. Im UG wurde ein Teil zu einem Gewerbebereich umgebaut, ideal geeignet für ein Nagelstudio, einen Friseursalon oder ein Büro, und eröffnet damit beste Chancen für Selbstständige oder Freiberufler. Für Fahrzeuge und Hobbys steht reichlich Platz zur Verfügung. Zwei geräumige Garagen, eine davon mit praktischer Montagegrube, sowie ein Carport sorgen für komfortables Parken und Arbeiten. Über der Garage befindet sich eine große, überdachte Dachterrasse, der perfekte Ort für entspannte Stunden im Freien. Das Grundstück ist an drei Seiten durch Zaun und Hecke eingefriedet, bietet Platz zum Spielen, Entspannen und Gärtnern, und sämtliche Einrichtungen des täglichen Bedarfs sind bequem zu Fuß erreichbar.
- Zentrale Lage, ca. 828 m² Grundstück, Carport, 2 Garagen, eine mit Grube
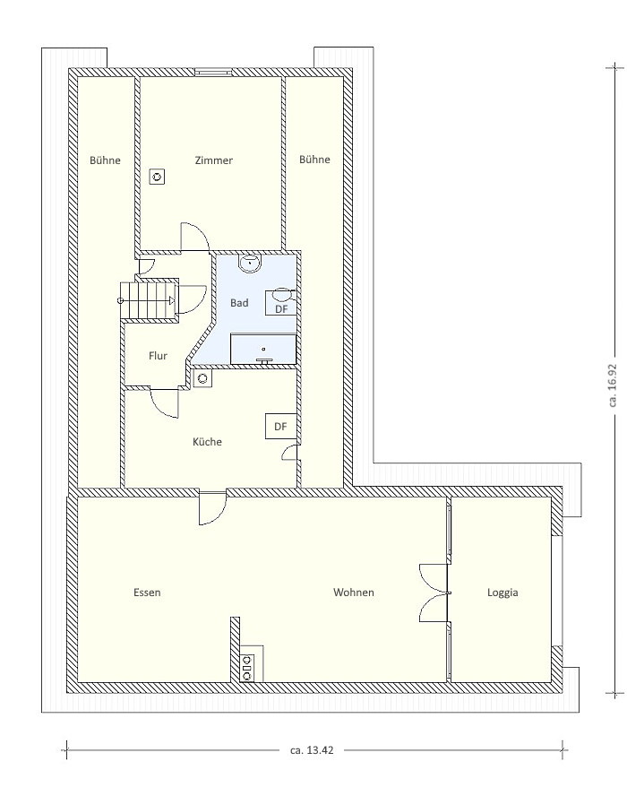
- Ca. 200 m² Wohnfläche, 8 Zimmer, 2 Küchen, 2 Bäder, 3 WC, große Dach- terrasse, Loggia Gewerbe mit ca. 40 m² Nutzfläche, 3 Räume und WC
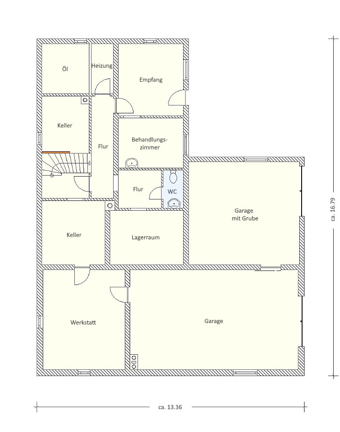
- Werkstatt im UG, Baujahr 1959/Anbau 1979 B, 301,98 kWh, Öl, Klasse H
Lage
Gammertingen, eingebettet im malerischen Laucherttal der Schwäbischen Alb, bietet eine hervorragende Wohnlage mit beeindruckenden Aussichten und hoher Lebensqualität. Die Stadt, bestehend aus sechs Ortsteilen, darunter Mariaberg und Bronnen, zählt etwa 5.000 Einwohner und fungiert als Unterzentrum im ländlichen Raum. Die Immobilie befindet sich in zentraler Wohnlage. Verkehrstechnisch ist Gammertingen hervorragend angebunden: Die Bundesstraßen B313 und B32 verbinden die Stadt mit den Oberzentren Reutlingen und Tübingen sowie den Mittelzentren Hechingen und Albstadt. Zusätzlich profitiert Gammertingen von seiner Rolle als technischer Betriebsmittelpunkt des Eisenbahnnetzes der Hohenzollerischen Landesbahn. Die Infrastruktur vor Ort lässt keine Wünsche offen. Einkaufsmöglichkeiten, Ärzte, Schulen und Kindergärten sind in der Stadt vorhanden. Für Freizeitgestaltung sorgen die Alb-Lauchert-Schwimmhalle, die Freizeitanlage an der Lauchert mit Kneippanlage und Barfußlehrpfad sowie der Themenspielplatz „Mensch und Wasser“. Die Region zeichnet sich durch eine hohe Lebensqualität aus, unterstützt durch ein aktives Vereinsleben und zahlreiche Freizeitmöglichkeiten. Die Kombination aus ruhiger Wohnlage in einer Sackgasse in einem Wohngebiet, guter Anbindung und vielfältigen Freizeitangeboten macht Gammertingen zu einem attraktiven Wohnort.
Grundrisse
Objektanfrage
Nebenkosten : Nachweis-/Erfolgshonorar 3,57 %, Grunderwerbsteuer 5 %, Notarkosten – ca. 1,2–1,5 %, Grundbuchkosten – ca. 1,0–1,5 %
Sämtliche Angebotsangaben sind nach bestem Wissen und Gewissen erstellt, und sollen Ihnen allgemeine Informationen ermöglichen. Da sie jedoch auf Informationen Dritter beruhen, kann von der BIV GmbH keine Gewähr für die Richtigkeit übernommen werden. Unsere Angebote sind freibleibend, der Zwischenverkauf bleibt uns vorbehalten.
