Einfamilienhaus in Langenenslingen
Familienglück mit schönem Grundstück und reichlich Platz für Ihre persönlichen Wünsche
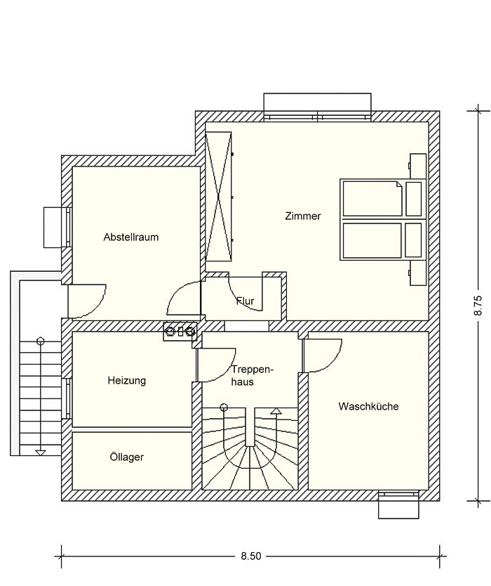
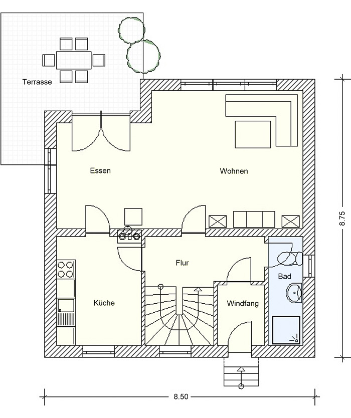
Dieses attraktive Eigenheim überzeugt mit einer gelungenen Kombination aus Komfort, Funktionalität und Wohlfühlatmosphäre. Der großzügige Wohn- und Essbereich im EG ist das Herzstück des Hauses, lichtdurchflutet, einladend und mit einem stilvollen Kaminofen ausgestattet, der an kühlen Tagen für behagliche Wärme sorgt. Die geräumige Küche bietet viel Platz für gemeinsames Kochen und gesellige Stunden. Im UG befindet sich ein vielseitig nutzbares Zimmer mit ca. 20 m², das bisher als Schlafzimmer genutzt wurde, ideal auch als Gästezimmer, Büro oder Hobbyraum. Im DG stehen weitere ca. 45 m² zur Verfügung, die bereits vorhandenen Leitungen ermöglichen einen unkomplizierten Ausbau nach Ihren individuellen Vorstellungen. Das großzügige Grundstück bietet reichlich Platz zum Spielen, Gärtnern und für entspannte Stunden im Freien und für zusätzlichen Komfort sorgt ein Carport mit Holzlagerfläche sowie eine Garage. Die Lage ist ideal für Familien. Schule, Kindergarten, Ärzte und Einkaufsmöglichkeiten sind bequem zu Fuß erreichbar.
- Sonnige Wohnlage, ca. 660 m² Grundstück
- 2,5 Zimmer, Küche, Dusche, WC, Terrasse, Kaminofen, Garage, Carport, Holzlager
- ca. 76 m² Wohnfläche DG ca. 45 m² zum Ausbau vorbereitet V, 164,36 kWh, Öl/Hz, Kl. F, Baujahr 1999
Lage
Langenenslingen liegt idyllisch im Landkreis Biberach in Baden-Württemberg am Fuße der Schwäbischen Alb direkt an der L 277 zwischen Riedlingen und Sigmaringen. Die Gemeinde verbindet ländliche Idylle mit einer guten Anbindung an die umliegenden Städte und Regionen. In der Umgebung finden sich zahlreiche Naherholungsgebiete, Wander- und Radwege, die zu Freizeitaktivitäten in der Natur einladen. Die Immobilie liegt in sonniger Wohnlage in einem Wohngebiet. Die Infrastruktur in Langenenslingen ist hervorragend: Einkaufsmöglichkeiten, Grundschule und Kindergärten sind gut erreichbar, ebenso wie Ärzte und weitere wichtige Dienstleistungen. Dank der Nähe zur Bundesstraße B32 sind Ulm, Biberach und Sigmaringen schnell erreichbar, was den Standort besonders für Pendler attraktiv macht. Der Ort bietet eine familienfreundliche Atmosphäre mit einer lebendigen Gemeinschaft und vielfältigen Freizeitangeboten. Langenenslingen überzeugt durch seine ausgewogene Mischung aus ruhigem Wohnen und gleichzeitig guter Erreichbarkeit von Wirtschaftszentren.
Ihre unverbindliche Immobilien-Suche
Nebenkosten : Nachweis-/Erfolgshonorar 3,57 %, Grunderwerbsteuer 5 %, Notarkosten – ca. 1,2–1,5 %, Grundbuchkosten – ca. 1,0–1,5 %
Sämtliche Angebotsangaben sind nach bestem Wissen und Gewissen erstellt, und sollen Ihnen allgemeine Informationen ermöglichen. Da sie jedoch auf Informationen Dritter beruhen, kann von der BIV GmbH keine Gewähr für die Richtigkeit übernommen werden. Unsere Angebote sind freibleibend, der Zwischenverkauf bleibt uns vorbehalten.
