Einfamilienhaus in Scheer
Ideal für Handwerker • ein Zuhause, das sich nach Ihren Wünschen zum Leben erwecken lässt
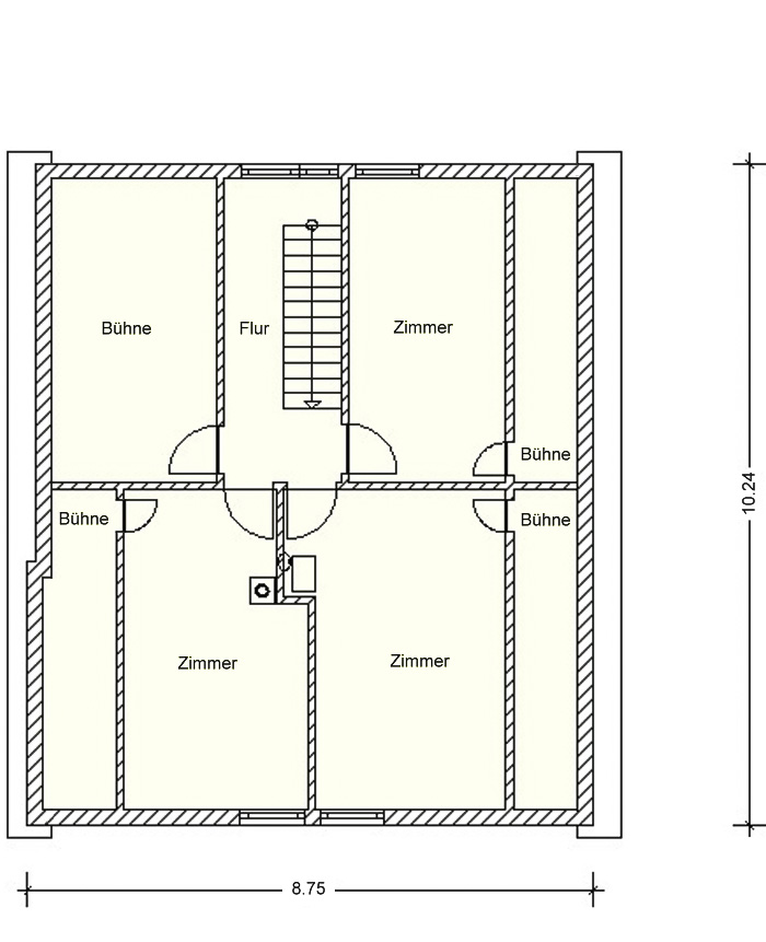
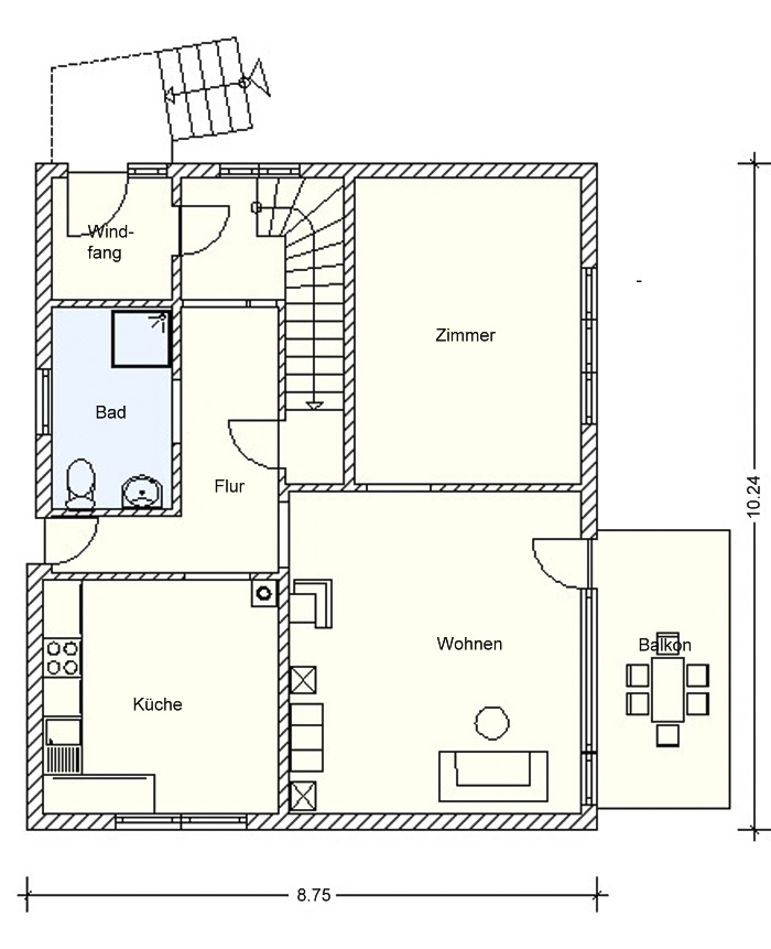
Dieses Einfamilienhaus bietet eine hervorragende Gelegenheit für Handwerker, Investoren oder Familien mit Sinn für Gestaltung, die ihren individuellen Wohntraum verwirklichen möchten. Das gesamte Gebäude bedarf einer umfassenden Kernsanierung, aber auch ein Abriss und Neubau ist angesichts des attraktiven Preises, Grundstücks und der begehrten Lage lohnend. Das Haus befindet sich direkt am grünen Ortsrand, umgeben von weiten Wiesen und Feldern, und verbindet damit naturnahes Wohnen mit einer guten Anbindung Richtung Mengen und Sigmaringen. Auf einer Wohnfläche von rund 110 m², verteilt auf Erdgeschoss und Dachgeschoss, stehen ausreichend Räume mit einer guten Größe zur Verfügung, die sich flexibel gestalten lassen. Das Haus ist voll unterkellert, besonders praktisch ist die geräumige Garage, die einen direkten, wettergeschützten Zugang ins Haus bietet. Alles in allem eine Investition mit großem Gestaltungsspielraum und hoher Wertsteigerungschance.
- Sonnige Lage direkt am Ortsrand, ca. 609 m² Grundstück
- 5 Zimmer, Küche, Bad WC, Balkon
- ca. 110 m² Wohnfläche, Garage im Haus B, 730,32 kWh, Holz, Kl. H, Baujahr 1959
Lage
Die Lage überzeugt durch Ruhe, Naturverbundenheit und eine hervorragende Lebensqualität – ideal für Familien, Paare oder alle, die Erholung im Grünen suchen. Scheer liegt malerisch an der Donau und bietet eine charmante Mischung aus ländlichem Flair und guter Anbindung: In wenigen Minuten erreicht man die Städte Sigmaringen und Riedlingen, die vielfältige Einkaufs-, Schul- und Freizeitmöglichkeiten bieten. Im Ort selbst finden sich Kindergarten, Grundschule, Ärzte, Bäcker und Nahversorger, sodass der tägliche Bedarf bequem gedeckt ist. Die Umgebung lädt zu Spaziergängen, Rad- und Wandertouren inmitten der Natur ein, während die verkehrsgünstige Lage über die B32 und öffentliche Verkehrsmittel eine gute Verbindung in die Region und darüber hinaus gewährleistet. Das Haus liegt in einem ruhigen Wohngebiet am Ortsrand, mit viel Sonne und einem schönen Blick ins Grüne – ideal für alle, die Wohnen, Arbeiten und Erholen harmonisch verbinden möchten.
Ihre unverbindliche Immobilien-Suche
Nebenkosten : Nachweis-/Erfolgshonorar 3,57 %, Grunderwerbsteuer 5 %, Notarkosten – ca. 1,2–1,5 %, Grundbuchkosten – ca. 1,0–1,5 %
Sämtliche Angebotsangaben sind nach bestem Wissen und Gewissen erstellt, und sollen Ihnen allgemeine Informationen ermöglichen. Da sie jedoch auf Informationen Dritter beruhen, kann von der BIV GmbH keine Gewähr für die Richtigkeit übernommen werden. Unsere Angebote sind freibleibend, der Zwischenverkauf bleibt uns vorbehalten.
