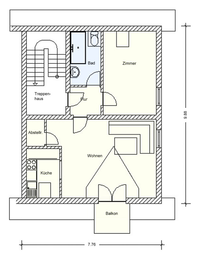
2 Zimmer-Eigentumswohnung in Sigmaringendorf
Charmante DG-Wohnung mit Balkon - Lebensqualität pur • idyllische Lage an der Lauchert
Diese charmante und gut geschnittene Eigentumswohnung im DG eines gepflegten 5 Familienhauses, überzeugt auf Anhieb durch ihre gelungene Kombination aus Komfort, Stil und Wohlfühlatmosphäre. Der hochwertige Parkettboden im Wohnbereich sowie helle Fliesenböden unterstreichen den gepflegten Gesamteindruck und sorgen für ein behagliches Ambiente. Die moderne, voll ausgestattete Einbauküche lässt keine Wünsche offen. Praktische Details wie ein sep. Abstellraum, der Waschmaschinenanschluss im Bad sowie ein Autoabstellplatz direkt am Haus sorgen für zusätzlichen Komfort im Alltag. Vom sonnigen Balkon aus eröffnet sich ein wunderschöner Blick ins Grüne und lädt zum Entspannen und Genießen ein. Die ruhige Lage, direkt an einem idyllischen Spazierweg entlang der Lauchert, bietet Erholung pur und gleichzeitig kurze Wege zu allen wichtigen Einrichtungen des täglichen Bedarfs. Ob als attraktive Kapitalanlage oder zum Selbstbezug, diese Wohnung vereint Lebensqualität, Wertbeständigkeit und eine hervorragende Lage in perfekter Harmonie.
- Ruhige Wohnlage, Stellplatz vor dem Haus
- 2 Zimmer, Küche mit Einbauküche, Bad, WC
- ca. 48 m² Wohnfläche, Kellerabteil, Balkon V, 112 kWh, Gas, Klasse D, Baujahr 1993
Lage
Sigmaringendorf ist eine charmante Gemeinde im Landkreis Sigmaringen und liegt nur wenige Kilometer östlich der Kreisstadt. Eingebettet in die reizvolle Landschaft des Naturparks Obere Donau, am Zusammenfluss von Lauchert und Donau, verbindet der Ort naturnahes Wohnen mit guter Erreichbarkeit. Die Umgebung ist geprägt von weiten Grünflächen, ausgedehnten Wäldern und einem hohen Freizeitwert – ideal für Menschen, die Ruhe und Natur schätzen. Trotz seiner beschaulichen Größe verfügt Sigmaringendorf über eine solide Infrastruktur. Einkaufsmöglichkeiten des täglichen Bedarfs, Kindergarten und Schule, ein aktives Vereinsleben sowie kulturelle Angebote wie die bekannte Waldbühne sorgen für eine lebendige Gemeinschaft. Die nahe Kreisstadt Sigmaringen erweitert das Angebot durch weitere Geschäfte, Gastronomie, Gesundheitsdienste und Behörden. Verkehrstechnisch ist Sigmaringendorf gut angebunden: Der örtliche Bahnanschluss ermöglicht schnelle Verbindungen Richtung Sigmaringen, Ulm und Mengen. Über die Bundesstraße 32 und die Landesstraße 455 ist der Ort hervorragend an das regionale Straßennetz angeschlossen. Für Radfahrer und Naturliebhaber bieten der Donauradweg und weitere Routen abwechslungsreiche Möglichkeiten, die Umgebung aktiv zu erkunden. Diese Kombination aus naturnaher Lage, guter Infrastruktur und verlässlicher Verkehrsanbindung macht Sigmaringendorf zu einem attraktiven Wohnstandort – ruhig, grün und dennoch bestens angebunden.
Ihre unverbindliche Immobilien-Suche
Nebenkosten : Nachweis-/Erfolgshonorar 4,76 %, Grunderwerbsteuer 5 %, Notarkosten – ca. 1,2–1,5 %, Grundbuchkosten – ca. 1,0–1,5 %
Sämtliche Angebotsangaben sind nach bestem Wissen und Gewissen erstellt, und sollen Ihnen allgemeine Informationen ermöglichen. Da sie jedoch auf Informationen Dritter beruhen, kann von der BIV GmbH keine Gewähr für die Richtigkeit übernommen werden. Unsere Angebote sind freibleibend, der Zwischenverkauf bleibt uns vorbehalten.
