Mehrfamilienhaus in Altheim
Attraktives Mehrfamilienhaus als sichere Kapitalanlage oder Eigenbezug mit Mieteinnahmen
Dieses attraktive Mehrfamilienhaus verbindet zeitgemäßen Wohnkomfort, Flexibilität und eine attraktive Lage, ideal für Kapitalanleger und Eigennutzer, die eine Immobilie mit hohem Zukunftspotenzial suchen. Insgesamt stehen vier Wohneinheiten zur Verfügung. Drei davon sind vermietet. Die großzügige Hauptwohnung im EG bildet das Herzstück des Hauses. Werthaltige Parkett- und Laminatböden, das bereits modernisierte Bad und die moderne Küche unterstreichen den hervorragenden Zustand. Direkt daneben befindet sich eine weitere Wohnung. Sie kann bei Bedarf mühelos zu einer großen Einheit verbunden werden. Im DG gibt es zwei Appartements. Beide sind mit einer Einbauküche, Bad und WC ausgestattet und eignen sich hervorragend zur Vermietung oder als Wohnraum für Familienangehörige. Abgerundet wird das Angebot durch die große Terrasse und eine geräumige Doppelgarage. Einkaufsmöglichkeiten für den täglichen Bedarf sind bequem zu Fuß erreichbar und die naturnahe Umgebung lädt zu jeder Jahreszeit zu erholsamen Spaziergängen ein.
- Zentrale Lage, ca. 851 m² Grundstück, geräumige Doppelgarage, 2 Terrassen
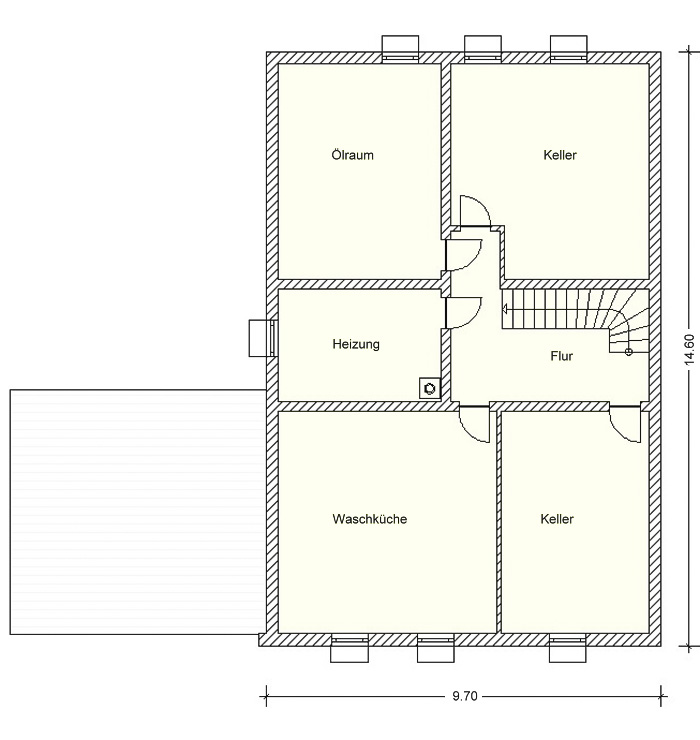
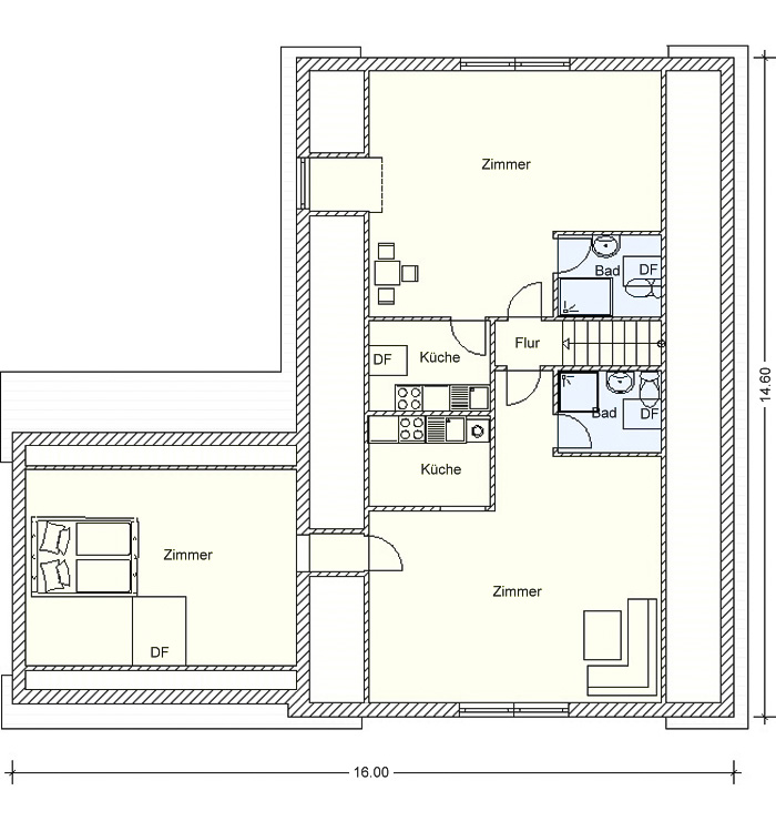
- EG ca. 92 m², 3 Zimmer, Küche, Bad, WC EG ca. 46 m², 1 Zimmer, Wohnkü., Bad, WC
- DG ca. 39 m², 1 Zimmer, Küche, Bad, WC DG ca. 63 m², 2 Zimmer, Küche, Bad, WC insgesamt ca. 240 m² Wohnfläche Öl-Zentralheizung Baujahr 1997 Nahwärme liegt in der Seitenstraße V, 295,72 kWh, Öl, Klasse H , Baujahr 1975
Lage
Die Immobilie liegt in Altheim im Landkreis Biberach, einer ruhigen oberschwäbischen Gemeinde nahe Riedlingen. Die zentrale Ortslage bietet kurze Wege zu Kindergarten, Grundschule, Einkaufsmöglichkeiten und Einrichtungen des täglichen Bedarfs, während größere Versorgung, Ärzte und weiterführende Schulen im nahen Riedlingen erreichbar sind. Die Umgebung ist geprägt von viel Grün, der Nähe zur Donau sowie zahlreichen Rad- und Wanderwegen und ermöglicht eine hohe Wohn- und Lebensqualität. Altheim verbindet ländliche Ruhe mit guter Erreichbarkeit und ist dadurch sowohl für Familien als auch für Berufspendler und Ruhesuchende ein attraktiver Wohnstandort.
Grundrisse
Objektanfrage
Nebenkosten : Nachweis-/Erfolgshonorar 3,57 %, Grunderwerbsteuer 5 %, Notarkosten – ca. 1,2–1,5 %, Grundbuchkosten – ca. 1,0–1,5 %
Sämtliche Angebotsangaben sind nach bestem Wissen und Gewissen erstellt, und sollen Ihnen allgemeine Informationen ermöglichen. Da sie jedoch auf Informationen Dritter beruhen, kann von der BIV GmbH keine Gewähr für die Richtigkeit übernommen werden. Unsere Angebote sind freibleibend, der Zwischenverkauf bleibt uns vorbehalten.
