Einfamilienhaus mit ELW in Gammertingen
Platz, Komfort und viele Möglichkeiten, Familien(t)raum mit Einliegerwohnung
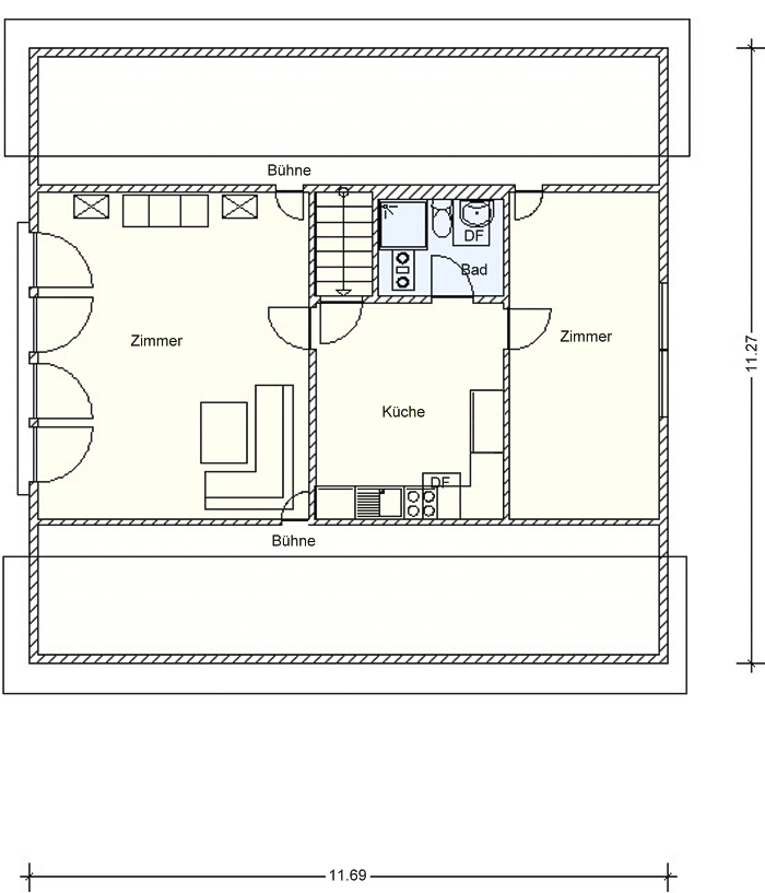
Dieses großzügige Domizil überzeugt bereits im EG mit viel Platz und einem einladenden Ambiente. Der weitläufige Wohnbereich mit edlem Parkett schafft eine behagliche Atmosphäre und bietet reichlich Raum für gemütliche Stunden mit Familie und Freunden. Die voll ausgestattete Küche erfüllt alle Ansprüche von Hobbyköchen und das bereits modernisierte Bad überzeugt mit Design und Komfort. Drei großzügige Schlaf- bzw. Kinderzimmer sowie ein sep. Gäste-WC runden das Raumangebot dieser Ebene perfekt ab. Die Einliegerwohnung im DG ist mit einer eigenen Einbauküche, einem Bad sowie zwei großzügigen Zimmern ausgestattet. Sie eignet sich ideal für das Wohnen mit mehreren Generationen oder zur Vermietung. Im UG steht Ihnen ein weiterer voll ausgebauter Raum zur Verfügung, der sich hervorragend als Gästezimmer, Büro oder Hobbyraum nutzen lässt und somit weitere Flexibilität bietet. Bei der finanziellen Planung sollten Maler- und Tapezierarbeiten berücksichtigt werden, die Ihnen gleichzeitig die Gelegenheit bieten, dem Haus Ihre persönliche Note zu verleihen.
- Ruhige und sonnige Wohnlage, ca. 635 m² Grundstück, Stellplatz, Garage, Terrasse
- EG: 4,5 Zimmer, Küche, Bad, WC DG: 2 Zimmer, Küche, Bad, WC UG: 1 Zimmer
- ca. 190 m² Wohnfläche, Baujahr 1980 V, 149,92 kWh, Pellets, Klasse E
Lage
Gammertingen, eingebettet im malerischen Laucherttal der Schwäbischen Alb, bietet eine hervorragende Wohnlage mit beeindruckenden Aussichten und hoher Lebensqualität. Die Stadt, bestehend aus sechs Ortsteilen, darunter Mariaberg und Bronnen, zählt etwa 5.000 Einwohner und fungiert als Unterzentrum im ländlichen Raum. Verkehrstechnisch ist Gammertingen hervorragend angebunden: Die Bundesstraßen B313 und B32 verbinden die Stadt mit den Oberzentren Reutlingen und Tübingen sowie den Mittelzentren Hechingen und Albstadt. Zusätzlich profitiert Gammertingen von seiner Rolle als technischer Betriebsmittelpunkt des Eisenbahnnetzes der Hohenzollerischen Landesbahn. Die Infrastruktur vor Ort lässt keine Wünsche offen. Einkaufsmöglichkeiten, Ärzte, Schulen und Kindergärten sind in der Stadt vorhanden. Für Freizeitgestaltung sorgen die Alb-Lauchert-Schwimmhalle, die Freizeitanlage an der Lauchert mit Kneippanlage und Barfußlehrpfad sowie der Themenspielplatz „Mensch und Wasser“. Die Region zeichnet sich durch eine hohe Lebensqualität aus, unterstützt durch ein aktives Vereinsleben und zahlreiche Freizeitmöglichkeiten. Die Kombination aus ruhiger Wohnlage der Immobilie in einem Wohngebiet, guter Anbindung und vielfältigen Freizeitangeboten macht Gammertingen zu einem attraktiven Wohnort.
Grundrisse
Objektanfrage
Nebenkosten : Nachweis-/Erfolgshonorar 3,57 %, Grunderwerbsteuer 5 %, Notarkosten – ca. 1,2–1,5 %, Grundbuchkosten – ca. 1,0–1,5 %
Sämtliche Angebotsangaben sind nach bestem Wissen und Gewissen erstellt, und sollen Ihnen allgemeine Informationen ermöglichen. Da sie jedoch auf Informationen Dritter beruhen, kann von der BIV GmbH keine Gewähr für die Richtigkeit übernommen werden. Unsere Angebote sind freibleibend, der Zwischenverkauf bleibt uns vorbehalten.
