Einfamilienhaus in Sigmaringendorf
Charmantes Familiendomizil sonnige Wohnlage und Platz für`s Hobby
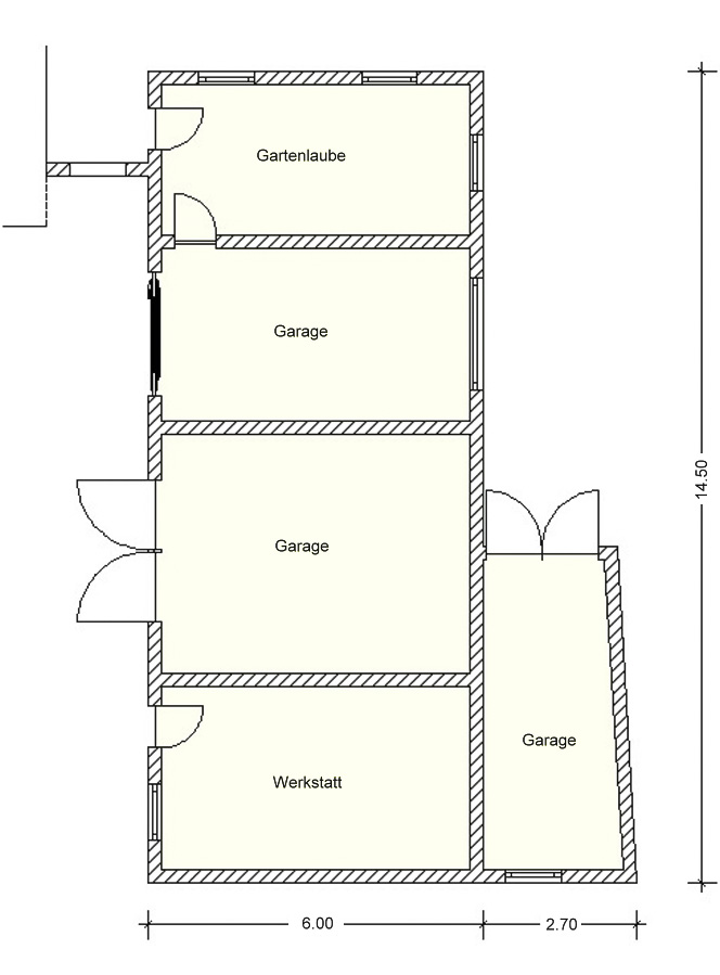
Dieses gepflegte Zuhause überzeugt mit Qualität, Komfort und einem großzügigen Raumangebot. In den vergangenen Jahren wurden zahlreiche Modernisierungen vorgenommen, darunter die Erneuerung des Dachs und ein frischer Fassadenanstrich. Pflegeleichte Kunststofffenster sowie die moderne Zentralheizung sorgen für energieeffizientes Wohnen und niedrige Betriebskosten, während edle Parkettböden und massive Holzdecken ein einladendes Wohnambiente schaffen. Mit rund 125 m² verteilt auf zwei Vollgeschosse bietet das Haus reichlich Platz, um individuelle Wohnträume zu verwirklichen. Ein großzügiger Garagenkomplex mit zwei Garagen, einer kleinen Werkstatt und einem beheizbaren Partyraum eröffnet vielfältige Nutzungsmöglichkeiten. Die Gemeinde Sigmaringendorf überzeugt mit einer guten Infrastruktur. Ärzte, Apotheke, Kindergarten, Grundschule sowie sämtliche Einkaufsmöglichkeiten des täglichen Bedarfs sind bequem zu Fuß erreichbar und Dank der verkehrsgünstigen Lage in Richtung Mengen und Sigmaringen profitieren auch Pendler von kurzen Wegen.
- Sonnige Lage in einem Wohngebiet, ca. 700 m² Grundstück,
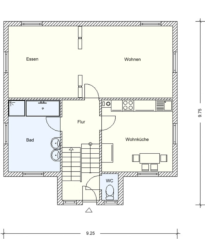
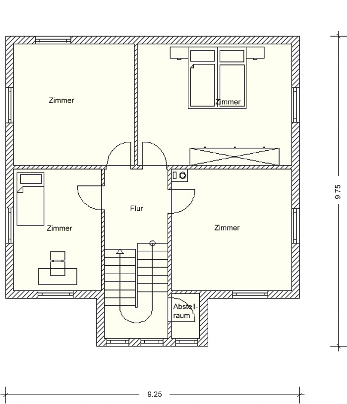
- Ca. 125 m² Wohnfläche, 5,5 Zimmer, große Wohnküche, Bad, 2 WC
- 2 Garagen, kleine Werkstatt, Hobbyraum Heizung Baujahr 2004 B, 185,63 kWh, Öl, Kl. F, Baujahr 1935/1958
Lage
Sigmaringendorf ist eine charmante Gemeinde im Landkreis Sigmaringen und liegt nur wenige Kilometer östlich der Kreisstadt. Eingebettet in die reizvolle Landschaft des Naturparks Obere Donau, am Zusammenfluss von Lauchert und Donau, verbindet der Ort naturnahes Wohnen mit guter Erreichbarkeit. Die Umgebung ist geprägt von weiten Grünflächen, ausgedehnten Wäldern und einem hohen Freizeitwert – ideal für Menschen, die Ruhe und Natur schätzen. Die Immobilie befindet sich in sonniger Lage in einem Wohngebiet. Trotz seiner beschaulichen Größe verfügt Sigmaringendorf über eine solide Infrastruktur. Einkaufsmöglichkeiten des täglichen Bedarfs, Kindergarten und Schule, ein aktives Vereinsleben sowie kulturelle Angebote wie die bekannte Waldbühne sorgen für eine lebendige Gemeinschaft. Die nahe Kreisstadt Sigmaringen erweitert das Angebot durch weitere Geschäfte, Gastronomie, Gesundheitsdienste und Behörden. Verkehrstechnisch ist Sigmaringendorf gut angebunden: Der örtliche Bahnanschluss ermöglicht schnelle Verbindungen Richtung Sigmaringen, Ulm und Mengen. Über die Bundesstraße 32 und die Landesstraße 455 ist der Ort hervorragend an das regionale Straßennetz angeschlossen. Für Radfahrer und Naturliebhaber bieten der Donauradweg und weitere Routen abwechslungsreiche Möglichkeiten, die Umgebung aktiv zu erkunden. Diese Kombination aus naturnaher Lage, guter Infrastruktur und verlässlicher Verkehrsanbindung macht Sigmaringendorf zu einem attraktiven Wohnstandort – ruhig, grün und dennoch bestens angebunden.
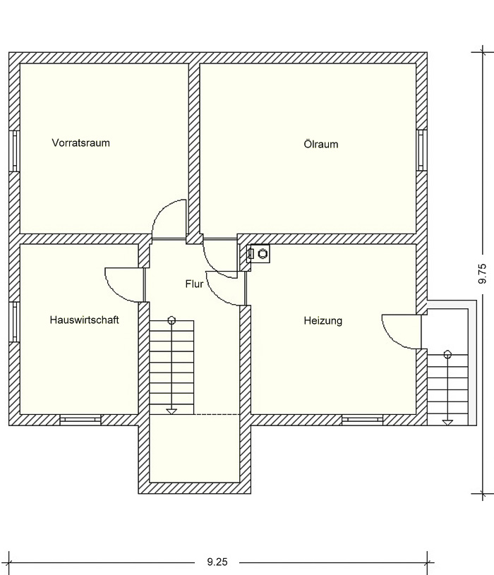
Grundrisse
Objektanfrage
Nebenkosten : Nachweis-/Erfolgshonorar 3,57 %, Grunderwerbsteuer 5 %, Notarkosten – ca. 1,2–1,5 %, Grundbuchkosten – ca. 1,0–1,5 %
Sämtliche Angebotsangaben sind nach bestem Wissen und Gewissen erstellt, und sollen Ihnen allgemeine Informationen ermöglichen. Da sie jedoch auf Informationen Dritter beruhen, kann von der BIV GmbH keine Gewähr für die Richtigkeit übernommen werden. Unsere Angebote sind freibleibend, der Zwischenverkauf bleibt uns vorbehalten.
