Bauernhaus in Mengen-Blochingen
Bauernhaus mit Charakter und Potenzial - ideal für Hobbygärtner, Tierfreunde und Handwerker
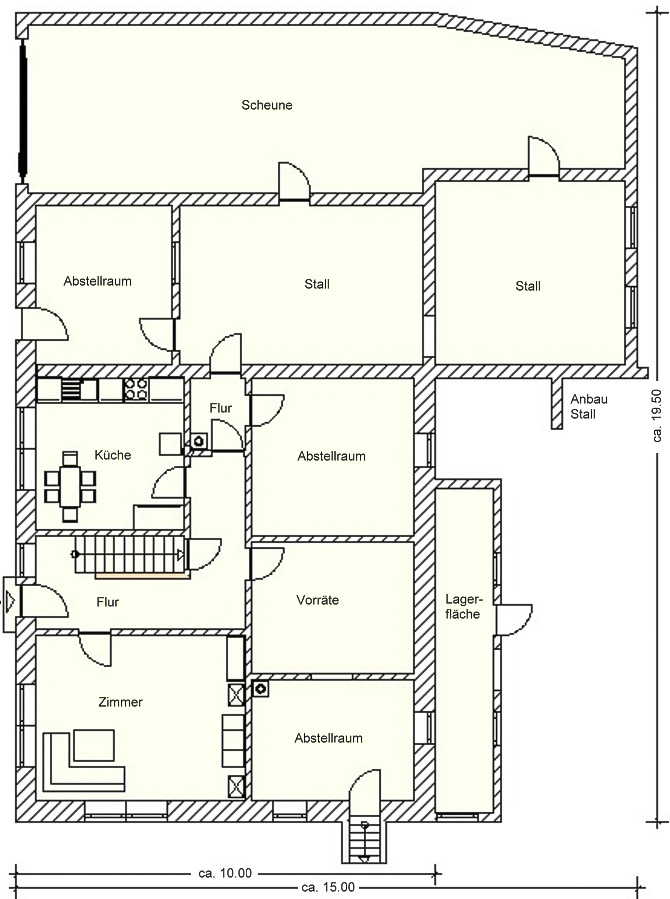
Dieses charmante Bauernhaus bietet auf rund 105 m² zeitgemäßen Komfort und schafft mit seiner gemütlichen Wohnküche, die sowohl mit einer modernen Einbauküche als auch einem stilvollen, holzbefeuerten Herd ausgestattet ist, sofort ein Gefühl von Zuhause. Direkt vom Wohnbereich gelangt man in den ehemaligen Stall und die großzügige Scheune, die ebenso wie zahlreiche Abstellräume im Haus vielfältiges Potenzial für individuelle Nutzungsideen bieten. Auch das DG kann bei Bedarf ausgebaut und in wertvollen Wohnraum verwandelt werden. Das Anwesen punktet darüber hinaus mit verschiedenen Nebengebäuden wie dem großen Holzschopf und einer Garage, die zusätzlichen Platz für Hobbys und Lagerflächen schaffen. Der Garten, der das Anwesen umgibt, eröffnet Hobbygärtnern und Tierliebhabern zahlreiche Gestaltungsmöglichkeiten. Die ruhige Lage, nur wenige Schritte vom Ortsrand entfernt, macht dieses Objekt zu einem idealen Rückzugsort mit viel Platz für individuelle Ideen.
- Ruhige Wohnlage, ca. 1.057 m² Grundstück, große Scheune, Holzschopf, Garage
- Ca. 105 m² Wohnfläche, 4 Zimmer, Küche mit Einbauküche, Bad, WC, Balkon
- Dachgeschoss ausbaufähig, Gewölbekeller B, 249,87 kWh, Hz, Klasse G, Baujahr 1874
Lage
Blochingen ist ein malerischer Ortsteil der Stadt Mengen im Landkreis Sigmaringen, in der reizvollen Kulturlandschaft Bodensee?Oberschwaben direkt am linken Donauufer, am Fuße der Schwäbischen Alb und nur etwa zwei Kilometer nördlich der Mengener Stadtmitte. Der Ortsteil gehört zu einer Stadt mit rund 10?000 Einwohnern und bildet zusammen mit Beuren, Ennetach, Rosna und Rulfingen eine Gemeinschaft mit eigener Identität und örtlicher Verwaltung vor Ort. Die Lage zeichnet sich durch eine naturnahe Umgebung mit Blick auf das Donautal und die Alb sowie durch unmittelbare Nähe zu Natur? und Landschaftsschutzgebieten wie dem Blochinger Sandwinkel aus, was Freizeitwert und Erholungsqualität deutlich steigert. Die Infrastruktur ist gut entwickelt: im Ort und im näheren Umfeld gibt es ein reges Vereinsleben, lokale Treffpunkte wie die Mehrzweckhalle und Angebote für alle Altersgruppen, darunter ein Kindergarten und der Mehrgenerationentreff vor Ort, und für größere Einkäufe, Schulen, weiterführende Betreuungs? und Freizeitangebote nutzen die Bewohner die Angebote der Kernstadt Mengen. In den letzten Jahren wurde auch die digitale Infrastruktur im Ort gezielt ausgebaut, etwa durch den flächendeckenden Breitbandausbau mit Glasfasernetzen, was eine moderne und zuverlässige Internetanbindung sicherstellt. Die Verkehrsanbindung von Blochingen ist sehr vorteilhaft: über die nahegelegenen Bundesstraßen B311 und B32 ist Mengen in alle Richtungen hervorragend mit dem regionalen Straßennetz verbunden, aus Richtung Ulm, Freiburg oder Stuttgart gut erreichbar und bietet eine schnelle Erschließung des Umlands und der größeren Zentren der Region. Für den öffentlichen Nah? und Fernverkehr steht der Bahnhof Mengen zur Verfügung, der an der wichtigen Eisenbahnstrecke Ulm–Sigmaringen liegt und über Regionalverbindungen Pendlern und Reisenden den Zugang zum Schienennetz ermöglicht. Darüber hinaus bestehen regionale Busverbindungen, die den täglichen Verkehr mit umliegenden Gemeinden und Ortsteilen unterstützen. Insgesamt verbindet Blochingen ländliche Idylle mit einer soliden sozio?ökonomischen Infrastruktur, einer guten Anbindung an Verkehrsachsen und gleichzeitig einer schnellen Erreichbarkeit von Arbeits?, Einkaufs? und Freizeitorten in der weiteren Umgebung.
Ihre unverbindliche Immobilien-Suche
Nebenkosten : Nachweis-/Erfolgshonorar 3,57 %, Grunderwerbsteuer 5 %, Notarkosten – ca. 1,2–1,5 %, Grundbuchkosten – ca. 1,0–1,5 %
Sämtliche Angebotsangaben sind nach bestem Wissen und Gewissen erstellt, und sollen Ihnen allgemeine Informationen ermöglichen. Da sie jedoch auf Informationen Dritter beruhen, kann von der BIV GmbH keine Gewähr für die Richtigkeit übernommen werden. Unsere Angebote sind freibleibend, der Zwischenverkauf bleibt uns vorbehalten.
