Zweifamilienhaus in Burladingen-Stetten unter Holstein
Komfortables Wohnen und Platz für Hobbyschrauber oder kleines Gewerbe
Dieses liebevoll modernisierte, ehemalige Bauernhaus, wurde 2016 umfassend saniert und verbindet heute historischen Charme mit modernem Wohnkomfort. Im Erdgeschoss und im Obergeschoss stehen jeweils eigenständige, großzügige Wohnungen zur Verfügung. Bei Bedarf lässt sich zudem das Dachgeschoss ausbauen und eröffnet damit weiteres Potenzial für individuelle Wohnträume. Hochwertige 3fach- Verglasungen und eine moderne Heiztechnik sorgen zu jeder Jahreszeit für ein angenehmes Raumklima sowie niedrige Betriebskosten. Die große Scheune und die angrenzende Halle bzw. Werkstatt bieten umfangreiche Abstell- und Arbeitsflächen für Fahrzeuge aller Art. Auch für einen kleinen Handwerksbetrieb oder für passionierte Autobastler finden sich hier ideale Voraussetzungen. Der geschützte Garten hinter dem Haus bietet Kindern und auch Ihrem vierbeiniger Freund sicheren Freiraum und Hobbygärtnern ausreichend Platz zur Entfaltung.
- Sonnige Wohnlage mit ca. 735 m² Grundstück
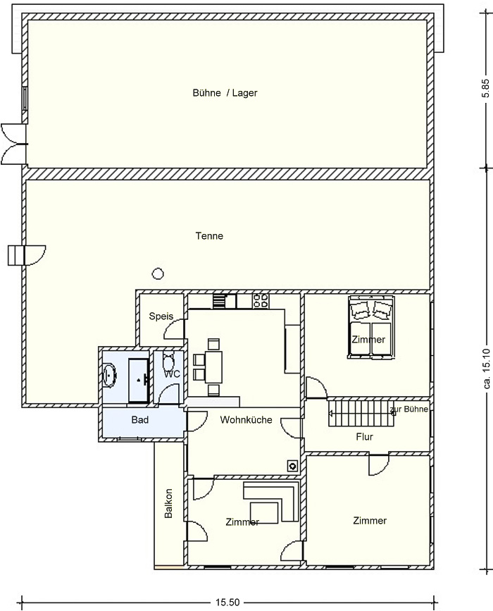
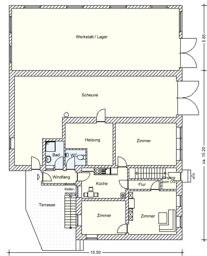
- EG ca. 72 m², 3 Zimmer, Küche, Bad, WC OG ca. 92 m², 3 Zimmer, Wohnkü., Bad ,WC
- Balkon, Terrasse, Freisitz, DG ausbaufähig Werkstatt/Halle ca. 120 m² Nutzfläche Scheune, Baujahr 1890/2016 B, 205,54 kWh, Holz, Klasse G
Lage
Der Ortsteil Stetten unter Holstein - ca. 700 Einwohner - gehört zur Stadt Burladingen im Landkreis Zollernalbkreis in Baden-Württemberg und liegt eingebettet im oberen Laucherttal, in einer ruhigen und naturnahen Wohnlage – umgeben von der sanften Hügellandschaft der Schwäbische Alb. Hier befindet sich in zentraler jedoch ruhiger Wohnlage die Immobilie. Die Lage von Stetten unter Holstein bietet eine ruhige, dörfliche Atmosphäre mit naturnahem Umfeld und schöner Alb-Landschaft – ideal für Menschen, die Erholung und Natur genießen möchten. Die Infrastruktur ist dennoch gut: Der öffentliche Nahverkehr ist durch den Verkehrsverbund NALDO gewährleistet, die durch die Stadt führende Bahnlinie der Hohenzollerische Landesbahn verbindet Burladingen mit umliegenden Städten. Für Familien gibt es mit der Grundschule eine schulische Versorgung direkt im Ortsteil – mit Ganztags- bzw. flexiblen Betreuungsangeboten und kleinen Klassen in angenehmer Dorfatmosphäre. Verkehrstechnisch ist Stetten unter Holstein gut angebunden: Durch die nahegelegene Bundesstraßenanbindung (u.a. B27 und B32) sowie die Landesstraßen, die das Tal erschließen, ist eine gute Erreichbarkeit gegeben. Die Umgebung bietet darüber hinaus reichlich Natur und Freizeitmöglichkeiten – die abwechslungsreiche Hügellandschaft der Schwäbischen Alb lädt zu Spaziergängen, Wanderungen und Erholung im Grünen ein. Insgesamt vereint die Lage: ruhiges, naturnahes und ländliches Wohnen in einem überschaubaren Ortsteil mit solider Grundversorgung, guter Anbindung und unmittelbarem Zugang zur Natur – ideal für Menschen, die Wohnen und Lebensqualität mit ruhigem Ambiente und guter Vernetzung schätzen.
Grundrisse
Objektanfrage
Nebenkosten : Nachweis-/Erfolgshonorar 3,57 %, Grunderwerbsteuer 5 %, Notarkosten – ca. 1,2–1,5 %, Grundbuchkosten – ca. 1,0–1,5 %
Sämtliche Angebotsangaben sind nach bestem Wissen und Gewissen erstellt, und sollen Ihnen allgemeine Informationen ermöglichen. Da sie jedoch auf Informationen Dritter beruhen, kann von der BIV GmbH keine Gewähr für die Richtigkeit übernommen werden. Unsere Angebote sind freibleibend, der Zwischenverkauf bleibt uns vorbehalten.
