3,5 Zimmer-Eigentumswohnung in Burladingen-Gauselfingen
Wohnung mit weiten Aussichten, zwei Bädern und viel Raum zum Leben
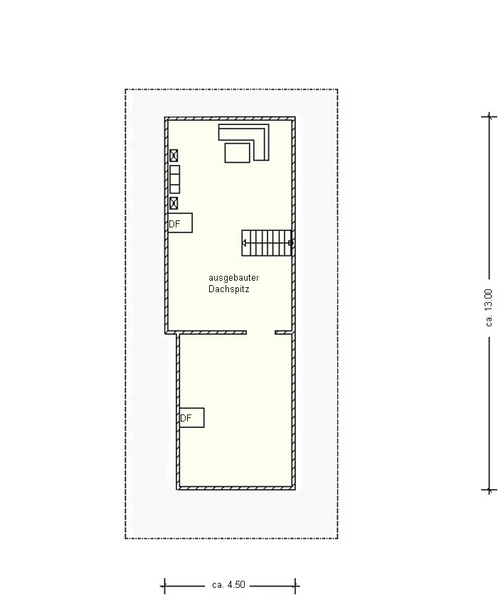
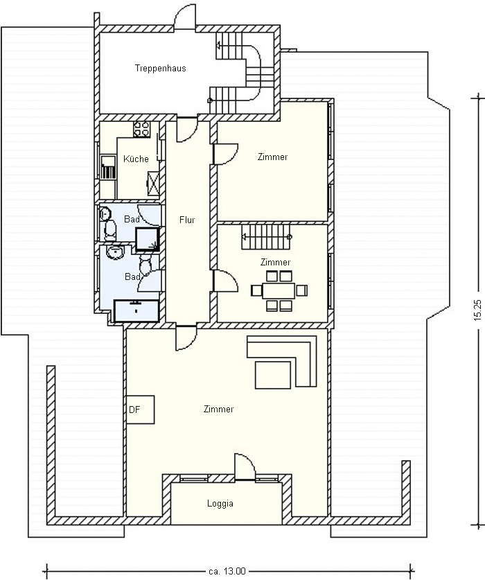
Diese großzügige Eigentumswohnung überzeugt durch ihre attraktive Lage, nur wenige Schritte vom Ortsrand entfernt, und bietet ein ideales Zuhause für Paare oder Familien. Helle Räume, pflegeleichte Fliesen- und Laminatböden sowie die moderne Einbauküche schaffen ein wohnliches Ambiente, in dem man sich sofort zuhause fühlt. Ein besonderes Highlight sind die zwei vollwertigen Bäder, von denen eines mit Badewanne und praktischem Waschmaschinenanschluss ausgestattet ist, während das zweite Bad mit einer komfortablen Dusche punktet. Zusätzlichen Raumgewinn bietet der ausgebaute Dachspitz, der vielfältige Nutzungsmöglichkeiten eröffnet, sei es als großzügige Abstellfläche oder Spielfläche für Kinder. Die überdachte Loggia lädt bei jedem Wetter zum Entspannen ein und für Ihr Auto steht ein Tiefgaragenstellplatz zur Verfügung. Dank der guten Anbindung erreichen Sie in nur wenigen Minuten Burladingen und Gammertingen, wo Ihnen Ärzte, Apotheken, Einkaufsmöglichkeiten und zahlreiche weitere Einrichtungen des täglichen Bedarfs zur Verfügung stehen.
- Ruhige und sonnige Wohnlage
- 3,5 Zimmer, Einbauküche, 2 Bäder, 2 WC
- ca. 90 m² Wohnfläche, Loggia Keller, Tiefgaragenstellplatz V, 115,9 kWh, Öl, Klasse D, Baujahr 1993
Lage
Die Gemeinde Gauselfingen liegt auf der Sonnenseite der Schwäbischen Alb umgeben von viel grüner Natur. Vor Ort gibt es einen Kindergarten und eine Grundschule, perfekt für Familien mit Kindern. Die attraktive Kleinstadt Burladingen liegt nur etwa 3 Autominuten entfernt und bietet mit vielen Einkaufsmöglichkeiten, Ärzten, Apotheke und zahlreichen Freizeitangeboten Komfort für alle Lebenslagen. Die Immobilie befindet sich in ruhiger sonniger Wohnlage in einem Wohngebiet.
Grundrisse
Objektanfrage
Nebenkosten : Nachweis-/Erfolgshonorar 4,76 %, Grunderwerbsteuer 5 %, Notarkosten – ca. 1,2–1,5 %, Grundbuchkosten – ca. 1,0–1,5 %
Sämtliche Angebotsangaben sind nach bestem Wissen und Gewissen erstellt, und sollen Ihnen allgemeine Informationen ermöglichen. Da sie jedoch auf Informationen Dritter beruhen, kann von der BIV GmbH keine Gewähr für die Richtigkeit übernommen werden. Unsere Angebote sind freibleibend, der Zwischenverkauf bleibt uns vorbehalten.
