Einfamilienhaus in Bitz
Kinderlachen garantiert Haus mit großem Garten und Freisitz
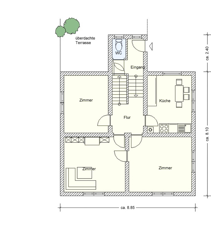
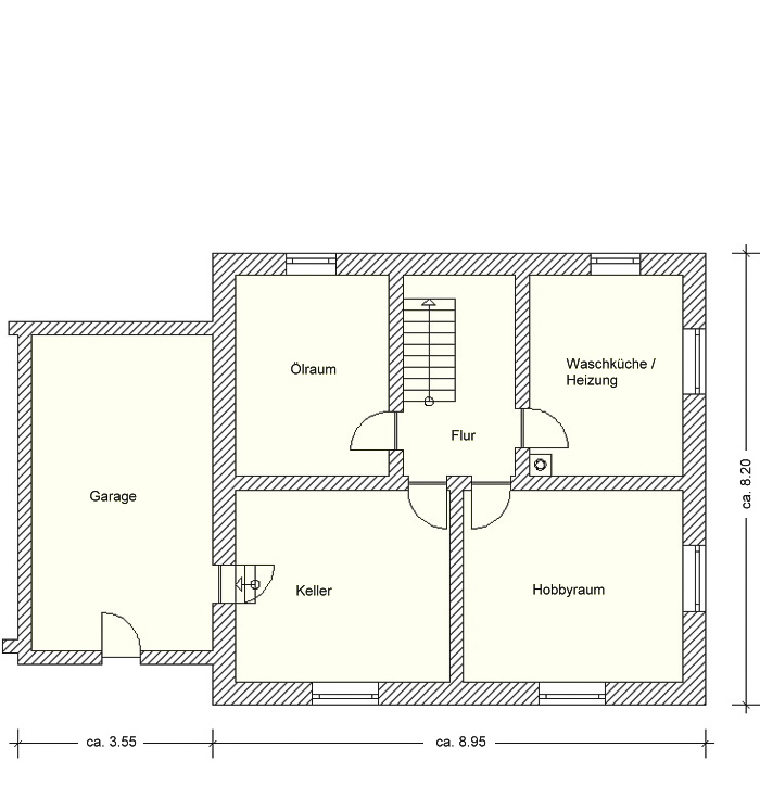
Schon beim ersten Betreten des Hauses fällt das attraktive Preis- und Leistungsverhältnis auf. Mit einer zeitgemäßen Modernisierung und handwerklichen Eigenleistungen können Sie sich hier Schritt für Schritt den Traum vom Eigenheim erfüllen und Ihre bisherige Miete in bleibende Werte investieren. Auf ca. 100 m² erwartet Sie eine durchdachte Raumaufteilung mit 6 hellen Zimmern, einer großzügigen Wohnküche, Bad und einem sep. Gäste-WC. Im UG bieten Werkstatt, Hobbyraum und Waschküche perfekte Bedingungen für kreative Projekte und mit dem direkten Zugang von der Garage gelangen Sie jederzeit trockenen Fußes ins Haus. Im Außenbereich bietet ein Schuppen zusätzlichen Stauraum und der eingezäunte Garten ist der ideale Platz für Kindern zum Spielen und Toben. Der überdachte Freisitz mit offenem Kamin lädt bei fast jedem Wetter zu geselligen Abenden mit Familie und Freunden ein. Die Gemeinde Bitz liegt zwischen Gammertingen und Albstadt auf der Hochfläche der Schwäbischen Alb und zählt zu den sonnenreichsten Orten Deutschlands.
- Zentrale Wohnlage mit ca. 787 m² geschütztem Grundstück
- 6 Zimmer, Küche, Bad, 2 WC, Hobbyraum, Geräte-/Fahrradabstellraum
- überdachter Freisitz mit offenem Kamin Werkstatt, Garage mit Hauszugang ca. 100 m² Wohnfläche B, 331,51 kWh, Öl, Kl. H, Baujahr 1926
Lage
Der Ort Bitz mit liegt im Landkreis Zollernalbkreis in Baden?Württemberg und gehört zur Region Tübingen. Die Gemeinde hat rund 3.800?Einwohner und erstreckt sich auf eine Fläche von etwa 8,82?km². In zentraler Wohnlage mit einem geschützten Grundstück befindet sich die Immobilie. Bitz liegt auf der Hochfläche der südwestlichen Schwäbische Alb, eingebettet in die typische Kuppenlandschaft der Kuppenalb, mit Höhen zwischen etwa 775 und 928?Metern über Normalnull und mit viel Natur? und Waldgebiet und zählt zu den sonnenreichsten Orten in ganz Deutschland. Dank seiner zentralen Lage zwischen Orten wie Albstadt, Burladingen und Winterlingen sowie der ruhigen Lage auf der Albhochfläche verbindet Bitz dörflichen Charme mit guter Erreichbarkeit. Die Infrastruktur umfasst die Grundversorgung mit Einkaufsmöglichkeiten, Kindergärten, Schulen, ärztlicher Versorgung und allerlei Vereinen und Freizeitangeboten — ideal für Familien und ein aktives Dorfleben. Durch die naturnahe Umgebung eröffnen sich hervorragende Möglichkeiten für Freizeit und Erholung: Wander? und Radwege über die Alb, Natur und Wald direkt vor der Haustür und im Winter sogar Skilift und Loipe — wer Natur und Ruhe schätzt, findet hier einen idealen Lebensmittelpunkt Bitz steht für den guten Mix aus ländlicher Ruhe, naturnaher Umgebung, solider Infrastruktur und Zugehörigkeit zu einer traditionsreichen Region der Schwäbischen Alb — für jeden, der Wert auf Gemeinschaft, Natur und trotzdem praktikable Erreichbarkeit legt, ist Bitz ein attraktiver Standort.
Ihre unverbindliche Immobilien-Suche
Nebenkosten : Nachweis-/Erfolgshonorar 4,76 %, Grunderwerbsteuer 5 %, Notarkosten – ca. 1,2–1,5 %, Grundbuchkosten – ca. 1,0–1,5 %
Sämtliche Angebotsangaben sind nach bestem Wissen und Gewissen erstellt, und sollen Ihnen allgemeine Informationen ermöglichen. Da sie jedoch auf Informationen Dritter beruhen, kann von der BIV GmbH keine Gewähr für die Richtigkeit übernommen werden. Unsere Angebote sind freibleibend, der Zwischenverkauf bleibt uns vorbehalten.
