Einfamilienhaus in Scheer
• Wohnen wie im Urlaub • mediterranes Traumhaus im Toskana-Stil
Dieses ganz besondere Zuhause begeistert mit außergewöhnlichem Charme und mediterranem Flair im Toskana-Design und bietet ein Wohnambiente, das jeden Tag Urlaubsgefühle aufkommen lässt. Bodentiefe Verglasungen lassen die Sonne tief ins Haus strömen und durchfluten die großzügigen Räume mit Licht, während helle Fliesenböden und Holzdecken eine warme und gemütliche Atmosphäre schaffen. Das Walmdach sorgt dafür, dass auch das Obergeschoss mit viel Platz und praktischen Stellflächen überzeugt. Hochwertige Ausstattungsdetails wie die Massivholzküche, das umfangreich ausgestattete Bad im OG, das sep. Gäste-Bad im EG sowie der beheizte Hobbyraum unterstreichen den besonderen Wohnkomfort. Ein absolutes Highlight ist die große, weit überdachte Arkadenterrasse, die zu jeder Jahreszeit der perfekte Ort ist, um mit der Familie den Feierabend entspannt zu genießen. Direkt um die Ecke laden Wiesen und Felder zu ausgedehnten Spaziergängen in der Natur ein und für nachhaltige Energieeffizienz sorgen sowohl die PV- wie auch die Solaranlage.
- Ruhige und sonnige Wohnlage am Ortsrand, ca. 725 m² Grundstück, Garage, 2 Stellplätze
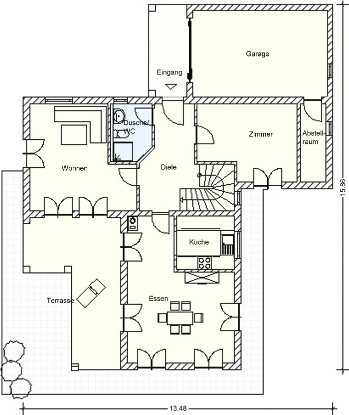
- Ca. 134 m² Wohnfläche, 6 Zimmer, Küche mit Einbauküche, 2 Bäder, 2 WC
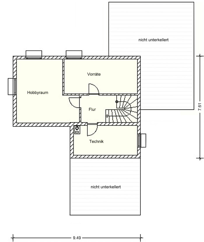
- große überdachte Arkadenterrasse beheizter Hobbyraum PV-Anlage 5,85 kWp Solar fürs Brauchwasser V, 109,16 kWh, Pellets, Kl. D, Baujahr 2005
Lage
Willkommen in Scheer – einem Ort, der Lebensqualität, Naturverbundenheit und wirtschaftliche Perspektiven vereint. Eingebettet in die malerische Landschaft des Naturparks Obere Donau, bietet Scheer nicht nur eine atemberaubende Kulisse, sondern auch eine lebendige Gemeinschaft. Die Stadt profitiert von ihrer Lage an der B32, die eine schnelle Verbindung zu den Städten Mengen und Sigmaringen ermöglicht. Obwohl der Zugverkehr derzeit nicht direkt in Scheer hält, sorgen Buslinien des Verkehrsverbunds NALDO für eine gute Anbindung. Für Fahrradliebhaber ist der Donauradweg ein echtes Highlight. In Scheer finden Sie alles, was das Herz begehrt: Einkaufen: Lokale Geschäfte und Supermärkte decken den täglichen Bedarf. Gesundheit: Ärztliche Versorgung und eine Apotheke sind vor Ort. Bildung: Die Gräfin-Monika-Grundschule sowie Kindergärten bieten eine solide Bildungsbasis. Weiterführende Schulen sind in den benachbarten Städten leicht erreichbar. Der historische Stadtkern mit dem Schloss Scheer und der Nikolauskirche verleiht dem Ort einen besonderen Charme. Zahlreiche Veranstaltungen und ein aktives Vereinsleben fördern das Gemeinschaftsgefühl. Die zum Verkauf stehende Immobilie liegt in einem ruhigen Wohngebiet am Stadtrand.
Ihre unverbindliche Immobilien-Suche
Nebenkosten : Nachweis-/Erfolgshonorar 3,57 %, Grunderwerbsteuer 5 %, Notarkosten – ca. 1,2–1,5 %, Grundbuchkosten – ca. 1,0–1,5 %
Sämtliche Angebotsangaben sind nach bestem Wissen und Gewissen erstellt, und sollen Ihnen allgemeine Informationen ermöglichen. Da sie jedoch auf Informationen Dritter beruhen, kann von der BIV GmbH keine Gewähr für die Richtigkeit übernommen werden. Unsere Angebote sind freibleibend, der Zwischenverkauf bleibt uns vorbehalten.
