2 Doppelhaushälften in Riedlingen-Neufra
Ihr neues Zuhause wartet zwei Häuser, viel Platz, grenzenlose Möglichkeiten
Dieses interessante Anwesen besteht aus zwei miteinander verbundenen Doppelhaushälften und bietet Ihnen vielseitige Nutzungsmöglichkeiten. Die vordere Haushälfte wurde 1952 erbaut und 1965 durch den Anbau der zweiten Einheit erweitert, sodass heute insgesamt ca. 150 m² Wohnfläche zur Verfügung stehen. Ob als großzügiges Zuhause für die ganze Familie, als Mehrgenerationenhaus oder die Kombination von Eigennutzung und Vermietung, hier sind Ihren Ideen kaum Grenzen gesetzt. Im Erdgeschoss sind die Einheiten miteinander verbunden und schaffen ein harmonisches Wohngefühl. Nach einer umfassenden und wertsteigernden Modernisierung investieren Sie nicht länger in Miete, sondern in Ihr eigenes Zuhause und schaffen sich für die Zukunft langfristige Sicherheit. Die ruhige Lage in einem gepflegten Wohngebiet, verkehrsgünstig zwischen Ertingen und Riedlingen, überzeugt ebenso wie die naturnahe Umgebung.
- Ruhige Wohnlage, ca. 500 m² Grundstück
- 8 Zimmer, 2 Küchen, 2 Bäder, 3 WC, Balkon
- ca. 150 m² Wohnfläche, Garage, Terrasse B, 318,69 kWh, Öl, Kl. H, Baujahr 1952/1965
Lage
Willkommen in Neufra, einem idyllischen Ortsteil von Riedlingen im schönen Landkreis Biberach. Diese Immobilie liegt in ruhiger, naturnaher Wohnlage – umgeben von Wiesen und Feldern, mit herrlichem Ausblick auf die sanfte schwäbische Landschaft. Trotz der ruhigen Lage profitieren Sie von exzellenter Anbindung: Über die B311 erreichen Sie Riedlingen, Ulm oder Bad Saulgau in kurzer Zeit. Der öffentliche Nahverkehr verbindet Neufra zuverlässig mit der Kernstadt, der Bahnhof Riedlingen ist nur wenige Minuten entfernt. Infrastruktur und Alltag sind bestens gewährleistet: Grundversorgung und ein Kindergarten sind direkt im Ort, weiterführende Einkaufsmöglichkeiten, Schulen, Ärzte und Freizeitangebote in Riedlingen sind schnell erreichbar. Gleichzeitig genießen Sie hier die Ruhe eines charmanten Dorfes, viel Natur vor der Haustür und ein familienfreundliches Umfeld. Diese Immobilie bietet die perfekte Kombination aus naturnahem Wohnen, Ruhe und praktischer Anbindung – ideal für Familien, Paare oder Pendler, die Lebensqualität mit Komfort verbinden möchten.
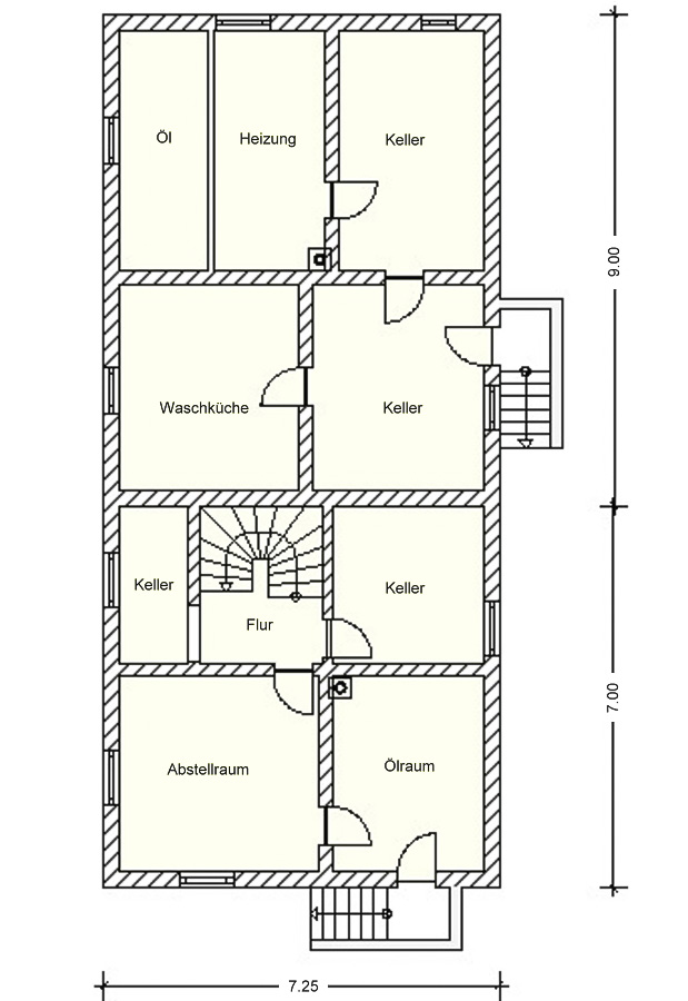
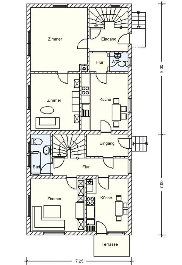
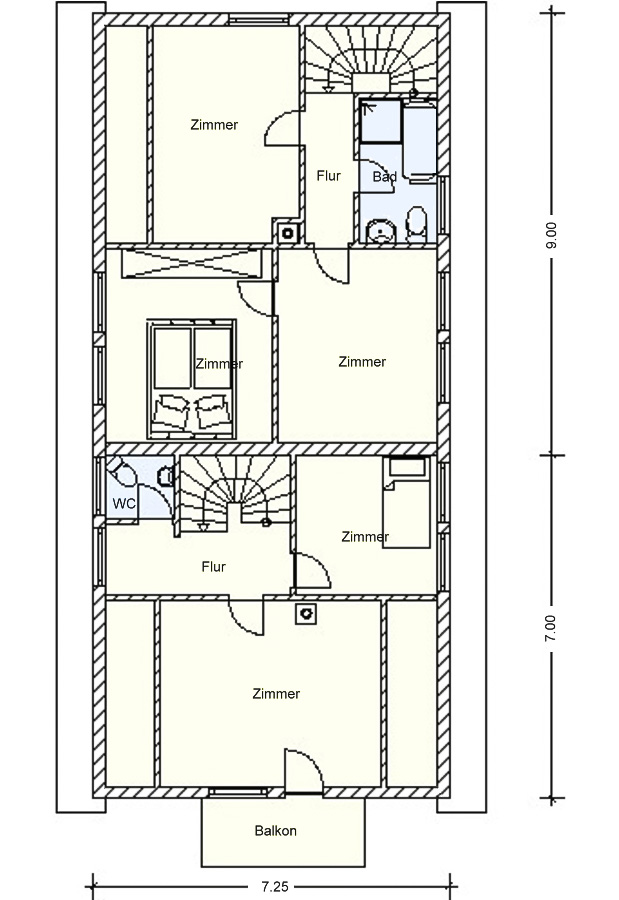
Grundrisse
Objektanfrage
Nebenkosten : Nachweis-/Erfolgshonorar 3,57 %, Grunderwerbsteuer 5 %, Notarkosten – ca. 1,2–1,5 %, Grundbuchkosten – ca. 1,0–1,5 %
Sämtliche Angebotsangaben sind nach bestem Wissen und Gewissen erstellt, und sollen Ihnen allgemeine Informationen ermöglichen. Da sie jedoch auf Informationen Dritter beruhen, kann von der BIV GmbH keine Gewähr für die Richtigkeit übernommen werden. Unsere Angebote sind freibleibend, der Zwischenverkauf bleibt uns vorbehalten.
