Bauernhaus in Gomadingen-Dapfen
Platzwunder für Familien / 2 Generationen - mit Nebengebäude, ideal für Handwerker, Lager
Dieses großzügige und gemütliche Bauernhaus begeistert mit seinem ganz besonderen Charme und einem beeindruckenden Platzangebot. Ideal für Familien mit viel Raumbedarf oder für das harmonische Zu- sammenleben mehrerer Generationen unter einem Dach. Auf ca. 195 m² erwarten Sie große, lichtdurchflutete Räume mit angenehmen Zim- merhöhen und einer Wohnatmosphäre, die sofort ein Gefühl von Zu- hause vermittelt. Energiesparende Kunststofffenster sorgen ebenso wie das barrierefreie Badezimmer für zeitgemäßen Komfort. Ein be- sonderes Highlight ist das riesige Nebengebäude, das vielfältige Nutz- ungsmöglichkeiten eröffnet, ob für Fahrzeuge aller Art, als Werkstatt für Hobbybastler oder für einen Handwerksbetrieb mit großzügigen Lageroptionen. Die ruhige Lage unterstreicht den hohen Wohnwert zusätzlich, denn direkt hinter dem Haus beginnt die beeindruckende Natur der Schwäbischen Alb, die zu erholsamen Wanderungen durch das idyllische Lautertal einlädt, während die Städte Münsingen und Gomadingen in nur wenigen Autominuten bequem erreichbar sind.
- Ruhige Lage am Ortsrand, ca. 1.220 m² Grundstück, Garage im Haus
- 6 Zimmer, große Küche, Speis/Abstellraum, barrierefreies Bad, 3 WC, Kachelofen
- ca. 195 m² Wohnfläche, Gewölbekeller Nebengebäude mit ca. 290 m² Nutzfläche B, 245,51 kWh, E, Klasse G, Baujahr 1900
Lage
Im Herzen der Schwäbischen Alb gelegen, besticht Gomadingen-Dapfen mit seiner idyllischen, naturnahen Umgebung. Der Ortsteil zählt zu den charmanten Dörfern der Gemeinde Gomadingen und ist geprägt von ländlicher Idylle, historischen Fachwerkhäusern sowie weitläufigen Wiesen- und Waldflächen. Die ruhige Atmosphäre, gepflegte Straßen und die Nähe zu Wander- und Radwegen machen Dapfen besonders lebenswert. Über die B 312 sind Münsingen und Reutlingen schnell erreichbar, regionale Busverbindungen sichern den Anschluss an das öffentliche Verkehrsnetz. Gleichzeitig profitiert man von der Nähe zu Schulen, Einkaufsmöglichkeiten und kulturellen Angeboten der umliegenden Gemeinden.
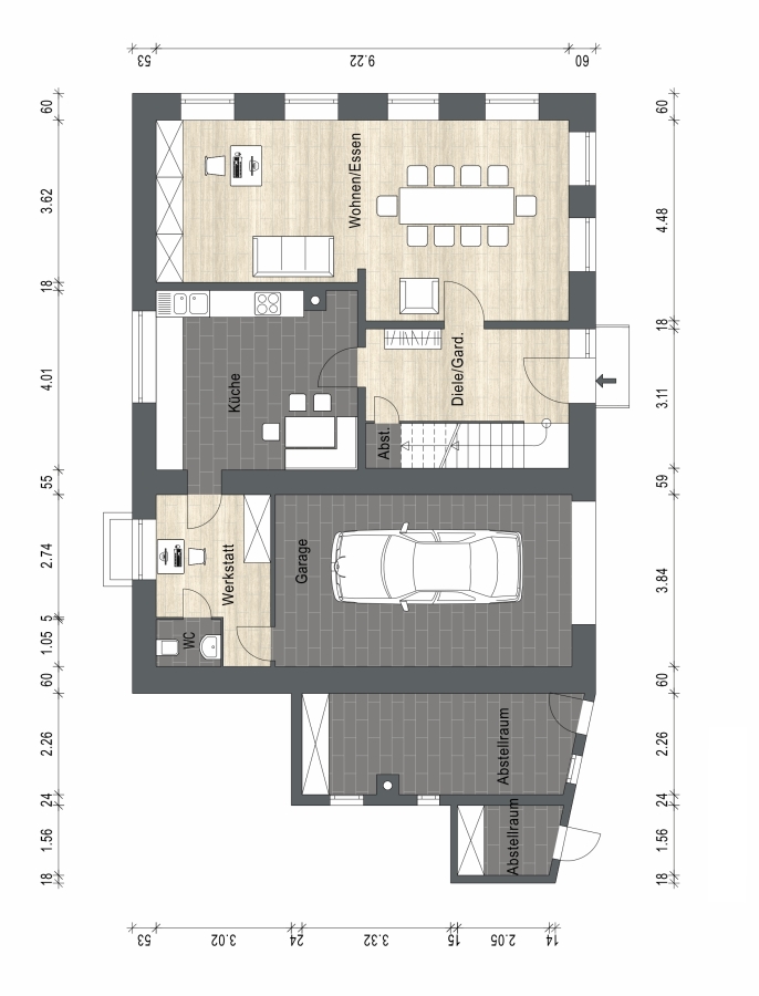
Grundrisse
Objektanfrage
Nebenkosten : Nachweis-/Erfolgshonorar 3,57 %, Grunderwerbsteuer 5 %, Notarkosten – ca. 1,2–1,5 %, Grundbuchkosten – ca. 1,0–1,5 %
Sämtliche Angebotsangaben sind nach bestem Wissen und Gewissen erstellt, und sollen Ihnen allgemeine Informationen ermöglichen. Da sie jedoch auf Informationen Dritter beruhen, kann von der BIV GmbH keine Gewähr für die Richtigkeit übernommen werden. Unsere Angebote sind freibleibend, der Zwischenverkauf bleibt uns vorbehalten.
