4,5-Zimmer Eigentumswohnung in Meßkirch
Ruhig Wohnlage und mit Balkon ETW ideal für Kapitalanleger oder Eigenbedarf
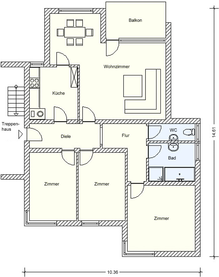
Diese gepflegte 4,5-Zimmer-Wohnung im 1. Obergeschoss befindet sich in einer ansprechenden und ruhigen Wohnlage in Meßkirch mit guter Anbindung und naturnahem Umfeld. Das großzügige Wohnzimmer bildet den Mittelpunkt der Wohnung und bietet viel Platz für Wohnen und Essen sowie Zugang zum Balkon, der zum Entspannen in angenehmer Umgebung einlädt. Die separate Trennung von Bad und WC sorgt für zusätzlichen Komfort im Alltag, während ein eigener Kellerraum praktischen Stauraum bietet. Zusätzlich gehört eine Garage zur Wohnung, es besteht außerdem die Möglichkeit, einen Stellplatz unmittelbar davor zu nutzen. Die durchdachte Raumaufteilung, die angenehme Position im Wohngebiet Meßkirchs und die Tatsache, dass es sich nur um ein 6-Parteien-Haus handelt, ermöglichen ein besonders gemütliches Wohnen und machen diese Immobilie sowohl für Eigennutzer als auch für Kapitalanleger interessant.
- Bevorzugte Lage in einem Wohngebiet
- 4,5 Zimmer, Einbauküche, Bad, sep. WC, Kelleraum, Garage mit Stellplatz, 1 Balkon
- ca. 96 m² Wohnfläche, Öl-ZH Baujahr 1991 V, 135 kWh, Öl, Klasse E, Baujahr 1975
Lage
Die Stadt Meßkirch (Baden-Württemberg) liegt idyllisch im Naturraum des oberen Linzgaus, zwischen der Schwäbischen Alb und dem Bodensee. Meßkirch zählt rund 8.500 Einwohner und gehört zum Landkreis Sigmaringen. Als traditionsreiche Stadt mit historischem Stadtkern verbindet Meßkirch ländlichen Charme mit einer gut ausgebauten Infrastruktur und einem vielfältigen kulturellen Angebot. In den vergangenen Jahren wurde kontinuierlich in die Weiterentwicklung der städtischen Infrastruktur investiert. Moderne Bildungs- und Betreuungseinrichtungen, Sport- und Freizeitanlagen sowie Maßnahmen zur Stadtentwicklung und Sanierung tragen zu einer hohen Wohn- und Lebensqualität bei. Damit ist Meßkirch mit allem ausgestattet, was Bürger heute im Bereich der Daseinsvorsorge erwarten. Die Umgebung bietet zahlreiche Möglichkeiten zur Erholung und Freizeitgestaltung. Die nahegelegene Schwäbische Alb, das Donautal sowie der Bodensee laden zu Ausflügen in die Natur ein. Kulturelle Highlights wie das Schloss Meßkirch, die Heimstätte des Philosophen Martin Heidegger, prägen das Stadtbild und machen Meßkirch auch überregional bekannt. Über die gute Straßenanbindung ist die Stadt verkehrstechnisch gut erreichbar.
Grundrisse
Objektanfrage
Nebenkosten : Nachweis-/Erfolgshonorar 3,57 %, Grunderwerbsteuer 5 %, Notarkosten – ca. 1,2–1,5 %, Grundbuchkosten – ca. 1,0–1,5 %
Sämtliche Angebotsangaben sind nach bestem Wissen und Gewissen erstellt, und sollen Ihnen allgemeine Informationen ermöglichen. Da sie jedoch auf Informationen Dritter beruhen, kann von der BIV GmbH keine Gewähr für die Richtigkeit übernommen werden. Unsere Angebote sind freibleibend, der Zwischenverkauf bleibt uns vorbehalten.
