1-2 Familienhaus (DHH) in Riedlingen
Modernisiert und bezugsfertig mit viel Platz für die ganze Familie
Dieses attraktive Zuhause begeistert vom ersten Moment an durch seinen hervorragenden Gesamtzustand. Es wurde zwischen 2011 und 2024 umfassend saniert, sodass es heutigen Ansprüchen an komfortables und zeitgemäßes Wohnen entspricht. Neue Fenster, ein neu eingedecktes Dach, die frisch gestaltete Fassade sowie moderne Bäder schaffen ein komfortables Wohnambiente, das durch die geschmackvolle Einbauküche noch ergänzt wird. Auch in technischer Hinsicht präsentiert sich die Immobilie auf einem modernen Stand. Die Heizung wurde erneuert und durch eine effiziente Solar- und PV- Anlage ergänzt, zusätzlich sorgt ein Kaminofen für behagliche Wärme. Vom Balkon aus gelangt man direkt in den geschützten Garten, hier lädt ein überdachter Freisitz zu entspannten Stunden im Freien ein. Auf Wunsch kann eine Sauna übernommen werden und bietet damit ein besonderes Plus an Komfort und Wellness. Neben der Garage mit Sektionaltor stehen weitere Stellplätze direkt vor dem Haus zur Verfügung. Sämtliche Einrichtungen des täglichen Bedarfs wie ein Kindergarten, Ärzte, Apotheke und Einkauf sind bequem zu Fuß erreichbar.
- Zentrale Wohnlage, ca. 434 m² Grundstück
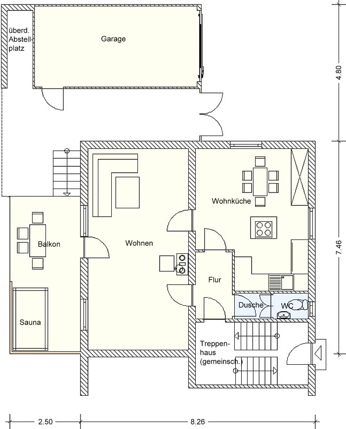
- 7 Zimmer, Einbauküche, 1 Bad, 2 Duschen, 3 WC, Kaminofen, Infrarotplatten, Gas-ZH
- ca. 119 m² Wohnfläche, überdachter Freisitz Photovoltaik mit 10 Kw, Solaranlage umfassende Renovierung 2011-2014 Garage, 3 Stellplätze, Sauna VB, Balkon B, 159,86 kWh, Gas/E,Hz, Klasse F Baujahr 1951/1978
Lage
Riedlingen, eine charmante Stadt im Landkreis Biberach in Baden-Württemberg, besticht durch ihre idyllische Lage an der Donau und ihre hohe Lebensqualität. Die Immobilie befindet sich am ruhigen Stadtrand, in einer familienfreundlichen Wohngegend, die durch ihre angenehme Nachbarschaft und naturnahe Umgebung überzeugt. Hier genießen Sie die Vorzüge einer ruhigen Lage, ohne auf die Annehmlichkeiten des täglichen Lebens verzichten zu müssen. Die Infrastruktur in Riedlingen ist hervorragend ausgebaut. Einkaufsmöglichkeiten, Kindergärten, Schulen sowie medizinische Versorgung sind in wenigen Minuten erreichbar. Auch kulturelle Angebote, Sportvereine und Freizeitmöglichkeiten tragen dazu bei, dass sich Familien, Paare und Senioren gleichermaßen wohlfühlen. Besonders hervorzuheben ist die Nähe zur Natur: Spazier- und Radwege entlang der Donau sowie zahlreiche Grünflächen bieten einen hohen Erholungswert direkt vor der Haustür. Verkehrstechnisch ist Riedlingen gut angebunden. Die Stadt liegt verkehrsgünstig zwischen Ulm und Sigmaringen und ist sowohl mit dem Auto als auch mit der Bahn bequem erreichbar. Die Bahnanbindung ermöglicht eine direkte Verbindung in die umliegenden Städte und sorgt für Flexibilität im Alltag. Auch die Nähe zur B311 erleichtert die Anbindung an das regionale Straßennetz. Riedlingen selbst vereint historische Altstadt-Atmosphäre mit moderner Infrastruktur. Fachwerkhäuser, kleine Geschäfte und Cafés prägen das Stadtbild und verleihen dem Ort einen besonderen Charme. Insgesamt bietet die zentrale Lage der Immobilie in einem Wohngebiet, eine ideale Kombination aus Ruhe, Natur und städtischer Infrastruktur – perfekt für alle, die ein entspanntes, sicheres und zugleich gut angebundenes Zuhause suchen.
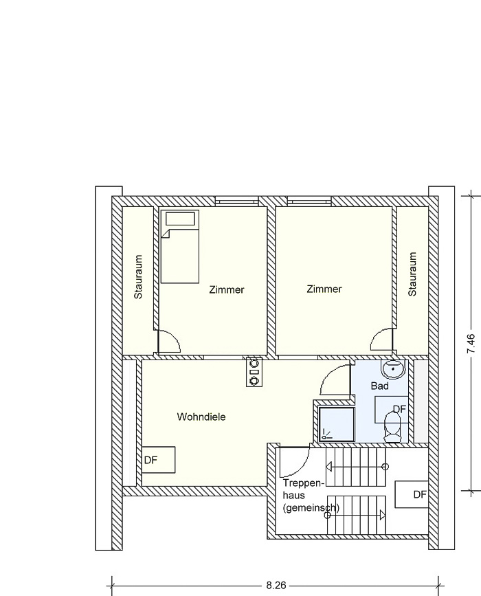
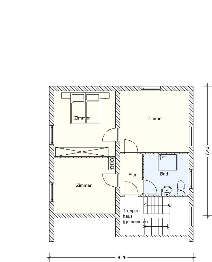
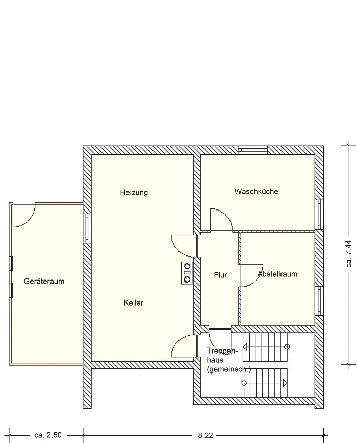
Grundrisse
Objektanfrage
Nebenkosten : Nachweis-/Erfolgshonorar 3,57 %, Grunderwerbsteuer 5 %, Notarkosten – ca. 1,2–1,5 %, Grundbuchkosten – ca. 1,0–1,5 %
Sämtliche Angebotsangaben sind nach bestem Wissen und Gewissen erstellt, und sollen Ihnen allgemeine Informationen ermöglichen. Da sie jedoch auf Informationen Dritter beruhen, kann von der BIV GmbH keine Gewähr für die Richtigkeit übernommen werden. Unsere Angebote sind freibleibend, der Zwischenverkauf bleibt uns vorbehalten.
