Einfamilienhaus in Ertingen
• Familienglück garantiert • hochwertig modernisiertes Haus mit Wohlfühlfaktor
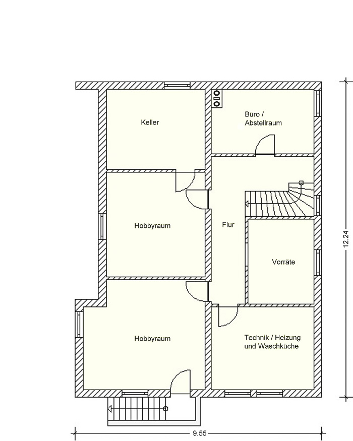
Dieses attraktive Domizil präsentiert sich als echtes Schmuckstück und überzeugt mit seinem äußerst gepflegten Gesamtzustand, was bereits der erste Eindruck von außen deutlich sichtbar macht. Das Dach wurde neu eingedeckt, Fenster und Haustüre erneuert, die Fassade frisch gestrichen und die Heizungsanlage im Jahr 2022 ausge- tauscht. Auch im Innenbereich setzt sich dieser neuwertige Eindruck konsequent fort, moderne Laminat- und Fliesenböden, eine hochwertige Einbauküche sowie das trendige Bad im DG schaffen eine behagliche Wohnatmosphäre. Ein absolutes Highlight ist die großzügige Terrasse im Wintergarten-Stil, die als geschützter Rückzugsort für die ganze Familie dient und bei jedem Wetter zum Verweilen einlädt. Der weitläufige Garten bietet darüber hinaus weitere idyllische Plätze zum Entspannen und Genießen. Zusätzlichen Mehrwert bieten zwei Garagen mit Sektionaltor sowie das komplett geflieste UG. Die unmittelbare Nähe zum Erholungsgebiet der Schwarzachtalseen rundet dieses Angebot perfekt ab, denn ob entspannte Spaziergänge, Radfahren oder Schwimmen, hier findet jeder seine persönliche Auszeit in der Natur.
- Sonnige Wohnlage, ca. 725 m² Grundstück, 2 Garagen mit Sektionaltor, 2 Stellplätze
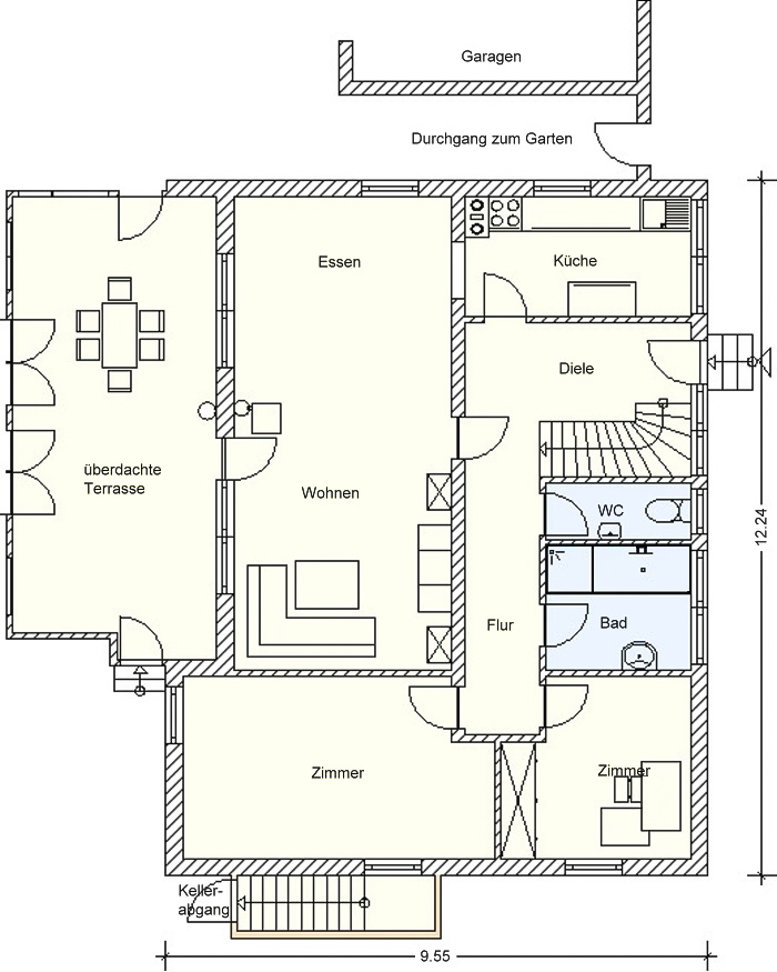
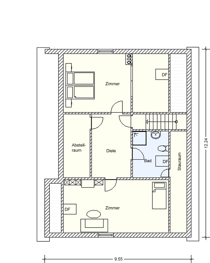
- Ca. 137 m² Wohnfläche, 5,5 Zimmer, Einbauküche, 2 Bäder, 2 WC, Hobbyraum
- Terrasse im Wintergarten-Stil, Freisitz B, 164,46 kWh, Fernwärme, Kl. F, Bj. 1966
Lage
Die Gemeinde Ertingen (Baden-Württemberg) liegt landschaftlich reizvoll am Übergang zwischen dem Südrand der Schwäbischen Alb und dem oberschwäbischen Hügelland, unweit der Donau. Ertingen zählt rund 5.000 Einwohner und gehört mit seinem Ortsteil Binzwangen zum Landkreis Biberach. Regional ist die Gemeinde Teil der Verwaltungsgemeinschaft Riedlingen und zeichnet sich durch eine gut ausgebaute Infrastruktur sowie ein reges Vereins- und Gemeindeleben aus. In den vergangenen Jahren wurde in Ertingen kontinuierlich in die Entwicklung der örtlichen Infrastruktur investiert. Moderne Sport- und Freizeitanlagen, eine leistungsfähige Wasserversorgung, eine zeitgemäße Abwasserbeseitigung sowie Maßnahmen zur Ortsentwicklung und -sanierung tragen zu einer hohen Wohn- und Lebensqualität bei. Damit ist die Gemeinde mit allem ausgestattet, was Bürger heute im Bereich der Daseinsvorsorge erwarten. Die Umgebung bietet vielfältige Möglichkeiten zur Freizeitgestaltung und Erholung. Das nahe Donautal, die Schwäbische Alb sowie die historische Altstadt von Riedlingen laden zu Ausflügen und Aktivitäten in der Natur ein. Auch der Bodensee ist in gut erreichbarer Entfernung gelegen. Durch die Anbindung an die Donautalbahn ist Ertingen schienenmäßig gut erschlossen.
Grundrisse
Objektanfrage
Nebenkosten : Nachweis-/Erfolgshonorar 3,57 %, Grunderwerbsteuer 5 %, Notarkosten – ca. 1,2–1,5 %, Grundbuchkosten – ca. 1,0–1,5 %
Sämtliche Angebotsangaben sind nach bestem Wissen und Gewissen erstellt, und sollen Ihnen allgemeine Informationen ermöglichen. Da sie jedoch auf Informationen Dritter beruhen, kann von der BIV GmbH keine Gewähr für die Richtigkeit übernommen werden. Unsere Angebote sind freibleibend, der Zwischenverkauf bleibt uns vorbehalten.
