Einfamilienhaus in Bingen
Ehemaliges, historisches Kaplaneihaus - Wohnjuwel mit viel Charme und Atmosphäre
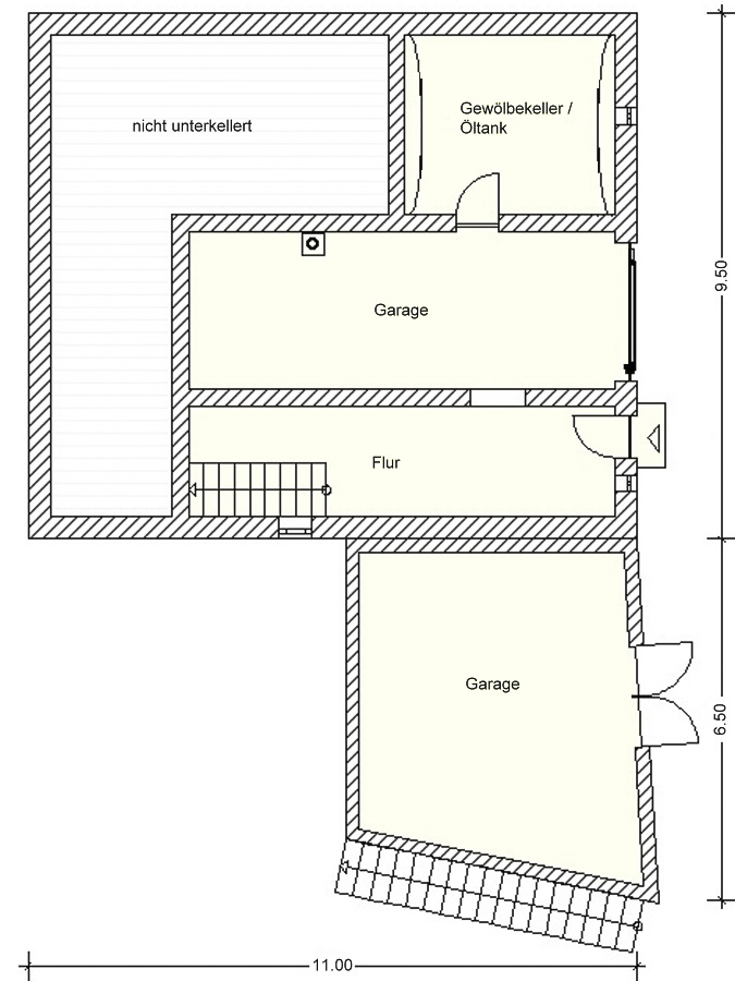
Bei diesem außergewöhnlichen Anwesen handelt es sich um ein historisches Kaplaneihaus voller Charme und Geschichte, das mit viel Liebe zum Detail modernisiert wurde, ohne seinen ursprünglichen Charakter zu verlieren. Schon beim Betreten empfängt Sie die repräsentative Diele mit massiver Holztreppe, die sofort die besondere Atmosphäre des Hauses spürbar macht. Im Zuge der umfangreichen Modernisierungen wurden unter anderem sämtliche Fenster erneuert, das Dach neu eingedeckt, die Toiletten auf beiden Etagen modernisiert und die außergewöhnlichen Holzböden aufgearbeitet. Auch energetisch wurde das Gebäude saniert, indem sowohl die Kellerdecke als auch die oberste Geschossdecke isoliert wurden. Das Haus liegt sehr idyllisch, von der großen Terrasse und nahezu allen Räumen hat man einen herrlichen Blick auf die Lauchert. Für Fahrzeuge und Hobbys stehen zudem zwei geräumige Garagen zur Verfügung, die sich ebenso hervorragend als Lagerfläche oder für eine kleine Werkstatt eignen.
- Ruhige und sonnige Wohnlage direkt an der Lauchert, ca. 305 m² Grundstück
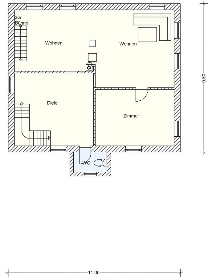
- Ca. 160 m² Wohnfläche, 5,5 Zimmer, Küche, Bad, 2 WC, Terrasse, Kaminofen, 2 Garagen
- kein Denkmalschutz, Baujahr 1670 B, 196,27 kWh, HZ/Öl, Klasse F
Lage
Die Gemeinde Bingen (Baden-Württemberg) am Flüsschen Lauchert liegt eingebettet zwischen dem Südrand der Schwäbischen Alb und dem Donautal. Bingen hat rund 2.700 Einwohner. Regional gesehen gehört die Kommune mit ihren Ortsteilen Hitzkofen, Hochberg und Hornstein zum Verband der Bodensee-Oberschwaben-Gemeinden. Mit dem Bau des Sportzentrums mit vier Tennisplätzen und der Sandbühlhalle hat die Gemeinde Bingen einen großen Beitrag zur weiteren Verbesserung ihrer Infrastruktur erbracht. Das gleiche gilt für die Neuerschließung der gesamten Wasserversorgung, der Abwasserbeseitigung und der Ortskernsanierung. So ist die Gemeinde mit allem ausgestattet, was die Bürger heute im Bereich der Daseinsvorsorge erwarten. In der näheren Umgebung lädt das romantische Laucherttal, das Donautal sowie Sigmaringen mit seinem eindrucksvollen Schloss der Hohenzollern zu einem Besuch ein. Ein beliebtes Ausflugsziel ist auch der Bodensee, der in weniger als einer Autostunde zu erreichen ist. Durch die Hohenzollerische Landesbahn ist die Gemeinde schienenmäßig erschlossen. Die Immobilie befindet sich in zentraler Ortslage, Einkaufsmöglichkeiten, Kindergarten und Schule erreichen Sie bequem zu Fuß.
Grundrisse
Objektanfrage
Nebenkosten : Nachweis-/Erfolgshonorar 3,57 %, Grunderwerbsteuer 5 %, Notarkosten – ca. 1,2–1,5 %, Grundbuchkosten – ca. 1,0–1,5 %
Sämtliche Angebotsangaben sind nach bestem Wissen und Gewissen erstellt, und sollen Ihnen allgemeine Informationen ermöglichen. Da sie jedoch auf Informationen Dritter beruhen, kann von der BIV GmbH keine Gewähr für die Richtigkeit übernommen werden. Unsere Angebote sind freibleibend, der Zwischenverkauf bleibt uns vorbehalten.
