Einfamilienhaus in Trochtelfingen-Steinhilben
• Mehr als ein Haus • ein Statement für Lebensstil und Eleganz
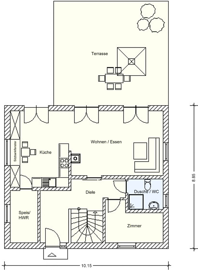
Diese luxuriöse Walmdachvilla wurde erst im Mai 2025 fertiggestellt und vereint höchste Baukunst mit edelsten Materialien und einer Ausstattung der absoluten Extraklasse. Von der ersten Minute an spüren Sie das ganz besondere Wohnambiente. Italienische Fliesen, edle Tapeten und elegante weiße Kassettentüren verleihen jedem Raum Stil und zeitlose Eleganz. Die großzügige Einbauküche mit Gaggenau-Geräten ist ein Meisterstück an Funktionalität und Ästhetik, hinter einer stilvollen Front verbirgt sich clever die Speisekammer und der Hauswirtschaftsraum, während ein gemütliches Fenster mit Sitzbank zum Verweilen und Genießen einlädt. Neben dem Gäste-Bad im Erdgeschoss setzt auch das Bad im Obergeschoss neue Maßstäbe. Die freistehende Badewanne wird zum privaten Wellnessbereich, während die insgesamt durchdachte Raumgestaltung sowohl Funktionalität als auch Eleganz bietet. Auch im Außenbereich beeindruckt die Villa durch exklusive Materialien wie weißen Juramarmor, italienischem Travertin und einem handgeschmiedeten Tor. Ein absolutes Highlight ist die über 40 m² große Dachterrasse mit herrlicher Aussicht und einem Jacuzzi, hier wird jeder Moment zu Ihrem ganz persönlichen Spa-Erlebnis. Technisch ist das Haus auf dem aller neusten Stand. Moderne Wärmepumpe, PV Anlage mit Speicher, Pollenfilter in der Lüftungsanlage ein Pluspunkt für Allergiker, Wasserenthärtungsanlage, dreifach verglaste Wärmedämmfenster, der behagliche Kaminofen und die angenehme Fußbodenheizung bieten höchsten Komfort bei minimalem Energieaufwand. Von fast allen Räumen eröffnet sich ein unvergleichlicher Blick auf die unberührte Natur der Schwäbischen Alb – ein Ort, an dem Ruhe, Exklusivität und Lebensqualität perfekt ineinandergreifen. Dieses Haus ist mehr als ein Zuhause. Es ist ein Statement, ein Lebensgefühl und ein Ort, den man gesehen haben muss, um die besondere Magie und Eleganz wirklich zu erleben.
- Niederenergiehaus KW 55 in ruhiger und sonniger Lage in einem Wohngebiet ca. 621 m² Grundst., ca. 166 m² Wohnfläche
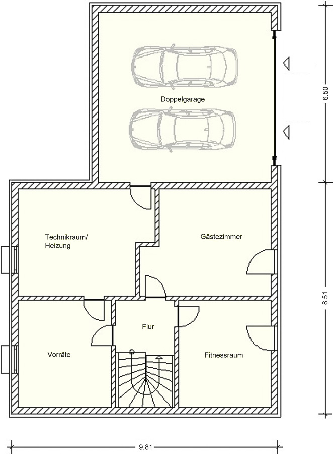
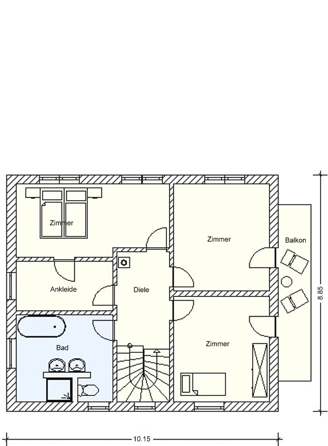
- Doppelgarage mit Sektionaltor, ca. 40 m² Dachterrasse, Balkon 7,5 Zimmer, 2 Bäder, 2 WC, Kaminofen hochwertige Einbauküche, Speis/HWR Gästezimmer und Hobbyraum im UG mit Fußbodenheizung und Wasseranschluss
- Wärmepumpe, PV-Anlage mit Speicher Pollenfilter in der Entlüftungsanlage elektrische Jalousien, Fußbodenheizung B, 17 kWh, Klasse A+, Baujahr 2022
Lage
Zum Verkauf steht eine außergewöhnliche und neuwertige Immobilie in der idyllischen Lage von Steinhilben, einem Ortsteil der Stadt Trochtelfingen im Landkreis Reutlingen, Baden-Württemberg. Die Immobilie befindet sich in einem ruhigen und sonnigen Wohngebiet, das sich ideal für Familien, Paare oder ruhesuchende Personen eignet. Steinhilben gehört zur Stadt Trochtelfingen, die sich im westlichen Teil der Schwäbischen Alb befindet und bekannt für ihre Naturlandschaften sowie historischen Bauwerke ist. Der Ortsteil ist hervorragend in das regionale Verkehrsnetz eingebunden, was sowohl eine gute Anbindung an umliegende Städte wie Reutlingen, Tübingen und Stuttgart als auch an den öffentlichen Nahverkehr gewährleistet, was für Pendler von großem Vorteil ist. Die Infrastruktur in Steinhilben ist optimal für den täglichen Bedarf. In der näheren Umgebung finden sich Supermärkte, Bäckereien und andere Geschäfte des täglichen Bedarfs. Schulen, Kindergärten und Freizeitmöglichkeiten sind ebenfalls in der Region vorhanden, was die Lage für Familien besonders attraktiv macht. Neben der hervorragenden Anbindung und Infrastruktur bietet die Umgebung zahlreiche Freizeitmöglichkeiten. Die Lage auf der Schwäbische Alb lädt zu Wanderungen, Radfahren und Outdoor-Aktivitäten ein, und auch kulturelle Highlights sowie historische Sehenswürdigkeiten in der Region, wie etwa das bekannte Schloss in Trochtelfingen, sind bequem erreichbar. Diese Immobilie vereint modernes Wohnen mit einer ruhigen, naturnahen Umgebung und ist der perfekte Ort, um zu entspannen und gleichzeitig eine gute Anbindung an die größeren Städte der Region zu genießen.
Grundrisse
Objektanfrage
Nebenkosten : Nachweis-/Erfolgshonorar 3,57 %, Grunderwerbsteuer 5 %, Notarkosten – ca. 1,2–1,5 %, Grundbuchkosten – ca. 1,0–1,5 %
Sämtliche Angebotsangaben sind nach bestem Wissen und Gewissen erstellt, und sollen Ihnen allgemeine Informationen ermöglichen. Da sie jedoch auf Informationen Dritter beruhen, kann von der BIV GmbH keine Gewähr für die Richtigkeit übernommen werden. Unsere Angebote sind freibleibend, der Zwischenverkauf bleibt uns vorbehalten.
