Mehrfamilienhaus mit Ökonomieteil in Langenenslingen-Andelfingen
Wohnhaus trifft Hobby-/ Gewerbeflächen Garagen, Werkstatt, Lager, Büro • hier passt alles
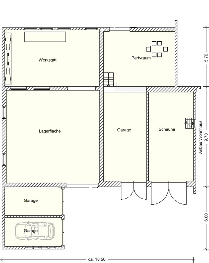
• Werkstatt, Geräte- und Lagerflächen
• 3 Garagen, ehemaliger Schweinestall
• 3 große Garagen auch für LKW mit Montagegrube
• Scheune mit großer Tenne
• Carport, Party-/Hobbyraum
Wohnhaus (2–3 Familienhaus)
Das großzügige Wohnhaus überzeugt durch seine flexible Aufteilung und vielfältige Nutzungsmöglichkeiten. Ob als Mehrgenerationenhaus, zur teilweisen Vermietung oder Kombination von Wohnen und Arbeiten, hier sind Sie bestens aufgestellt. Besonders für Gewerbetreibende, die im Erdgeschoss Büroräume benötigen bietet das Objekt ideale Voraussetzungen.
Ausstattung:
Große, helle Räume schaffen ein angenehmes Ambiente. Energiesparende Kunststofffenster sorgen für eine gute Wärmedämmung, während hochwertige Parkettböden und moderne Laminatbeläge den gepflegten und wertigen Charakter des Hauses unterstreichen.
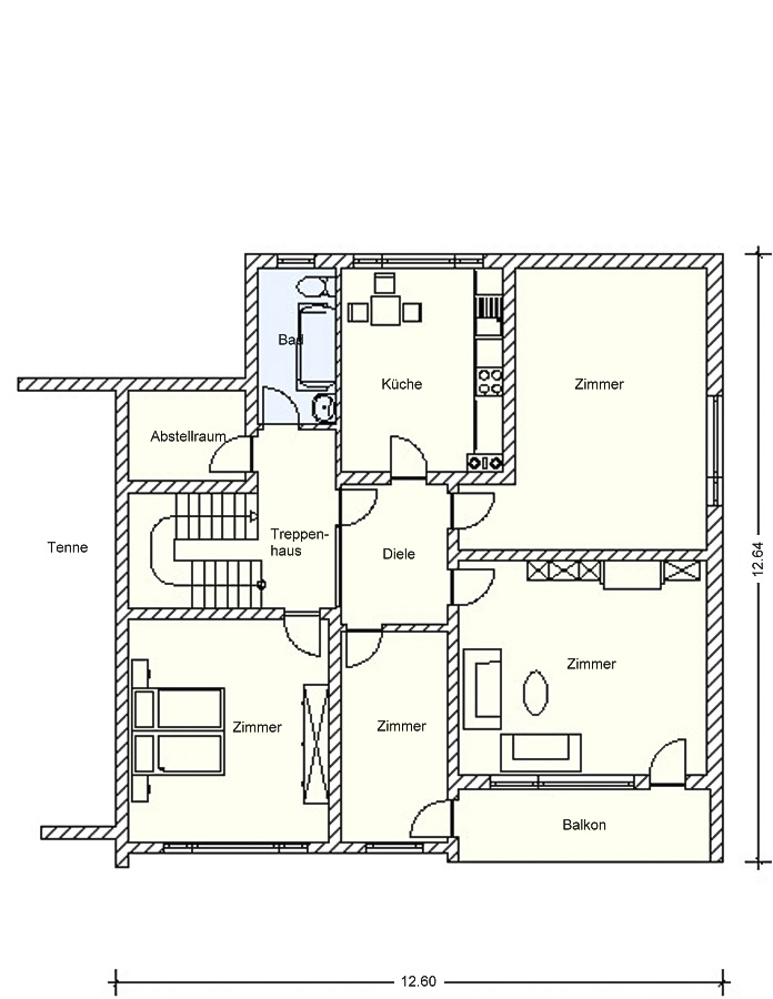
Ein Highlight ist die moderne, komplett ausgestattete Dachgeschoss-Wohnung, mit attraktiver Einbauküche, die sofort bezugsbereit ist. Ideal zur Eigennutzung, für Familienangehörige oder zur direkten Vermietung.
Ökonomieteil/Wirtschaftsgebäude, Raum für Ideen und Entfaltung:
Der beeindruckend große Ökonomieteil eröffnet auf ca. 400 m² Nutzfläche nahezu unbegrenzte Möglichkeiten. Gewerbebetrieb, Lagerflächen, Werkstatt oder Hobbybereich, hier findet sich Raum für Ideen und Expansion.
Garagen – Großzügig dimensioniert:
Mehrere Garagen ergänzen das Angebot ideal. Teilweise sind diese auch für LKW, Wohnmobile oder größere Maschinen geeignet. Es besteht die Möglichkeit für eine Hebebühne, eine Montagegrube ist bereits vorhanden. Damit bietet das Anwesen optimale Bedingungen für Fuhrparks, Handwerksbetriebe, Autosammler oder private Großfahrzeuge.
Ehemaliger Schweinestall – Vielseitig nutzbar:
Hinter dem Haus befindet sich der ehemalige Schweinestall, der sich hervorragend zur Kleintierhaltung, beispielsweise für Hasen oder Hühner, eignet. Auch eine alternative Nutzung als Lager- oder Hobbyfläche ist denkbar.
Garten – Geschützt und familienfreundlich:
Der geschützte Garten hinter dem Haus bildet einen privaten Rückzugsort. Ob als sicherer Spielbereich für Kinder, als gemütliche Ruheoase zum Entspannen oder als kleines Paradies für Hobbygärtner – hier findet jedes Familienmitglied seinen ganz persönlichen Lieblingsplatz. Ergänzt wird dieser Bereich durch einen großzügigen Partyraum, der Feiern und gesellige Zusammenkünfte bei jedem Wetter möglich macht
- Ruhige Lage mit ca. 1.743 m² Grundstück geschützter Garten hinter dem Haus
- gesamt ca. 260 m² Wohnfläche ca. 400 m² Nutzfläche
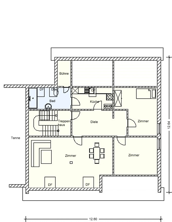
- EG 3 Zimmer, Küche, Bad, WC, Terrasse OG 4 Zimmer, Küche, Bad, WC, Balkon DG 3 Zimmer, Küche mit EBK, Bad, WC B, 240,26 kWh, Öl, Kl. G, Baujahr 1963
Lage
Der Ortsteil Andelfingen gehört zur Gemeinde Langenenslingen im Landkreis Biberach und liegt in der reizvollen Landschaft Oberschwabens zwischen dem Donautal und der Schwäbische Alb. Der Ort verbindet eine ruhige, ländliche Wohnatmosphäre mit einer gewachsenen Dorfgemeinschaft und einer hohen Lebensqualität. Die zentrale Lage innerhalb des Ortsteils ermöglicht kurze Wege und eine angenehme Nahversorgung im Umfeld. Andelfingen bietet eine solide Infrastruktur mit Einkaufmöglichkeiten (Metzgerei mit Backware, Hofladen), Kindergarten und soziale Angebote. Für weitere Einkaufsmöglichkeiten, Schule und medizinische Versorgung ist Langenenslingen und die nahegelegene Stadt Riedlingen in wenigen Fahrminuten erreichbar. Auch die Verkehrsanbindung ist für eine ländliche Lage sehr attraktiv: Über das regionale Straßennetz bestehen gute Verbindungen in Richtung Biberach an der Riß, Sigmaringen und Ulm. In Riedlingen befindet sich zudem ein Bahnanschluss mit regelmäßigen Regionalverbindungen in die umliegenden Städte. Besonders hervorzuheben ist der hohe Freizeit- und Erholungswert der Lage: Die umgebende Natur lädt zu ausgedehnten Spaziergängen, Rad- und Wandertouren ein. Zahlreiche gut ausgebaute Rad- und Wanderwege führen direkt durch die abwechslungsreiche Landschaft Oberschwabens und beginnen praktisch vor der Haustür. Die Nähe zur Natur, kombiniert mit der guten Erreichbarkeit der umliegenden Städte, macht Andelfingen zu einem attraktiven Wohnstandort für Familien, Kleinunternehmer, Ruhesuchende und Naturliebhaber gleichermaßen.
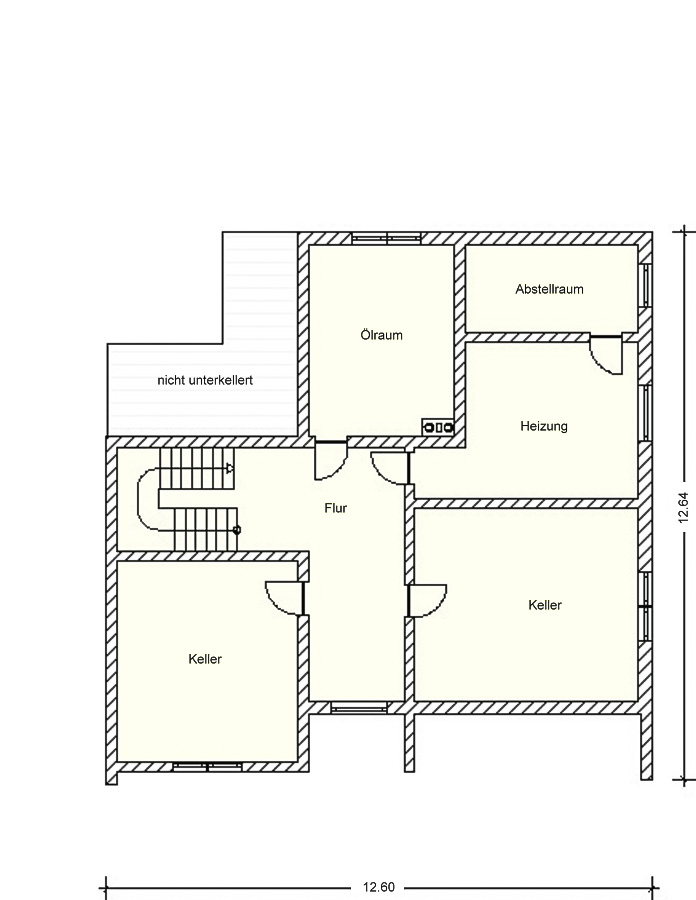
Grundrisse
Objektanfrage
Nebenkosten : Nachweis-/Erfolgshonorar 3,57 %, Grunderwerbsteuer 5 %, Notarkosten – ca. 1,2–1,5 %, Grundbuchkosten – ca. 1,0–1,5 %
Sämtliche Angebotsangaben sind nach bestem Wissen und Gewissen erstellt, und sollen Ihnen allgemeine Informationen ermöglichen. Da sie jedoch auf Informationen Dritter beruhen, kann von der BIV GmbH keine Gewähr für die Richtigkeit übernommen werden. Unsere Angebote sind freibleibend, der Zwischenverkauf bleibt uns vorbehalten.
