Anwesen mit Grund und Boden in Pfullendorf-Tautenbronn
Einzigartiges Anwesen mit 57.000 m² bietet Gelegenheit für Landwirte, Naturliebhaber und Investoren
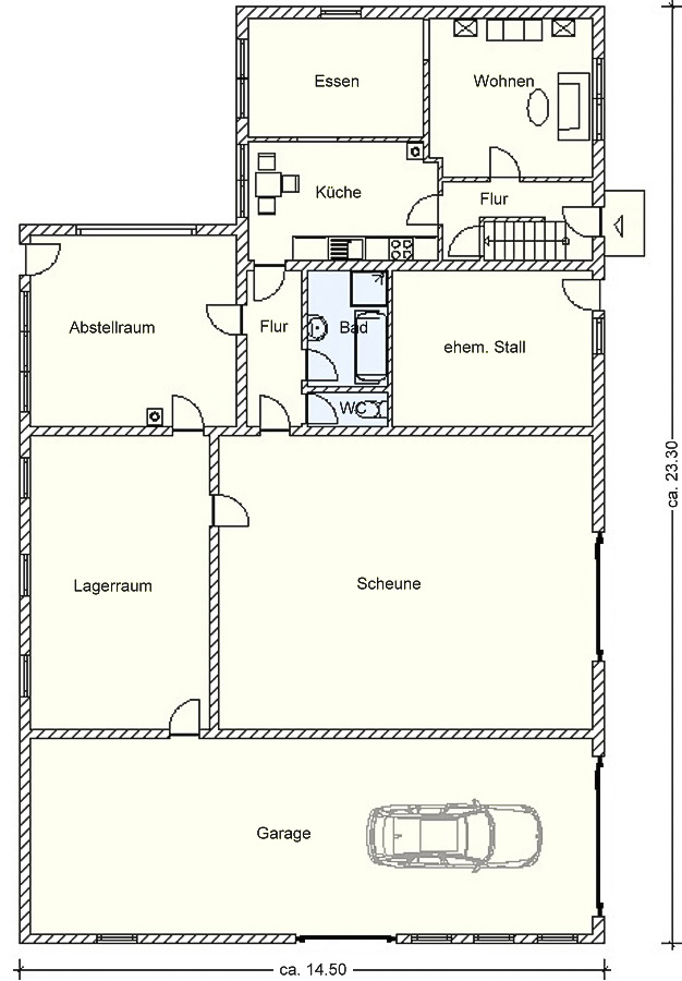
• Bauernhaus: ca. 135 m² Wohnfläche 7 Zimmer, Küche, Bad, 2 WC,
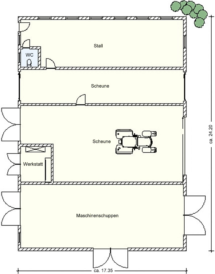
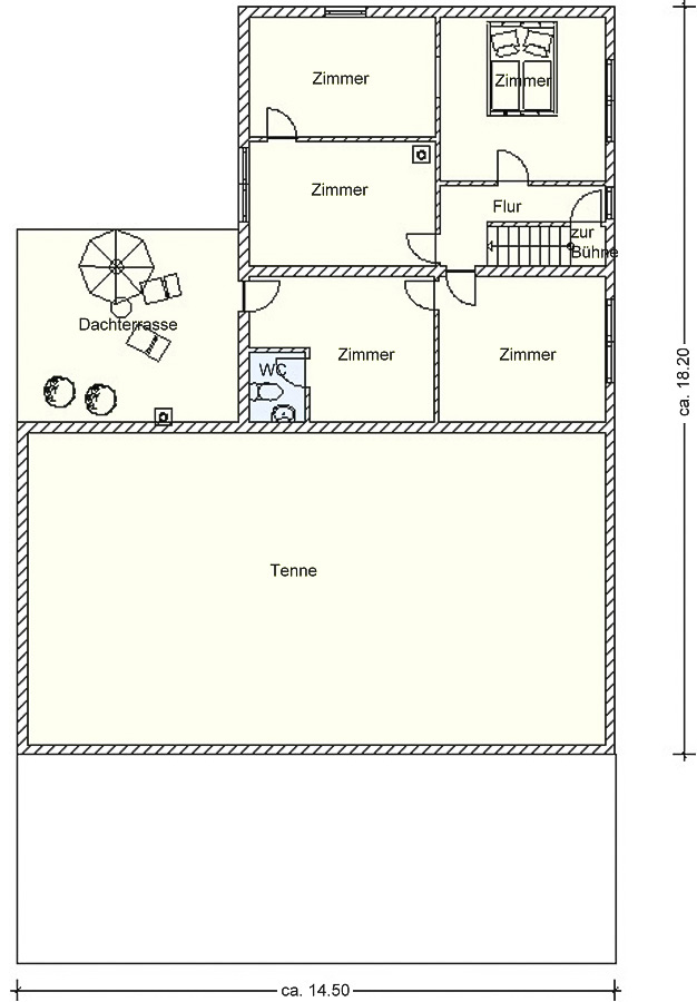
angrenzend ans Haus: Scheune, Stall, Garage
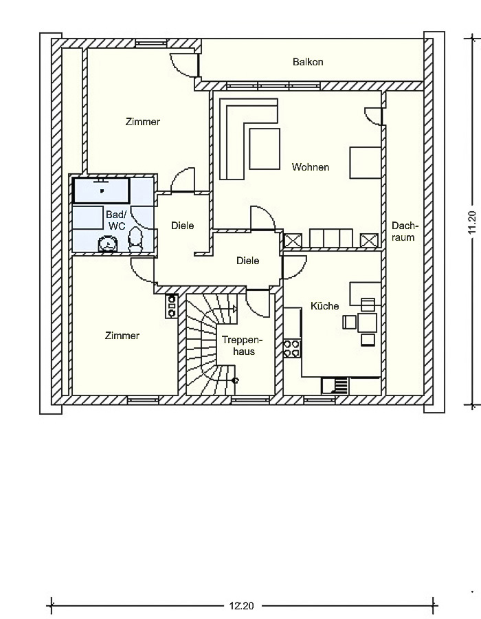
• 3 Familienhaus Terrasse, 2 Balkone, Doppelgarage, ZH Bj. 2008, Solar
EG: ca. 83 m², 3 Zimmer, Küche, Bad, WC
OG: ca. 120 m², 3,5 Zimmer, Küche, Bad, WC
DG: ca. 68 m², 3 Zimmer, Küche, Bad, WC
• Gewölbekeller, Gewächshaus,
Bauernhaus:
Herzstück des Anwesens ist das charmante Bauernhaus, das nach einer lohnenden Modernisierung viel Raum für individuelle Wohnkonzepte bietet.
Ob stilvolles Landhaus mit gemütlichem Charakter, großzügiges Familiendomizil oder attraktive Ferienwohnungen, hier verwirklichen Sie Ihre ganz persönlichen Wohnträume.
Nebengebäude:
Ein besonderes Highlight ist das beeindruckende Nebengebäude mit außergewöhnlich großzügigen Flächen. Es eignet sich hervorragend als Unterstellmöglichkeit für Maschinen, Fahrzeuge oder landwirtschaftliche Geräte. Aber auch zur Kleintierhaltung bietet es ideale Voraussetzungen. Ob Ferien auf dem Bauernhof , eine Eventlocation mit einzigartigem ländlichem Flair z.B. für Hochzeiten und Feiern – dieses Anwesen bietet die perfekte Grundlage, um Visionen Wirklichkeit werden zu lassen.
3-Familienhaus:
Ein weiterer Bestandteil des Angebots ist das großzügige 3-Familienhaus. Die drei gut geschnittenen Wohnungen mit Wohnflächen zwischen ca. 68 m² und 120 m² eröffnen vielfältige Perspektiven, als Mehrgenerationenhaus, zur Teilvermietung oder als attraktive Kapitalanlage mit stabilen Mieteinnahmen. Hier verbinden sich Wohnen und Investieren auf ideale Weise. Das Grundstück ums Haus bietet reichlich Freiraum für Kinder zum Spielen sowie beste Bedingungen für Hobbygärtner und Selbstversorger und die geräumige Doppelgarage mit direktem Hauszugang sorgt für zusätzlichen Komfort im Alltag.
- Idyllische Alleinlage direkt am Ortsrand mit gesamt ca. 57.000 m² Grundstück
- Bauernhaus mit Scheune, Stall, Garage B, 324,85 kWh, Gas, Klasse H, Baujahr 1900
- Nebengebäude mit ca. 380 m² Nutzfläche 3 Familienhaus, Baujahr 1980 Baujahr Heizung 2008, Solaranlage V, 94,86 kWh,, Öl/Hz, Klasse C
Lage
Die Immobilie befindet sich im reizvollen Weiler Tautenbronn, einem Ortsteil von Pfullendorf im Landkreis Sigmaringen. Eingebettet zwischen der Schwäbischen Alb und dem Bodensee, liegt Pfullendorf im hügeligen Linzgau, rund 20 km nördlich des Bodensees. Tautenbronn liegt etwa 2,5 km westlich der Kernstadt Pfullendorf. Diese Lage bietet eine perfekte Mischung aus ruhigem, naturnahem Wohnen und dennoch umfassender Anbindung: Die wichtigen Einkaufsorte, Schulen, Kindergärten, Ärzte, Apotheken sowie Bäcker, Metzger und ein lebendiges Vereinsleben befinden sich zentral in Pfullendorf – allesamt innerhalb von wenigen Autominuten erreichbar. Verkehrstechnisch ist die Anbindung überzeugend: Die Stadt ist über die A 81/A 98 (Ausfahrt Stockach-Ost) gut erreichbar – von der Autobahn bis Pfullendorf sind es etwa 25 Minuten Fahrtzeit . Der öffentliche Nahverkehr profitiert von der Räuberbahn, die seit 2009 die stillgelegte Bahnstrecke zwischen Altshausen und Pfullendorf wieder betreibt. Darüber hinaus bedienen die Buslinien 102 und 106 regelmäßig die Bushaltestelle Tautenbronn, mit Anschluss an den Pfullendorfer ZOB sowie an Schulen und weiterführende Orte. Die Umgebung überzeugt durch eine naturnahe Lage – ruhige Dörfer, Grünräume und Schutzgebiete wie das Taubenried (Natur- und Landschaftsschutzgebiet) prägen die Landschaft rund um Pfullendorf
Grundrisse
Objektanfrage
Nebenkosten : Nachweis-/Erfolgshonorar 3,57 %, Grunderwerbsteuer 5 %, Notarkosten – ca. 1,2–1,5 %, Grundbuchkosten – ca. 1,0–1,5 %
Sämtliche Angebotsangaben sind nach bestem Wissen und Gewissen erstellt, und sollen Ihnen allgemeine Informationen ermöglichen. Da sie jedoch auf Informationen Dritter beruhen, kann von der BIV GmbH keine Gewähr für die Richtigkeit übernommen werden. Unsere Angebote sind freibleibend, der Zwischenverkauf bleibt uns vorbehalten.
