Einfamilienhaus in Gammertingen-Neufra
Familienfreundlich • großes Grundstück und viel Platz für individuelle Gestaltung
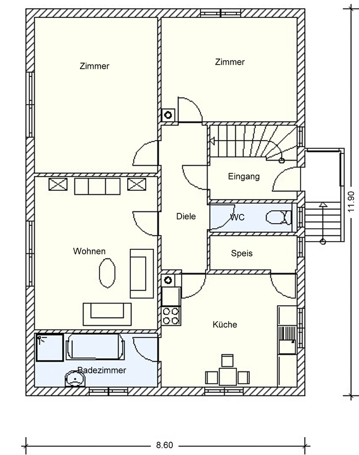
Dieses freistehende und sehr gepflegte Einfamilienhaus besticht auf Anhieb durch seinen einladenden Charakter. Mit ca. 128 m² Wohnfläche, verteilt auf Erd- und Dachgeschoss, bietet es Familien oder Paaren ein großzügiges Platzangebot und zahlreiche Möglichkeiten zur individuellen Gestaltung. Helle, freundliche Räume und moderne, energiesparsame Kunststofffenster sorgen für ein angenehmes Ambiente. Die gemütliche Wohnküche mit angrenzender Speisekammer lädt zum gemeinsamen Kochen und Verweilen ein, während der Kachelofen zusätzlich für wohlige Wärme und ein besonderes Wohngefühl sorgt. Die etwas zurückversetzte Lage in Kombination mit dem großen Grundstück eröffnet viel Freiraum für Kinder, Entspannung und Freizeit im Grünen. Praktische Extras wie eine Doppelgarage und ein großer Holzschopf, ideal zur Lagerung von Kaminholz, Fahrrädern oder Gartengeräten, runden dieses attraktive Angebot perfekt ab und machen es zu einem Zuhause, in dem man sich sofort wohlfühlt.
- Sonnige Lage, ca. 1.178 m² Grundstück, Doppelgarage und großer Holzschopf
- 6 Zimmer, Wohnküche, Speis, Bad, 2 WC
- ca. 128 m² Wohnfläche, Kachelofen B, 344,04 kWh, Öl/Hz, Klasse H Baujahr 1952
Lage
• Sonnige Lage, ca. 1.178 m² Grundstück • Doppelgarage und großer Holzschopf • ca. 128 m² Wohnfläche • 6 Zimmer • Wohnküche • Speis • Bad • 2 WC • Kachelofen (Einsatz 2014) • Kunststofffenster • Baujahr Heizung 1987 • B, 344,04 kWh, Öl/Hz, Klasse H, Baujahr 1952
Grundrisse
Objektanfrage
Nebenkosten : Nachweis-/Erfolgshonorar 3,57 %, Grunderwerbsteuer 5 %, Notarkosten – ca. 1,2–1,5 %, Grundbuchkosten – ca. 1,0–1,5 %
Sämtliche Angebotsangaben sind nach bestem Wissen und Gewissen erstellt, und sollen Ihnen allgemeine Informationen ermöglichen. Da sie jedoch auf Informationen Dritter beruhen, kann von der BIV GmbH keine Gewähr für die Richtigkeit übernommen werden. Unsere Angebote sind freibleibend, der Zwischenverkauf bleibt uns vorbehalten.
