Einfamilienhaus in Pfronstetten
Privatsphäre und Lebensqualität vereint familienfreundliches Zuhause direkt am grünen Ortsrand
Dieses familienfreundliche Zuhause überzeugt auf Anhieb durch seine ruhige und idyllische Lage. Ganz am Ende einer Sackgasse, direkt am grünen Ortsrand, genießen Sie hier absolute Privatsphäre und der große Garten bietet viel Platz zum Spielen und Entspannen. Aber auch im Inneren vermittelt das Haus durch die massiven Holzdecken und edlen Parkettböden sofort ein Gefühl von Wärme und Geborgenheit. Im EG empfängt Sie ein großzügiger und heller Wohn- und Essbereich mit gemütlichem Kachelofen, angrenzender Küche und einem Gäste-WC. Im DG stehen drei weitere, flexibel nutzbare Zimmer sowie ein Bad zur Verfügung. Zusätzliche Möglichkeiten bietet das UG mit einem großen beheizten Raum, ideal für Hobby, Gäste oder Homeoffice. Auch funktional ist das Haus bestens ausgestattet. Die Garage mit elektrischem Tor, Montagegrube und angrenzender Werkstatt bietet reichlich Stauraum. Kindergarten und Grundschule sind am Ort und nach Riedlingen und Engstingen sind es nur wenige Minuten.
- Ruhige Lage direkt am Ortsrand, ca. 728 m² Grundstück, Gewächshaus, Gartenhaus
- 4,5 Zimmer, Küche, Bad, 2 WC, Kachelofen, Carport, Terrasse, kl. Werkstatt
- ca. 100 m² Wohnfläche Untergeschoss: 2 beheizte Räume Garage mit Montagegrube V, 153,27 kWh, E/Hz, Kl. E, Baujahr 1980
Lage
Die Immobilie befindet sich in ruhiger Randlage von Pfronstetten, einer idyllischen Gemeinde im Landkreis Reutlingen in Baden-Württemberg. Eingebettet in die reizvolle Landschaft der Schwäbischen Alb überzeugt der Ort durch seine naturnahe Lage und hohe Lebensqualität. Trotz der ruhigen, ländlichen Umgebung ist eine gute Grundversorgung gewährleistet: Einkaufsmöglichkeiten, Ärzte sowie weitere Einrichtungen des täglichen Bedarfs befinden sich in den nahegelegenen Orten wie Engstingen, Trochtelfingen, Zwiefalten oder Münsingen und sind in kurzer Fahrzeit erreichbar. Ergänzt wird das Angebot durch regionale Direktvermarkter und Hofläden in der Umgebung, die für eine hochwertige Nahversorgung sorgen. Familien profitieren von einer kinderfreundlichen Infrastruktur mit Kindergarten und Grundschule im Ort sowie weiterführenden Schulen in den umliegenden Städten. Die Gemeinde gilt als sicher und überschaubar – ideal für ein ruhiges und naturnahes Aufwachsen. Verkehrstechnisch ist Pfronstetten über die Bundesstraße B312 gut angebunden, mit schnellen Verbindungen Richtung Reutlingen, Biberach und die gesamte Region. Öffentliche Verkehrsmittel (Busverbindungen) ergänzen die Mobilität; der nächstgelegene Bahnanschluss befindet sich in Münsingen/Marbach. Die Umgebung ist geprägt von weitläufigen Wiesen, Wäldern und typischen Alb-Landschaften und bietet zahlreiche Möglichkeiten für Freizeit, Erholung und Naturerlebnisse. Die Nähe zu größeren Städten wie Reutlingen, Ulm oder Stuttgart ermöglicht zudem eine attraktive Kombination aus ländlicher Ruhe und urbaner Erreichbarkeit.
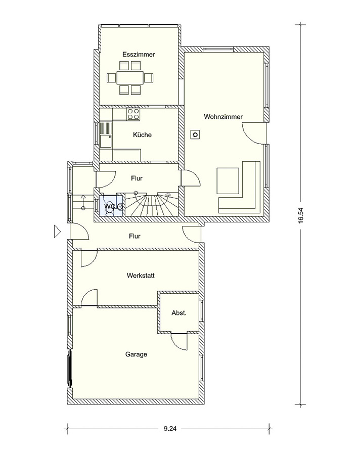
Grundrisse
Objektanfrage
Nebenkosten : Nachweis-/Erfolgshonorar 3,57 %, Grunderwerbsteuer 5 %, Notarkosten – ca. 1,2–1,5 %, Grundbuchkosten – ca. 1,0–1,5 %
Sämtliche Angebotsangaben sind nach bestem Wissen und Gewissen erstellt, und sollen Ihnen allgemeine Informationen ermöglichen. Da sie jedoch auf Informationen Dritter beruhen, kann von der BIV GmbH keine Gewähr für die Richtigkeit übernommen werden. Unsere Angebote sind freibleibend, der Zwischenverkauf bleibt uns vorbehalten.
