Einfamilienhaus (DHH) in Burladingen-Stetten u.H.
Verwirklichen Sie Ihren Wohntraum - Haus mit Potenzial und Raum für Ihre Ideen
Dieses Einfamilienhaus bietet eine hervorragende Gelegenheit für alle, die sich den Traum vom eigenen Zuhause nach individuellen Vorstellungen verwirklichen möchten. Nach einer umfassenden Modernisierung entfaltet die Immobilie ihr volles Potenzial und eignet sich ideal für Paare oder eine kleine Familie, die Wert auf Platz und Ruhe legen. Zum Haus gehört eine großzügige Doppelgarage, die ausreichend Stellfläche für Fahrzeuge und zusätzlichen Stauraum bietet, sowie ein großes Gartenhaus im hinteren Bereich des Grundstücks, das vielseitig nutzbar ist, sei es für Gartengeräte oder als praktisches Holzlager. Ein besonderes Highlight ist die Dachterrasse über der Garage, die perfekte Voraussetzungen für entspannte Stunden im Freien und gesellige Abende mit der Familie und Freunden bietet. Die Lage ist ruhig mit einer guten Verkehrsanbindung Richtung Burladingen und Engstingen, Familien profitieren zudem von der unmittelbaren Nähe zu Kindergarten und Grundschule, die sich direkt vor Ort befinden.
- Ruhige Wohnlage, ca. 521 m² Grundstück
- 5 Zimmer, Küche, Bad, WC
- ca. 90 m² Wohnfläche, große Dach-Terrasse große Doppelgarage und Gartenhaus B, 266,42 kWh, E, Kl. H, Baujahr 1952
Lage
Die Immobilie befindet sich in Stetten unter Holstein, einem ruhigen und naturnah gelegenen Ortsteil der Burladingen im Zollernalbkreis, eingebettet in die reizvolle Landschaft der Schwäbische Alb. Die Umgebung überzeugt durch ihre hohe Lebensqualität, eine gewachsene Dorfgemeinschaft und vielfältige Möglichkeiten zur Erholung in der Natur. Die Anbindung erfolgt über die Landesstraßen L382 und L385 mit guter Erreichbarkeit von Burladingen sowie Anschluss an die B27 Richtung Tübingen und Stuttgart. Busverbindungen bestehen vor Ort, während in Burladingen ein Bahnanschluss zur Verfügung steht. Im Ort selbst sind eine Grundschule sowie ein Kindergarten vorhanden, was den Standort besonders für Familien attraktiv macht. Weiterführende Schulen sowie sämtliche Einkaufsmöglichkeiten, medizinische Versorgung und Dienstleistungen befinden sich im nahegelegenen Burladingen und sind in kurzer Zeit erreichbar. Insgesamt bietet die Lage eine gelungene Kombination aus ruhigem Wohnen im Grünen und einer soliden Infrastruktur im direkten Umfeld.
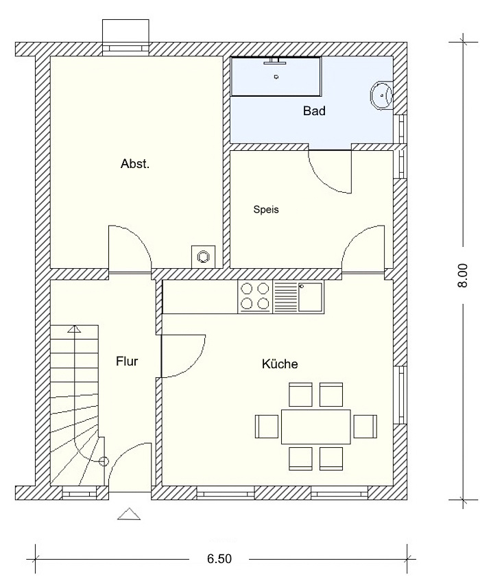
Grundrisse
Objektanfrage
Nebenkosten : Nachweis-/Erfolgshonorar 4,76 %, Grunderwerbsteuer 5 %, Notarkosten – ca. 1,2–1,5 %, Grundbuchkosten – ca. 1,0–1,5 %
Sämtliche Angebotsangaben sind nach bestem Wissen und Gewissen erstellt, und sollen Ihnen allgemeine Informationen ermöglichen. Da sie jedoch auf Informationen Dritter beruhen, kann von der BIV GmbH keine Gewähr für die Richtigkeit übernommen werden. Unsere Angebote sind freibleibend, der Zwischenverkauf bleibt uns vorbehalten.
