Ehemaliges Bauernhaus in Krauchenwies-Göggingen
• Wohnen mit Mehrwert • Bauernhaus mit viel Fläche für Hobby und Beruf
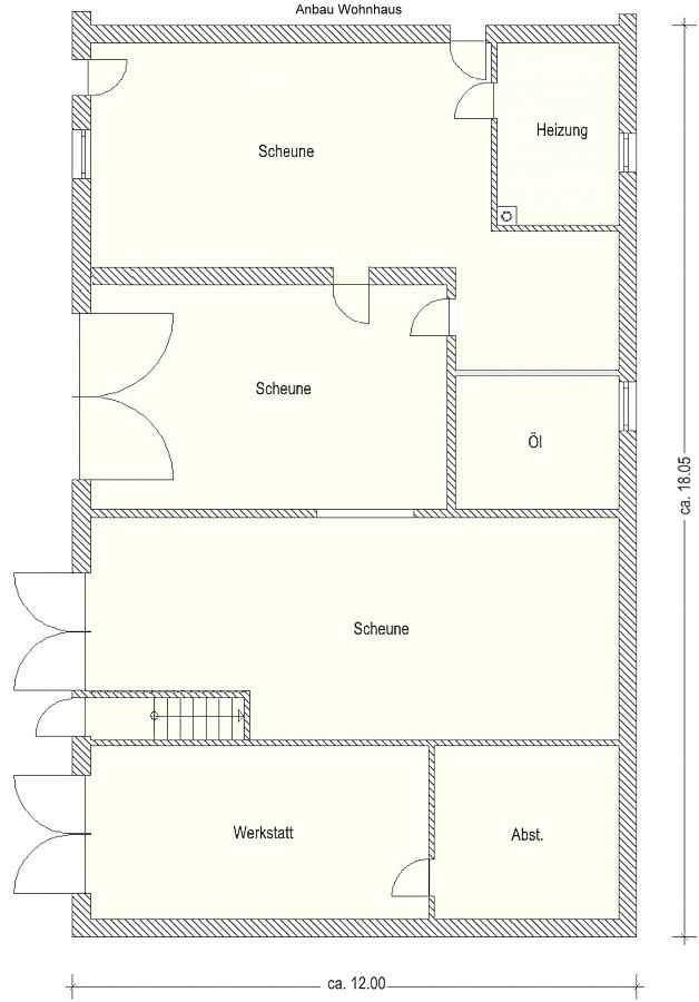
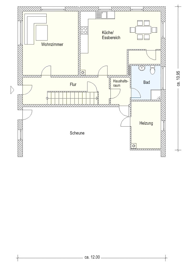
Dieses ehemalige Bauernhaus mit großzügigem Ökonomieteil vereint ländlichen Charme mit vielseitigen Nutzungsmöglichkeiten. Mehrere große Scheunen, eine Werkstatt mit praktischem Abstellraum sowie eine geräumige Doppelgarage mit Montagegrube bieten optimale Voraussetzungen, sei es für Autobastler, zur Unterbringung von Wohnmobilen oder für einen Handwerksbetrieb mit umfangreichem Platzbedarf. Das Wohnhaus überzeugt durch seinen gepflegten Zustand und bietet auf ca. 160 m² Wohnfläche viel Raum zur freien Entfaltung und Umsetzung persönlicher Wohnideen. Hochwertige Holz-Alufenster, das barrierefreie Bad im Erdgeschoss sowie die Zentralheizung, die flexibel mit Öl oder Holz befeuert werden kann, unterstreichen den wertigen Gesamteindruck. Die Lage ist familienfreundlich, ein Kindergarten ist direkt vor Ort und sämtliche Einrichtungen des täglichen Bedarfs sind in den nahegelegenen Ortschaften Krauchenwies und Pfullendorf schnell erreichbar.
- Zentrale Lage, ca. 999 m² Grundstück
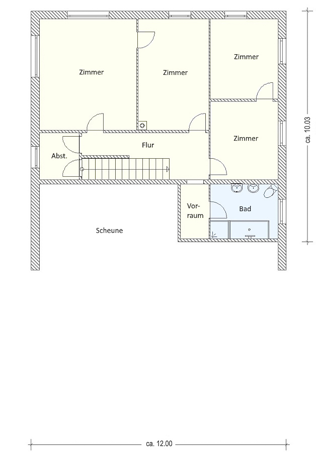
- ca. 160 m² Wohnfläche, 5 Zimmer, Küche, 2 Bäder, 2 WC, überdachter Freisitz
- Heizung Baujahr 1999 Kombi Öl/Holz gr. Ökonomieteil mit mehrere Scheunen und Werkstatt, Doppel-Garage V, 232,7 kWh, Öl/Hz, Kl. G, Baujahr 1903
Lage
Der Ortsteil Göggingen der Gemeinde Krauchenwies liegt im Landkreis Sigmaringen in Baden-Württemberg und befindet sich in einer attraktiven, ländlich geprägten Wohnlage zwischen der Donau-Region und dem Linzgau. Die Umgebung zeichnet sich durch eine hohe Lebensqualität, viel Natur sowie kurze Wege in die nahegelegenen Städte Sigmaringen und Pfullendorf aus, die jeweils in wenigen Fahrminuten erreichbar sind. Über die nahe Bundesstraße B311 besteht eine sehr gute Verkehrsanbindung in Richtung Ulm sowie in Richtung Bodensee-Raum und Donautal. Zusätzlich bietet die Region einen regionalen Bahnanschluss im Gemeindegebiet Krauchenwies mit Verbindungen in die umliegenden Zentren, wodurch auch Pendler von einer guten Erreichbarkeit profitieren. Die Infrastruktur vor Ort umfasst eine solide Grundversorgung mit Einkaufsmöglichkeiten, Kindergärten und Grundschule im Gemeindegebiet, während weiterführende Schulen, umfangreiche Einkaufsangebote, medizinische Versorgung sowie vielfältige Freizeit- und Kulturangebote in Sigmaringen schnell erreichbar sind. Die naturnahe Umgebung mit Wiesen, Wäldern und Naherholungsgebieten bietet zudem einen hohen Freizeitwert und zahlreiche Möglichkeiten für Sport und Erholung. Insgesamt verbindet die Lage ruhiges Wohnen im Grünen mit einer guten Anbindung und einer funktionierenden Infrastruktur im Umfeld – ein attraktiver Standort für Familien, Berufspendler und Ruhesuchende gleichermaßen.
Grundrisse
Objektanfrage
Nebenkosten : Nachweis-/Erfolgshonorar 3,57 %, Grunderwerbsteuer 5 %, Notarkosten – ca. 1,2–1,5 %, Grundbuchkosten – ca. 1,0–1,5 %
Sämtliche Angebotsangaben sind nach bestem Wissen und Gewissen erstellt, und sollen Ihnen allgemeine Informationen ermöglichen. Da sie jedoch auf Informationen Dritter beruhen, kann von der BIV GmbH keine Gewähr für die Richtigkeit übernommen werden. Unsere Angebote sind freibleibend, der Zwischenverkauf bleibt uns vorbehalten.
